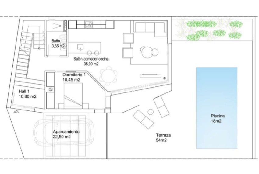
These unique villas, located in Orihuela Costa, offer the chance to live in a quiet location close to the coast. The plot sizes range from 178.30 m² to 305.21 m², with a built area of 158.55 m². This gives you a pleasant feeling of space in each villa.
Upon entering you enter a hall of 10.80 m², where the staircase is also located. The hall leads to the large living room with open kitchen, a bright and open space of 35 m², which offers a view of the garden and the private pool (18 m²). On the ground floor you will also find a bedroom (10.45 m²) and a bathroom (3.65 m²).
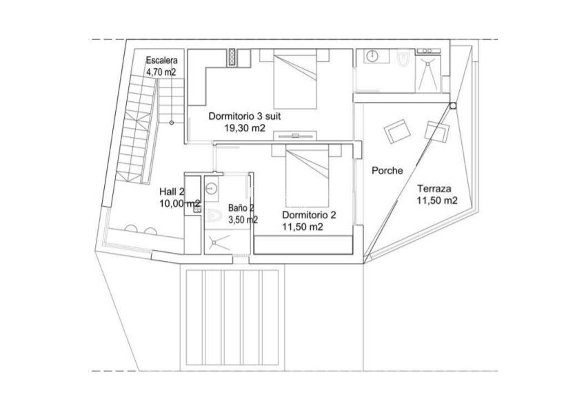
On the first floor there are two bedrooms, each with its own ensuite bathroom. One bedroom has a surface of 11.50 m², with a bathroom of 3.50 m². The master bedroom is generously designed with 19.30 m², including bathroom. Both bedrooms have access to a terrace of 11.50 m², with a beautiful view of the garden and the pool.
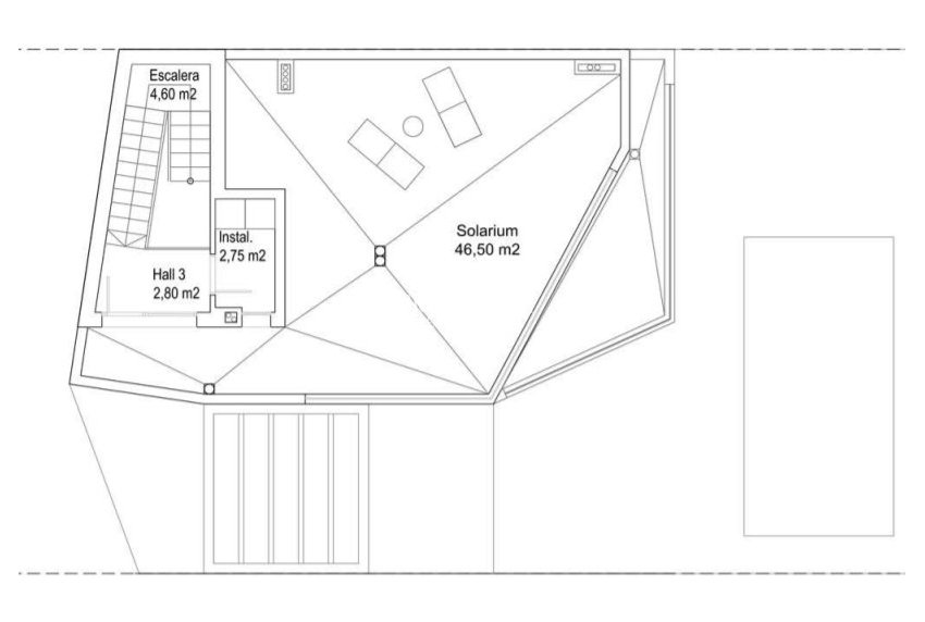
A second staircase leads to the impressive solarium of 46.50 m², where you can enjoy privacy and sun. Here you will also find a technical room of 2.75 m². All bedrooms have built-in wardrobes. In addition, there are pre-installations for air conditioning and a pre-installation for a charging point for an electric car. An intercom system is also included in the price.
The location of these villas is ideal. The beaches of Playa Flamenca, Playa La Zenia and Cala Mosca are just a 7-minute drive away. In the immediate vicinity there are plenty of amenities: a supermarket just a 3-minute walk away and a shopping centre a 6-minute walk away. The famous Centro Comercial Zenia Boulevard is reachable within a 10-minute drive. Golf enthusiasts have several options nearby, including Villamartin Golf (6 minutes), Las Ramblas Golf (12 minutes), and Las Colinas Golf.
Alicante Airport is just a 40 minute drive away, making these villas not only stylish but also very accessible.
Orihuela Costa is a coastal area in the south of the province of Alicante, Spain, which is part of the municipality of Orihuela. This region stretches along the Mediterranean Sea and is known for its long sandy beaches, picturesque coves and modern amenities. Orihuela Costa includes popular residential and holiday destinations such as Punta Prima, Playa Flamenca, La Zenia, Cabo Roig, Campoamor and Villamartín. In addition to beaches, the area offers several golf courses, shopping centres such as La Zenia Boulevard, and a wide range of restaurants and entertainment venues. Due to its pleasant climate, with over 300 days of sunshine per year, Orihuela Costa is attractive to both tourists and permanent residents.
If you would like more information about these villas, the region, what to consider when buying a property in Spain, or any questions you may have, please do not hesitate to contact us and we will be happy to help you.
GLOBAL-SPAIN REAL ESTATE (Costa Blanca, Costa Cálida, Balearic Islands)
Office@Global-Spain.com / +34 865 75 27 65 (NL, EN, DE, FR, ES)
Aftersales@Global-Spain.com / +34 623 220 132 (ES, NL, EN)
Are you looking for an apartment, house, villa, penthouse; with a swimming pool, solarium, garage, sea view or whatever your wishes are... Then a specialized and experienced real estate agency can guide you with your purchase in Spain. Global-Spain Real Estate is located in Torrevieja and will be happy to help you find your home under the Spanish sun.
As a real estate agent, we can also help you obtain your NIE number, a power of attorney (which can facilitate your purchase in Spain), open a bank account and much more. We follow the purchase of your property in Spain from A to Z, and are always available on weekdays if you have any questions about the progress of your file and your purchase.
The Global-Spain team wishes you a pleasant search for your dream home in Spain!