Estas villas únicas, ubicadas en Orihuela Costa, ofrecen la oportunidad de vivir en una ubicación tranquila cerca de la costa. Las superficies de la parcela van desde los 178,30 m² hasta los 305,21 m², con una superficie construida de 158,55 m². Esto le da una agradable sensación de espacio en cada villa.
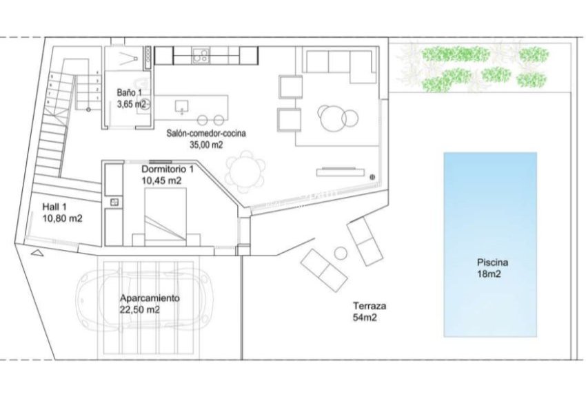
Al acceder se accede a un recibidor de 10,80 m², donde también se encuentran las escaleras. El vestíbulo conduce al gran salón con cocina abierta, un espacio abierto y luminoso de 35 m², que ofrece vistas al jardín y a la piscina privada (18 m²). En la planta baja también encontrará un dormitorio (10,45 m²) y un baño (3,65 m²).
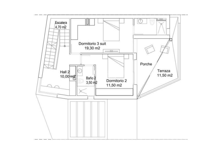
En el primer piso hay dos dormitorios, cada uno con su propio baño privado. El de un dormitorio tiene una superficie de 11,50 m², con un baño de 3,50 m². El dormitorio principal es amplio con 19,30 m², incluido baño. Ambos dormitorios tienen acceso a una terraza de 11,50 m², con una hermosa vista al jardín y a la piscina.
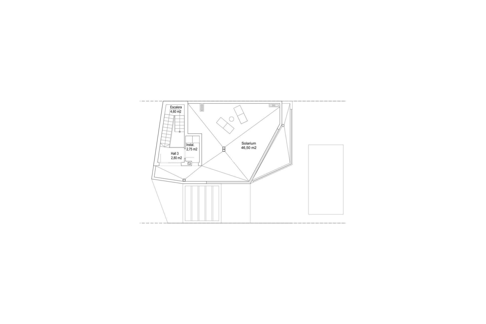
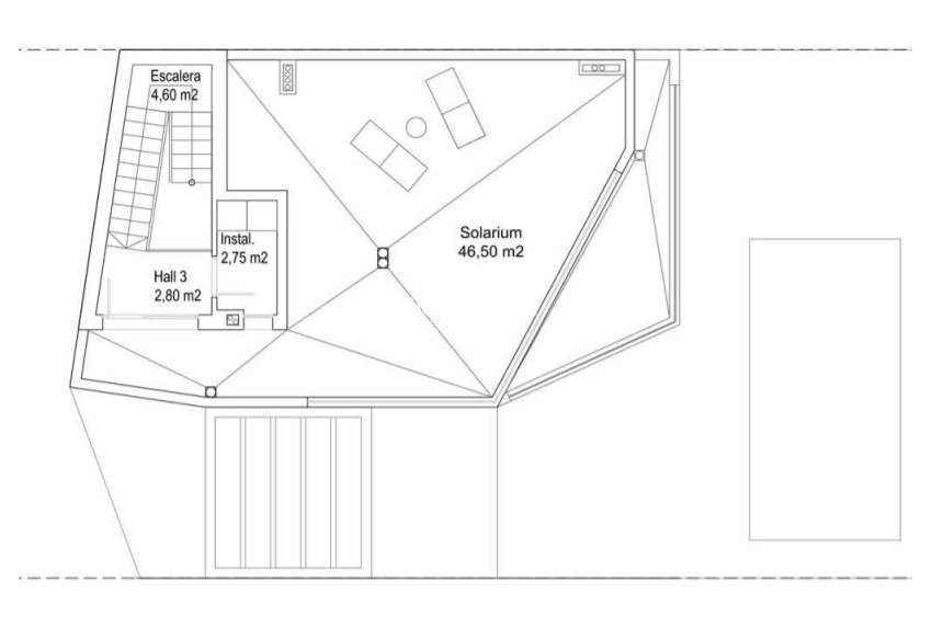
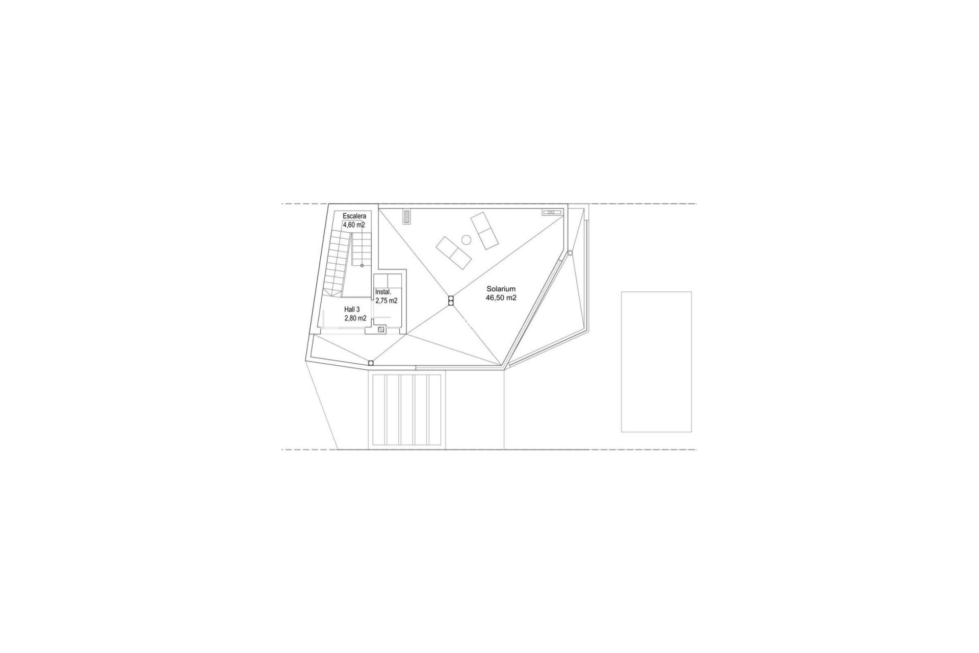
Una segunda escalera conduce al impresionante solárium de 46,50 m², donde podrá disfrutar plenamente de privacidad y sol. También hay una sala técnica de 2,75 m². Todos los dormitorios tienen armarios empotrados. Además, existen preinstalaciones de aire acondicionado y preinstalación de punto de recarga para coche eléctrico. Un sistema de intercomunicación también está incluido en el precio.
La ubicación de estas villas es ideal. Las playas de Playa Flamenca, Playa La Zenia y Cala Mosca están a sólo 7 minutos en coche. Hay numerosos servicios en las inmediaciones: un supermercado a sólo 3 minutos a pie y un centro comercial a 6 minutos a pie. El conocido Centro Comercial Zenia Boulevard se encuentra a 10 minutos en coche. Los entusiastas del golf tienen varias opciones cercanas, incluido Villamartin Golf (6 minutos), Las Ramblas Golf (12 minutos) y Las Colinas Golf.
El aeropuerto de Alicante está a sólo 40 minutos en coche, lo que hace que estas villas no sólo sean elegantes, sino también de fácil acceso.
Orihuela Costa es una zona costera en el sur de la provincia de Alicante, España, parte del municipio de Orihuela. Esta región se extiende a lo largo del mar Mediterráneo y es conocida por sus extensas playas de arena, pintorescas bahías y modernas comodidades. Orihuela Costa incluye destinos residenciales y vacacionales populares como Punta Prima, Playa Flamenca, La Zenia, Cabo Roig, Campoamor y Villamartín. Además de playas, la zona ofrece varios campos de golf, centros comerciales como La Zenia Boulevard y una amplia oferta de restauración y opciones de ocio. El agradable clima, con más de 300 días de sol al año, hace que Orihuela Costa sea atractiva tanto para turistas como para residentes permanentes.
Si desea obtener más información sobre estas villas, la región, lo que debe tener en cuenta a la hora de comprar una propiedad en España o cualquier pregunta que pueda tener, no dude en ponerse en contacto con nosotros y estaremos encantados de ayudarle.
GLOBAL SPAIN REAL ESTATE (Costa Blanca, Costa Cálida, Islas Baleares)
Office@Global-Spain.com / +34 865 75 27 65 (NL, EN, DE, FR, ES)
Aftersales@Global-Spain.com / +34 623 220 132 (ES, NL, EN)
¿Está buscando un apartamento, casa, villa, ático; con piscina, solárium, garaje, vista al mar o lo que desees... Entonces una agencia inmobiliaria especializada y con experiencia podrá guiarte en tu compra en España. Global-Spain Real Estate está ubicado en Torrevieja y estará encantado de ayudarle a encontrar su hogar bajo el sol español.
¡El equipo de Global-Spain le desea una agradable búsqueda de la casa de sus sueños!