Deze unieke villa's, gelegen in Orihuela Costa, bieden de kans om te wonen op een rustige locatie dicht bij de kust. De perceeloppervlakten variëren van 178,30 m² tot 305,21 m², met een bebouwde oppervlakte van 158,55 m². Hierdoor ervaart u in elke villa een aangenaam ruimtelijk gevoel.
Bij binnenkomst stapt u in een hal van 10,80 m², waar ook de trap zich bevindt. De hal leidt naar de grote leefruimte met open keuken, een lichte en open ruimte van 35 m², die uitzicht biedt op de tuin en het privézwembad (18 m²). Op de begane grond vindt u daarnaast een slaapkamer (10,45 m²) en een badkamer (3,65 m²).
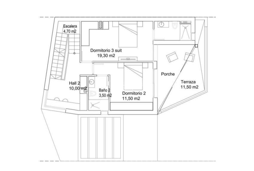
Op de eerste verdieping bevinden zich twee slaapkamers, elk met een eigen ensuite badkamer. De ene slaapkamer heeft een oppervlakte van 11,50 m², met een badkamer van 3,50 m². De hoofdslaapkamer is royaal opgezet met 19,30 m², inclusief badkamer. Beide slaapkamers hebben toegang tot een terras van 11,50 m², met een fraai uitzicht op de tuin en het zwembad.
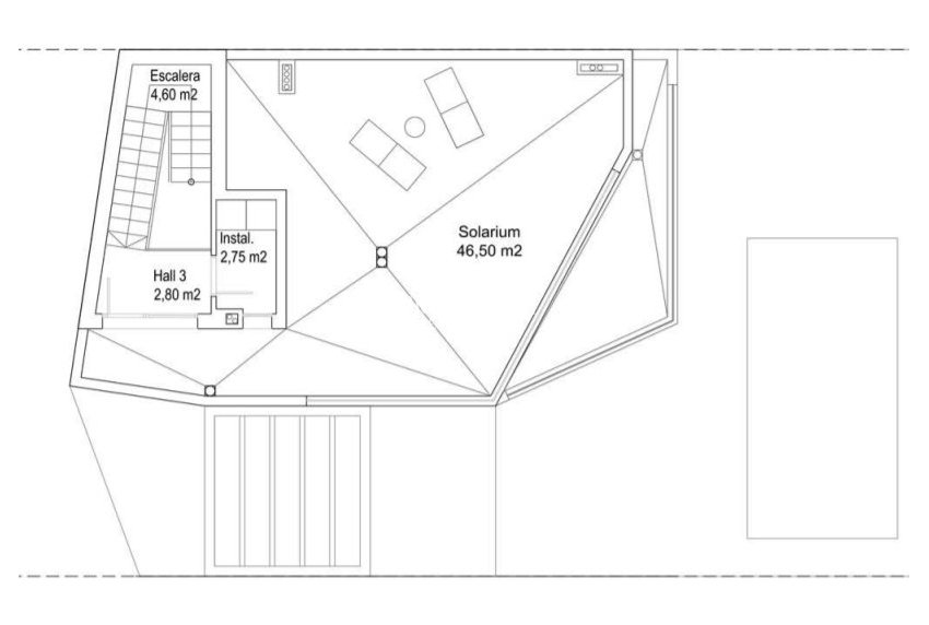
Een tweede trap leidt naar het indrukwekkende solarium van 46,50 m², waar u volop kunt genieten van privacy en zon. Hier bevindt zich ook een technische ruimte van 2,75 m². Alle slaapkamers zijn voorzien van ingebouwde kasten. Bovendien zijn er pré-installaties voor airconditioning en een pré-installatie voor een laadpunt voor een elektrische auto. Een intercomsysteem is eveneens inbegrepen in de prijs.
De locatie van deze villa’s is ideaal. De stranden Playa Flamenca, Playa La Zenia en Cala Mosca liggen op slechts 7 minuten rijden. In de directe omgeving zijn er tal van voorzieningen: een supermarkt op slechts 3 minuten lopen en een winkelcentrum op 6 minuten lopen. Het bekende Centro Comercial Zenia Boulevard is bereikbaar binnen 10 minuten rijden. Golfliefhebbers hebben meerdere opties in de buurt, waaronder Villamartin Golf (6 minuten), Las Ramblas Golf (12 minuten), en Las Colinas Golf.
De luchthaven van Alicante ligt op slechts 40 minuten rijden, wat deze villa’s niet alleen stijlvol, maar ook uitstekend bereikbaar maakt.
Orihuela Costa is een kustgebied in het zuiden van de provincie Alicante, Spanje, dat deel uitmaakt van de gemeente Orihuela. Deze regio strekt zich uit langs de Middellandse Zee en staat bekend om haar uitgestrekte zandstranden, schilderachtige baaien en moderne voorzieningen. Orihuela Costa omvat populaire woon- en vakantiebestemmingen zoals Punta Prima, Playa Flamenca, La Zenia, Cabo Roig, Campoamor en Villamartín. Naast stranden biedt het gebied diverse golfbanen, winkelcentra zoals La Zenia Boulevard, en een breed scala aan restaurants en uitgaansgelegenheden. Door het aangename klimaat, met meer dan 300 dagen zon per jaar, is Orihuela Costa aantrekkelijk voor zowel toeristen als permanente bewoners.
Indien u graag meer informatie wenst over deze villas, de regio, waar u rekening mee dient te houden bij de aankoop van een woning in Spanje, of welke vragen u ook heeft, aarzel dan niet om ons te contacteren en dan helpen wij u graag verder.
GLOBAL-SPAIN REAL ESTATE / UW NEDERLANDSTALIGE MAKELAAR IN SPANJE (Costa Blanca, Costa Cálida, Balearen)
Office@Global-Spain.com / +34 865 75 27 65 (NL, EN, DE, FR, ES)
Aftersales@Global-Spain.com / +34 623 220 132 (ES, NL, EN)
Bent u op zoek naar een appartement, huis, villa, penthouse; met zwembad, solarium, garage, uitzicht op zee of welke wensen u ook heeft... Dan kan een gespecialiseerd en ervaren makelaarskantoor u begeleiden bij uw aankoop in Spanje. Global-Spain Real Estate, uw Nederlandstalige vastgoedmakelaar aan de Costa Blanca, Costa Cálida en de Balearen, is gevestigd in Torrevieja en helpt u graag bij het vinden van uw woning onder de Spaanse zon.
Als makelaar kunnen wij u ook helpen bij het verkrijgen van uw NIE-nummer, een volmacht (die uw aankoop in Spanje kan vergemakkelijken), het openen van een bankrekening en nog veel meer. Wij volgen de aankoop van uw woning in Spanje van A tot Z, en zijn op werkdagen altijd bereikbaar als u vragen heeft over de voortgang van uw dossier en uw aankoop.
Het Global-Spain team wenst u alvast een prettige zoektocht naar uw droomwoning in Spanje!