Ces villas uniques, situées à Orihuela Costa, offrent la possibilité de vivre dans un endroit paisible à proximité de la côte. Les superficies des parcelles varient de 178,30 m² à 305,21 m², avec une surface bâtie de 158,55 m². Cela vous donne une agréable sensation d’espace dans chaque villa.
En entrant vous entrez dans un hall de 10,80 m², où se trouvent également les escaliers. Le hall mène au grand espace de vie avec cuisine ouverte, un espace lumineux et ouvert de 35 m², qui offre une vue sur le jardin et la piscine privée (18 m²). Au rez-de-chaussée vous trouverez également une chambre (10,45 m²) et une salle de bain (3,65 m²).
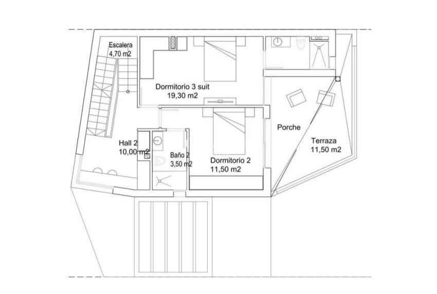
Au premier étage se trouvent deux chambres, chacune avec sa propre salle de bain. Le une chambre a une superficie de 11,50 m², avec une salle de bain de 3,50 m². La chambre principale est spacieuse avec 19,30 m², salle de bain comprise. Les deux chambres ont accès à une terrasse de 11,50 m², avec une belle vue sur le jardin et la piscine.
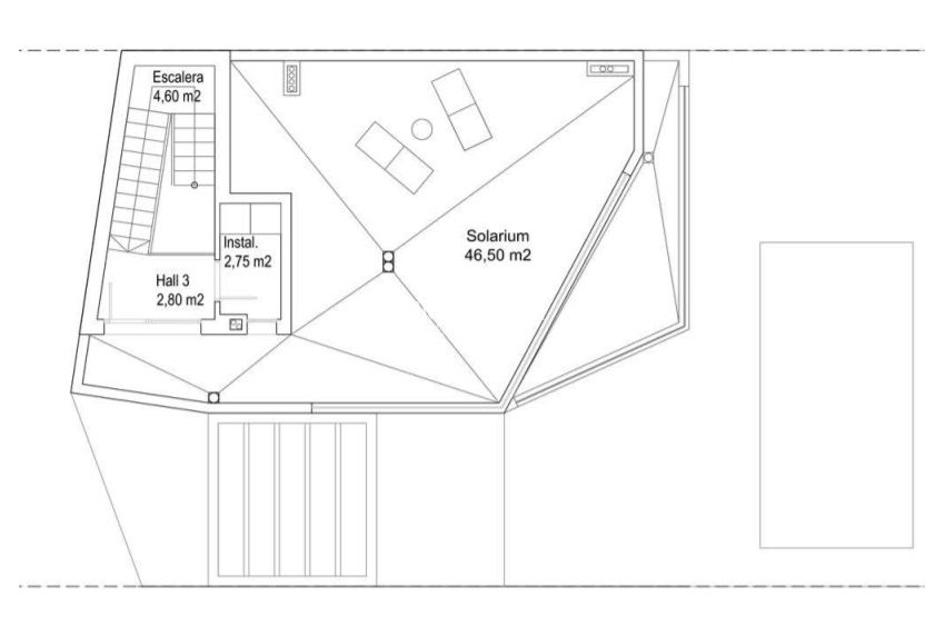
Un deuxième escalier mène à l'impressionnant solarium de 46,50 m², où vous pourrez profiter pleinement de l'intimité et du soleil. Il y a également un local technique de 2,75 m². Toutes les chambres ont des armoires intégrées. De plus, il existe des pré-installations pour la climatisation et une pré-installation pour une borne de recharge pour une voiture électrique. Un système d'interphone est également inclus dans le prix.
L'emplacement de ces villas est idéal. Les plages de Playa Flamenca, Playa La Zenia et Cala Mosca se trouvent à seulement 7 minutes en voiture. De nombreuses commodités sont disponibles à proximité immédiate : un supermarché à 3 minutes à pied et un centre commercial à 6 minutes à pied. Le célèbre boulevard Centro Comercial Zenia est accessible en moins de 10 minutes en voiture. Les amateurs de golf auront plusieurs options à proximité, notamment Villamartin Golf (6 minutes), Las Ramblas Golf (12 minutes) et Las Colinas Golf.
L'aéroport d'Alicante se trouve à seulement 40 minutes en voiture, ce qui rend ces villas non seulement élégantes, mais aussi facilement accessibles.
Orihuela Costa est une zone côtière du sud de la province d'Alicante, en Espagne, qui fait partie de la municipalité d'Orihuela. Cette région s'étend le long de la mer Méditerranée et est connue pour ses vastes plages de sable fin, ses baies pittoresques et ses équipements modernes. Orihuela Costa comprend des destinations résidentielles et de vacances populaires telles que Punta Prima, Playa Flamenca, La Zenia, Cabo Roig, Campoamor et Villamartín. En plus des plages, la région offre plusieurs terrains de golf, des centres commerciaux tels que le boulevard La Zenia et un large éventail de restaurants et de divertissements. Le climat agréable, avec plus de 300 jours de soleil par an, rend Orihuela Costa attractive tant pour les touristes que pour les résidents permanents.
Si vous souhaitez plus d'informations sur ces villas, la région, ce que vous devez prendre en compte lors de l'achat d'une propriété en Espagne, ou si vous avez des questions, n'hésitez pas à nous contacter et nous serons heureux de vous aider.
GLOBAL SPAIN REAL ESTATE (Costa Blanca, Costa Cálida, Îles Baléares)
Office@Global-Spain.com / +34 865 75 27 65 (NL, EN, DE, FR, ES)
Aftersales@Global-Spain.com / +34 623 220 132 (ES, NL, EN)
Vous recherchez un appartement, une maison, une villa, un penthouse ; avec piscine, solarium, garage, vue mer ou quelles que soient vos envies... Alors une agence immobilière spécialisée et expérimentée pourra vous guider dans votre achat en Espagne. Global-Spain Real Estate est situé à Torrevieja et se fera un plaisir de vous aider à trouver votre maison sous le soleil espagnol.
En tant qu'agent immobilier, nous pouvons également vous aider à obtenir votre numéro NIE, une procuration (qui peut faciliter votre achat en Espagne), à ouvrir un compte bancaire et bien plus encore. Nous suivons l'achat de votre maison en Espagne de A à Z et sommes toujours disponibles les jours ouvrés si vous avez des questions sur l'avancement de votre dossier et de votre achat.
L'équipe Global-Spain vous souhaite une agréable recherche de la maison de vos rêves en Espagne !