NEW BUILD EXCLUSIVE LUXURY VILLA AT FINCA CORTESÍN, CASARES
This exceptional residence, exclusive to the Finca Cortesin resort, exudes a captivating blend of luxury and elegance. Designed by the renowned Jose Maria Sierra architects, this architectural masterpiece stands unrivalled on the Costa del Sol, boasting a remarkable plot and breathtaking views.
The property showcases an abundance of floor-to-ceiling windows that grace both levels, allowing natural light to flood the interiors. Its striking white facade, embellished with wooden accents, sets the tone for a seamless transition between the exterior and interior spaces.
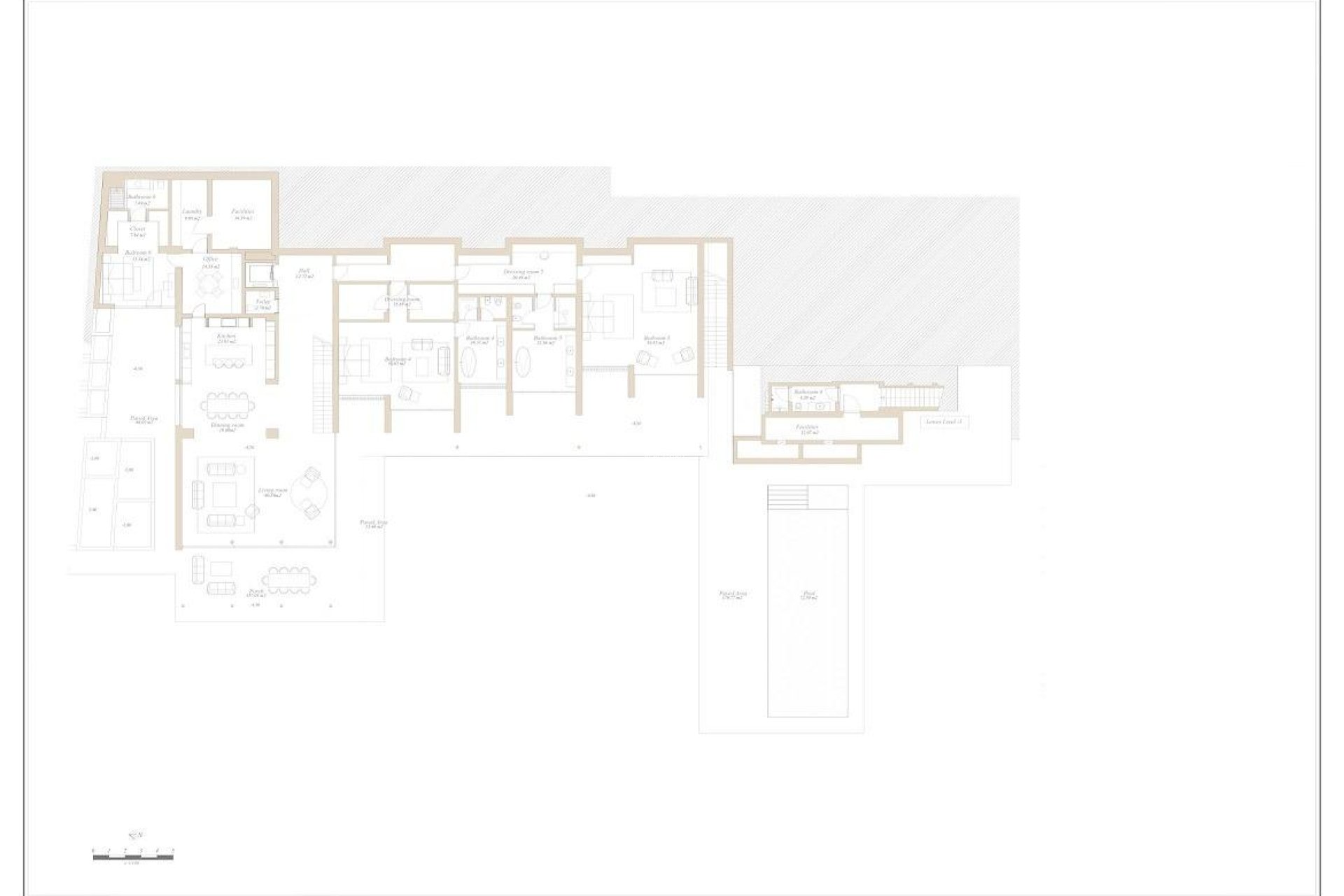
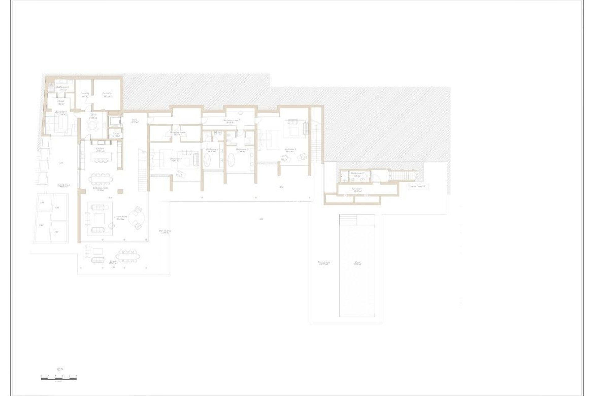
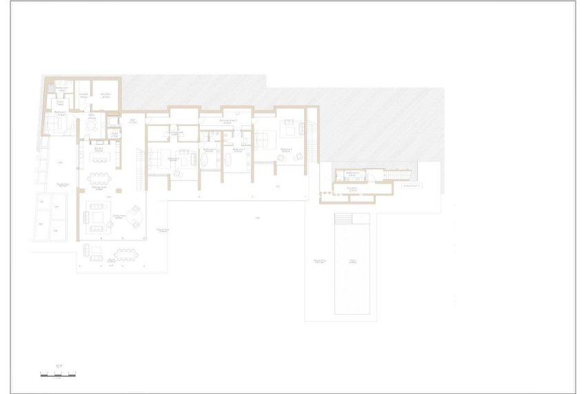
Of particular note is the impressive ceiling height, soaring to an astonishing 9 metres in the ground-level living area. A unique feature is the smaller living area on the top floor, providing a vantage point overlooking the ground-floor living space—a private retreat, akin to a concealed terrace within the property. The upper level is dedicated to the master bedroom and two guest rooms, each offering their own allure with stunning views of the golf course and Mediterranean Sea.
The lower level encompasses the remaining bedrooms, living area and kitchen—a harmonious blend of functionality and style. The entire ground floor effortlessly opens up to the garden, welcoming fresh air and natural light into the property.
The crown jewel of this residence is the spectacular garden, expansive in size and meticulously manicured.
A haven for outdoor enthusiasts, the garden boasts an enticing pool with dark azure tiles that beckons for a refreshing swim, while the integrated gazebo next to the pool provides an idyllic setting for relaxation. Majestic palm trees line the garden, complementing the sweeping vistas of the golf course and Mediterranean coastline. Delightful landscaping, featuring stunning flower beds and meticulously trimmed bushes, adds a touch of natural beauty. With its privileged frontline golf location, awe-inspiring architecture and unparalleled ambiance, this truly unique property stands as a testament to the allure of the Finca Cortesin Resort.
425