NEUBAU EINER EXKLUSIVEN LUXUSVILLA IN DER FINCA CORTESÍN, CASARES
Diese außergewöhnliche Residenz, die es nur in der Finca Cortesin gibt, besticht durch eine Mischung aus Luxus und Eleganz. Dieses architektonische Meisterwerk, das von dem renommierten Architekturbüro Jose Maria Sierra entworfen wurde, ist an der Costa del Sol einzigartig und verfügt über ein bemerkenswertes Grundstück und eine atemberaubende Aussicht.
Die Immobilie verfügt über eine Fülle von raumhohen Fenstern auf beiden Ebenen, durch die viel natürliches Licht in die Innenräume fällt. Die auffallend weiße Fassade mit hölzernen Akzenten sorgt für einen nahtlosen Übergang zwischen Außen- und Innenbereich.
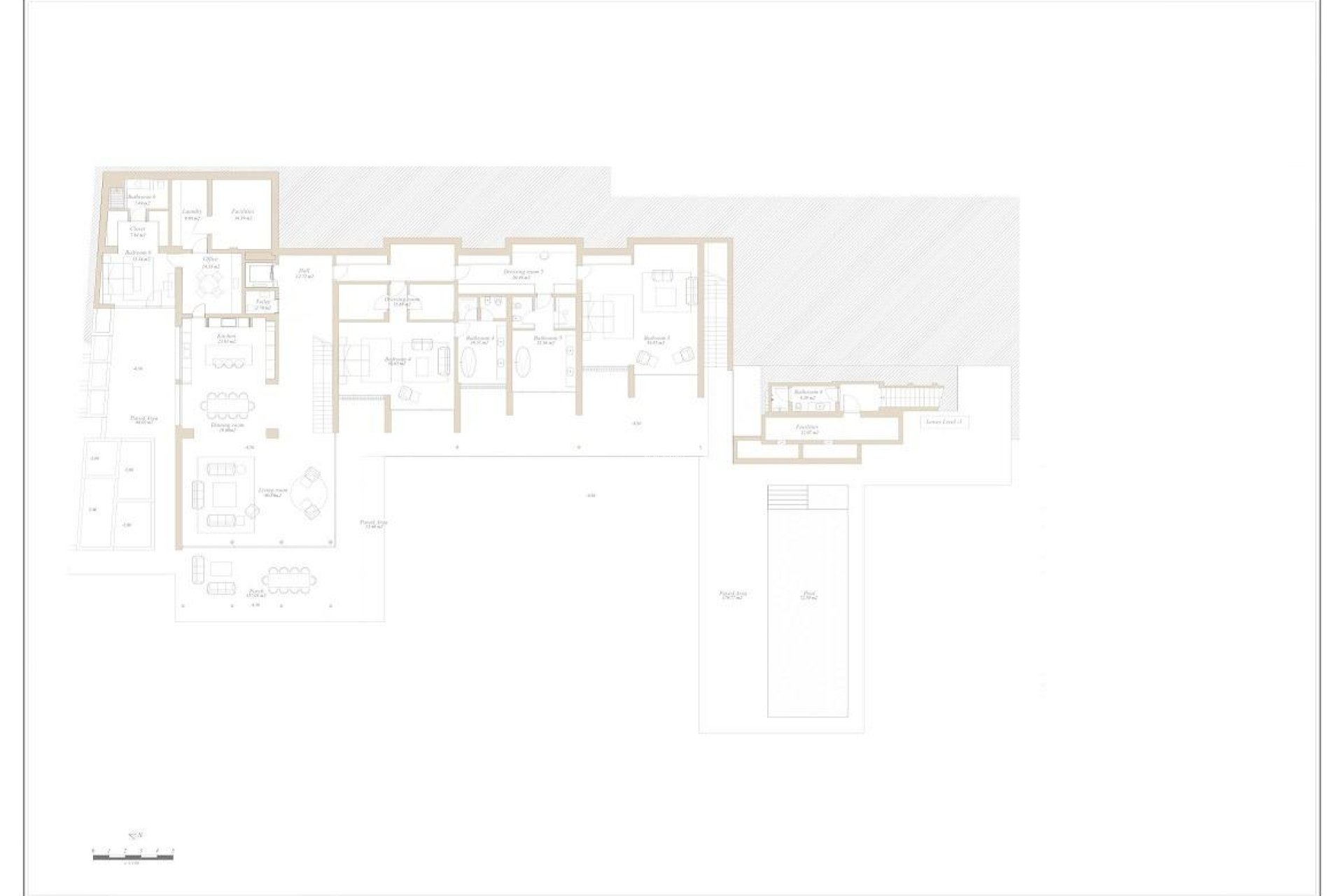
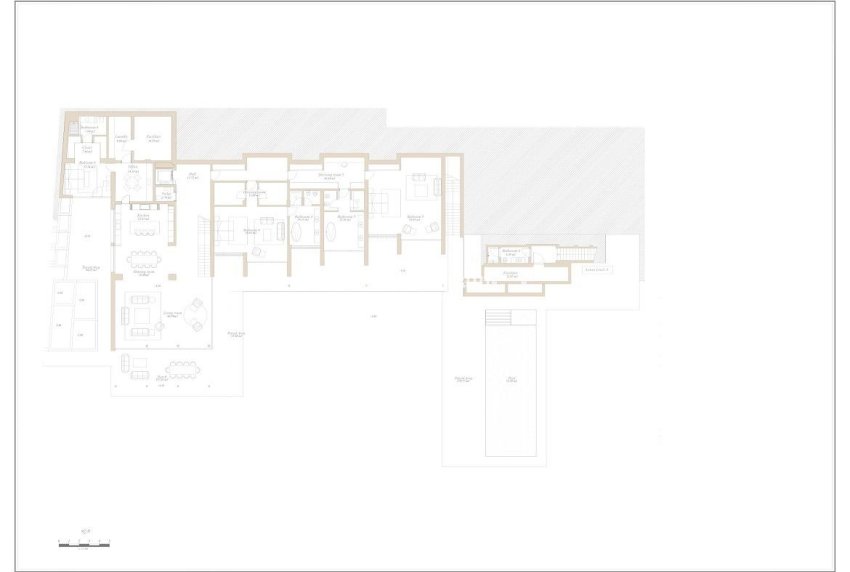
Besonders hervorzuheben ist die beeindruckende Deckenhöhe, die sich im ebenerdigen Wohnbereich auf erstaunliche 9 Meter beläuft. Einzigartig ist der kleinere Wohnbereich im Obergeschoss, von dem aus man den Wohnbereich im Erdgeschoss überblicken kann - ein privater Rückzugsort, der einer versteckten Terrasse im Haus gleicht. Das obere Stockwerk ist dem Hauptschlafzimmer und zwei Gästezimmern gewidmet, die jeweils ihre eigenen Reize mit atemberaubendem Blick auf den Golfplatz und das Mittelmeer bieten.
Die untere Ebene beherbergt die übrigen Schlafzimmer, den Wohnbereich und die Küche - eine harmonische Mischung aus Funktionalität und Stil. Das gesamte Erdgeschoss öffnet sich mühelos zum Garten hin und lässt frische Luft und natürliches Licht in das Anwesen.
Das Kronjuwel dieser Residenz ist der spektakuläre, weitläufige und sorgfältig gepflegte Garten.
Der Garten ist ein Paradies für alle, die sich gerne im Freien aufhalten. Der Pool mit seinen azurblauen Fliesen lädt zu einem erfrischenden Bad ein, während der integrierte Pavillon neben dem Pool eine idyllische Umgebung zum Entspannen bietet. Majestätische Palmen säumen den Garten und ergänzen die weiten Ausblicke auf den Golfplatz und die Mittelmeerküste. Die reizvolle Gartengestaltung mit prächtigen Blumenbeeten und sorgfältig gestutzten Büschen sorgt für einen Hauch von natürlicher Schönheit. Mit seiner privilegierten Lage in erster Reihe zum Golfplatz, seiner beeindruckenden Architektur und seinem unvergleichlichen Ambiente ist dieses wirklich einzigartige Anwesen ein Beweis für die Anziehungskraft des Finca Cortesin Resorts.
425