Complexe résidentiel à Relleu avec piscine commune et vue dégagée
Il s'agit d'une rénovation complète d'un bâtiment construit il y a plusieurs années et laissé inachevé. C'est l'endroit idéal pour ceux qui recherchent une maison de qualité dans un cadre magnifique, avec toutes les commodités à proximité.
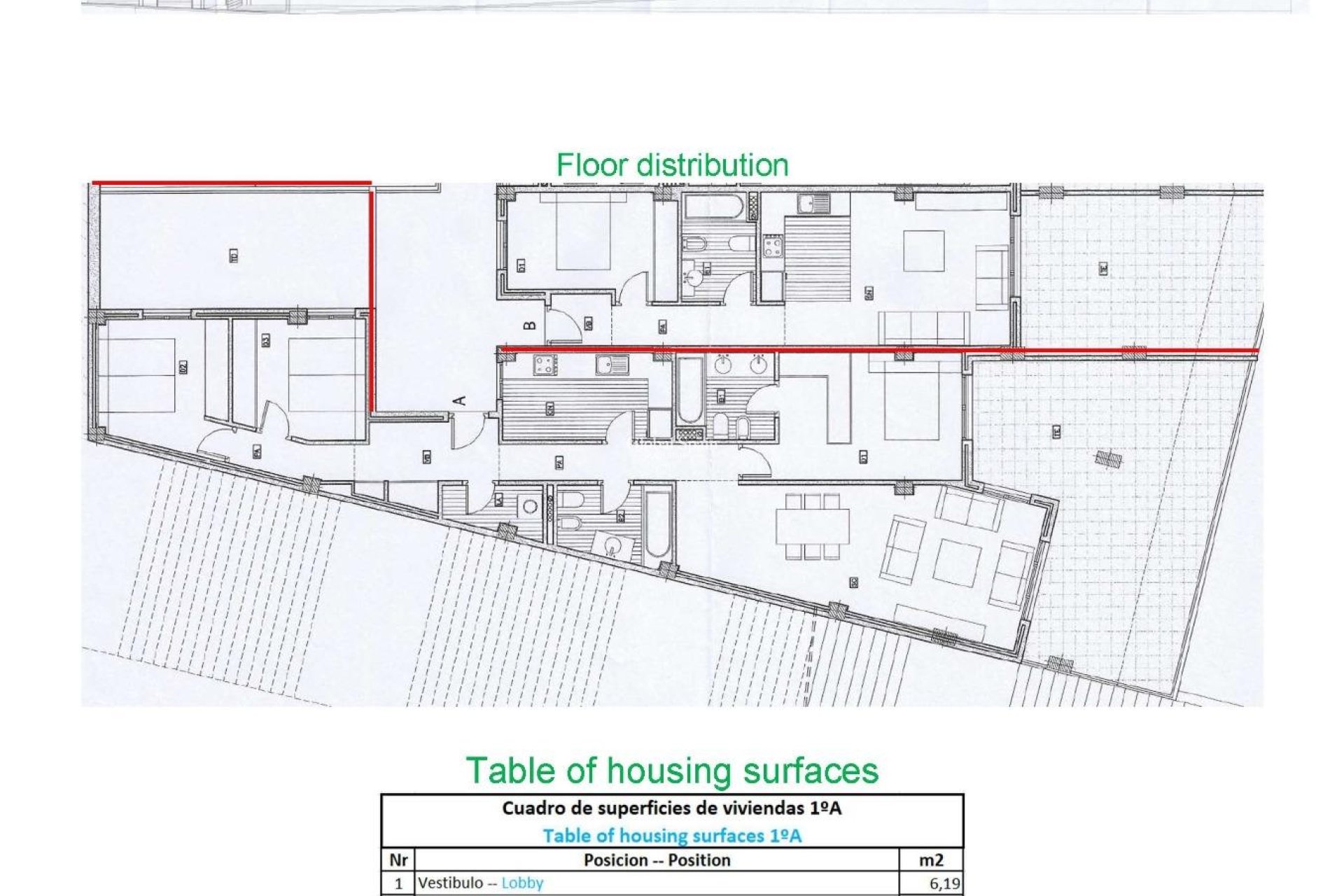
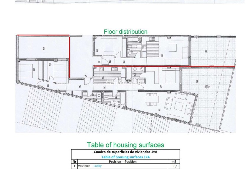
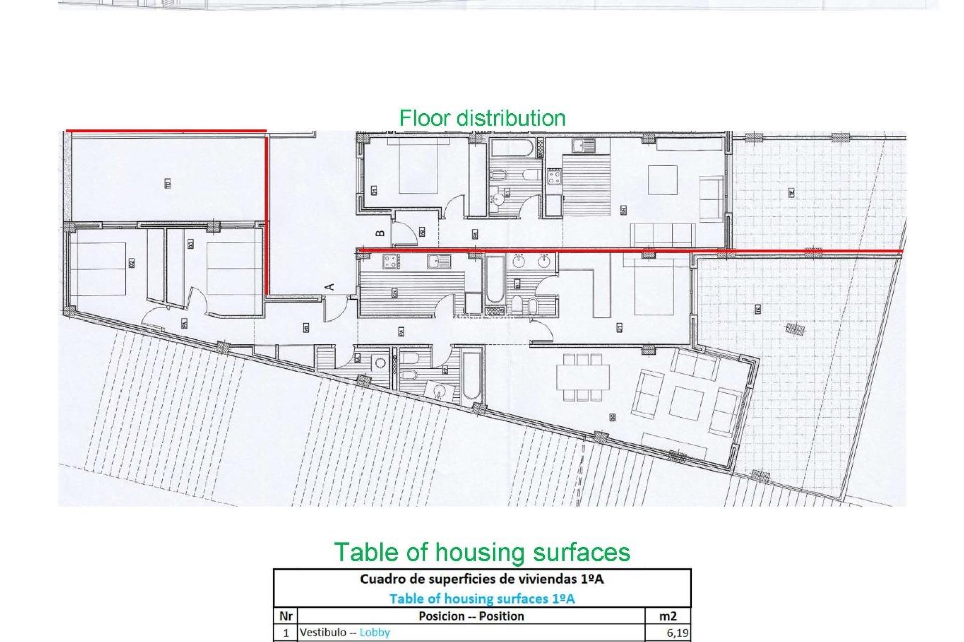
Le bâtiment compte 7 étages avec 2 cages d'escalier et 2 ascenseurs. Au sous-sol, il y a 69 places de parking et 42 débarras. Au rez-de-chaussée, il y a une piscine intérieure chauffée, une grande salle à la disposition de tous les propriétaires et deux locaux commerciaux. Sur le toit-terrasse, il y a une piscine extérieure avec des terrasses.
Profitez de la cuisine moderne et des salons avec une vue imprenable, et détendez-vous sur la terrasse spacieuse qui surplombe la nature impressionnante de Relleu.
Depuis les terrasses, vous profiterez d'une vue spectaculaire et totalement dégagée. Les montagnes, le nouveau lac et les zones sportives du village sont magnifiques. L'orientation est sud-est, de sorte que toutes les terrasses sont ensoleillées du petit matin jusqu'en début d'après-midi. Regarder le lever du soleil depuis votre terrasse peut être une expérience merveilleuse.
Possibilité de place de parking souterrain et de débarras moyennant un supplément.
Détendez-vous
- Dans la piscine : plongez dans une oasis de sérénité et laissez derrière vous le stress quotidien en nageant dans notre piscine rafraîchissante.
- Sauna : libérez toutes vos tensions et profitez de notre sauna luxueux. La chaleur apaisante détend vos muscles et purifie votre esprit, vous laissant complètement revigoré après chaque séance.
Faites de l'exercice
- Salle de sport : atteignez vos objectifs de remise en forme sans quitter le confort de votre maison. Notre salle de sport ultramoderne est équipée des derniers appareils, vous offrant la liberté de vous entraîner à votre rythme et à votre manière.
Que vous recherchiez un entraînement intense, une baignade relaxante ou simplement un moment de paix et de réflexion, notre complexe d'appartements vous offre tout ce dont vous avez besoin pour un mode de vie équilibré.
Relleu est un magnifique village de montagne paisible où vivent des personnes de différentes nationalités. Relleu se trouve à 15 km de l'autoroute méditerranéenne, à 18 km de la plage de Villajoyosa et à 25 km de la plage de Benidorm.
Le village de Relleu est l'endroit idéal pour les amateurs de montagne, de cyclisme, de randonnée, de canyoning et d'autres sports. La route du réservoir, avec sa célèbre passerelle, mène directement au village. Ces montagnes sont le cadre idéal pour faire de la moto ou du vélo.
425