Kompleks mieszkaniowy w Relleu z wspólnym basenem i otwartymi widokami
Jest to całkowita renowacja budynku wybudowanego kilka lat temu, który pozostał niedokończony. Jest to idealne miejsce dla osób poszukujących wysokiej jakości domu w pięknej okolicy, z wszystkimi udogodnieniami w pobliżu.
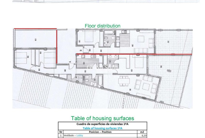
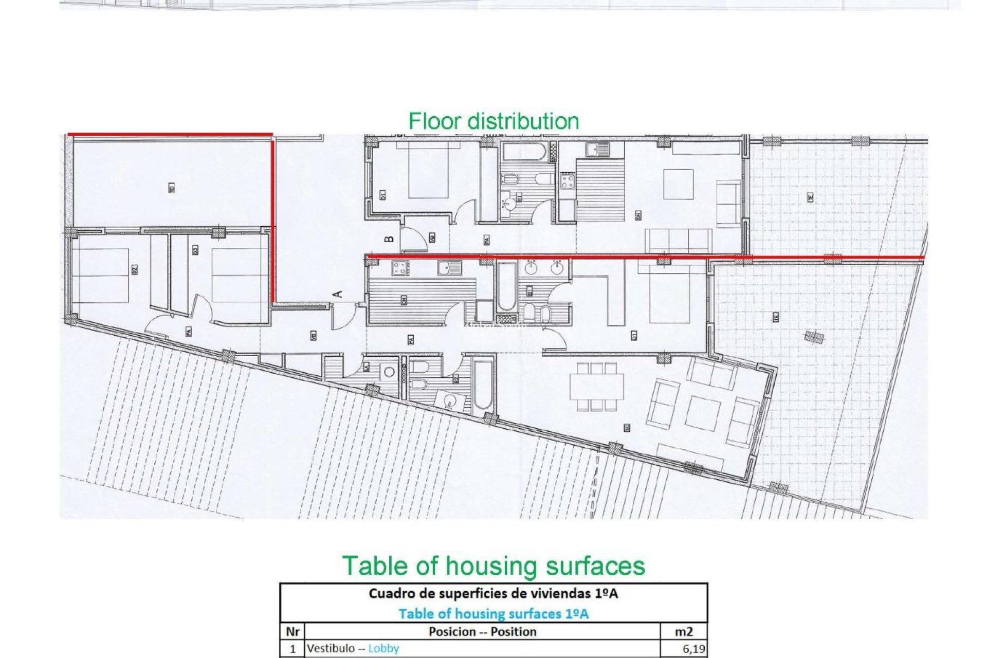
Budynek ma 7 pięter z 2 klatkami schodowymi i 2 windami. W piwnicy znajduje się 69 miejsc parkingowych i 42 pomieszczenia magazynowe. Na parterze znajduje się kryty basen z podgrzewaną wodą, duża sala do użytku wszystkich właścicieli oraz dwa lokale użytkowe. Na tarasie na dachu znajduje się odkryty basen z tarasami.
Ciesz się gotowaniem w nowoczesnej kuchni i salonach z przepięknym widokiem oraz relaksuj się na przestronnym tarasie z widokiem na imponującą przyrodę Relleu.
Z tarasów rozciąga się spektakularny i całkowicie niezakłócony widok. Góry, nowe jezioro i tereny sportowe wioski są przepiękne. Orientacja południowo-wschodnia sprawia, że wszystkie tarasy są nasłonecznione od wczesnego rana do wczesnego popołudnia. Oglądanie wschodu słońca z tarasu może być wspaniałym doświadczeniem.
Możliwość wykupienia miejsca parkingowego w garażu podziemnym i pomieszczenia gospodarczego za dodatkową opłatą.
Relaks
- W basenie: Zanurz się w oazie spokoju i zapomnij o codziennym stresie, pływając w naszym orzeźwiającym basenie.
- Sauna: Uwolnij się od napięcia i rozkoszuj się naszą luksusową sauną. Kojące ciepło rozluźnia mięśnie i oczyszcza umysł, pozostawiając Cię całkowicie odmłodzonym po każdej sesji.
Ćwiczenia
- Siłownia: Osiągnij swoje cele fitness bez opuszczania komfortu własnego domu. Nasza nowoczesna siłownia jest wyposażona w najnowszy sprzęt, dzięki czemu możesz trenować we własnym tempie i na swój własny sposób.
Niezależnie od tego, czy szukasz intensywnego treningu, relaksującej kąpieli, czy po prostu chwili spokoju i refleksji, nasz kompleks apartamentów oferuje wszystko, czego potrzebujesz do zrównoważonego stylu życia.
Relleu to piękna i spokojna górska wioska, w której mieszkają ludzie różnych narodowości. Relleu znajduje się 15 km od autostrady śródziemnomorskiej, 18 km od plaży Villajoyosa i 25 km od plaży Benidorm.
Wioska Relleu jest idealnym miejscem dla miłośników gór, jazdy na rowerze, wędrówek, canyoningu i innych sportów. Trasa prowadząca do zbiornika wodnego ze słynnym mostem dla pieszych prowadzi bezpośrednio do wioski. Góry te są idealnym miejscem do jazdy na motocyklu lub rowerze.
425