Wohnkomplex in Relleu mit Gemeinschaftspool und freiem Blick
Es handelt sich um eine Komplettrenovierung eines vor einigen Jahren erbauten Gebäudes, das unvollendet geblieben war. Es ist der ideale Ort für diejenigen, die ein hochwertiges Zuhause in schöner Lage mit allen Annehmlichkeiten in der Nähe suchen.
Das Gebäude hat 7 Etagen mit 2 Treppenhäusern und 2 Aufzügen. Im Untergeschoss befinden sich 69 Parkplätze und 42 Lagerräume. Im Erdgeschoss gibt es einen beheizten Innenpool, einen großen Raum, der allen Eigentümern zur Verfügung steht, und zwei Gewerbeflächen. Auf der Dachterrasse gibt es einen Außenpool mit Terrassen.
Genießen Sie das Kochen in der modernen Küche und in den Wohnzimmern mit atemberaubender Aussicht und entspannen Sie sich auf der großzügigen Terrasse mit Blick auf die beeindruckende Natur von Relleu.
Von den Terrassen aus hat man einen spektakulären und völlig unverbauten Blick. Die Berge, der neue See und die Sportanlagen des Dorfes sind wunderschön. Die Ausrichtung ist nach Südosten, sodass alle Terrassen von früh morgens bis zum frühen Nachmittag Sonne haben. Den Sonnenaufgang von Ihrer Terrasse aus zu beobachten, kann ein wunderbares Erlebnis sein.
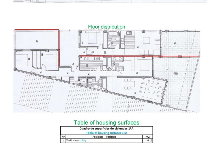
Möglichkeit eines Tiefgaragenstellplatzes und eines Abstellraums gegen Aufpreis.
Entspannen
- Im Pool: Tauchen Sie ein in eine Oase der Ruhe und lassen Sie den Alltagsstress hinter sich, während Sie in unserem erfrischenden Pool schwimmen.
- Sauna: Lösen Sie alle Verspannungen und genießen Sie unsere luxuriöse Sauna. Die wohltuende Wärme entspannt Ihre Muskeln und reinigt Ihren Geist, sodass Sie sich nach jeder Sitzung vollkommen erholt fühlen.
Sport
- Fitnessstudio: Erreichen Sie Ihre Fitnessziele, ohne den Komfort Ihres Zuhauses zu verlassen. Unser hochmodernes Fitnessstudio ist mit den neuesten Geräten ausgestattet und bietet Ihnen die Freiheit, in Ihrem eigenen Tempo und auf Ihre eigene Weise zu trainieren.
Ob Sie ein intensives Training, ein entspanntes Bad oder einfach nur einen Moment der Ruhe und Besinnung suchen, unser Apartmentkomplex bietet Ihnen alles, was Sie für einen ausgewogenen Lebensstil benötigen.
Relleu ist ein wunderschönes und friedliches Bergdorf, in dem Menschen verschiedener Nationalitäten leben. Relleu liegt 15 km von der Mittelmeerautobahn, 18 km vom Strand von Villajoyosa und 25 km vom Strand von Benidorm entfernt.
Das Dorf Relleu ist der perfekte Ort für Liebhaber der Berge, des Radfahrens, Wanderns, Canyoning und anderer Sportarten. Die Stauseeroute mit ihrer berühmten Fußgängerbrücke führt direkt zum Dorf. Diese Berge sind die ideale Kulisse für Motorrad- oder Radtouren.
425