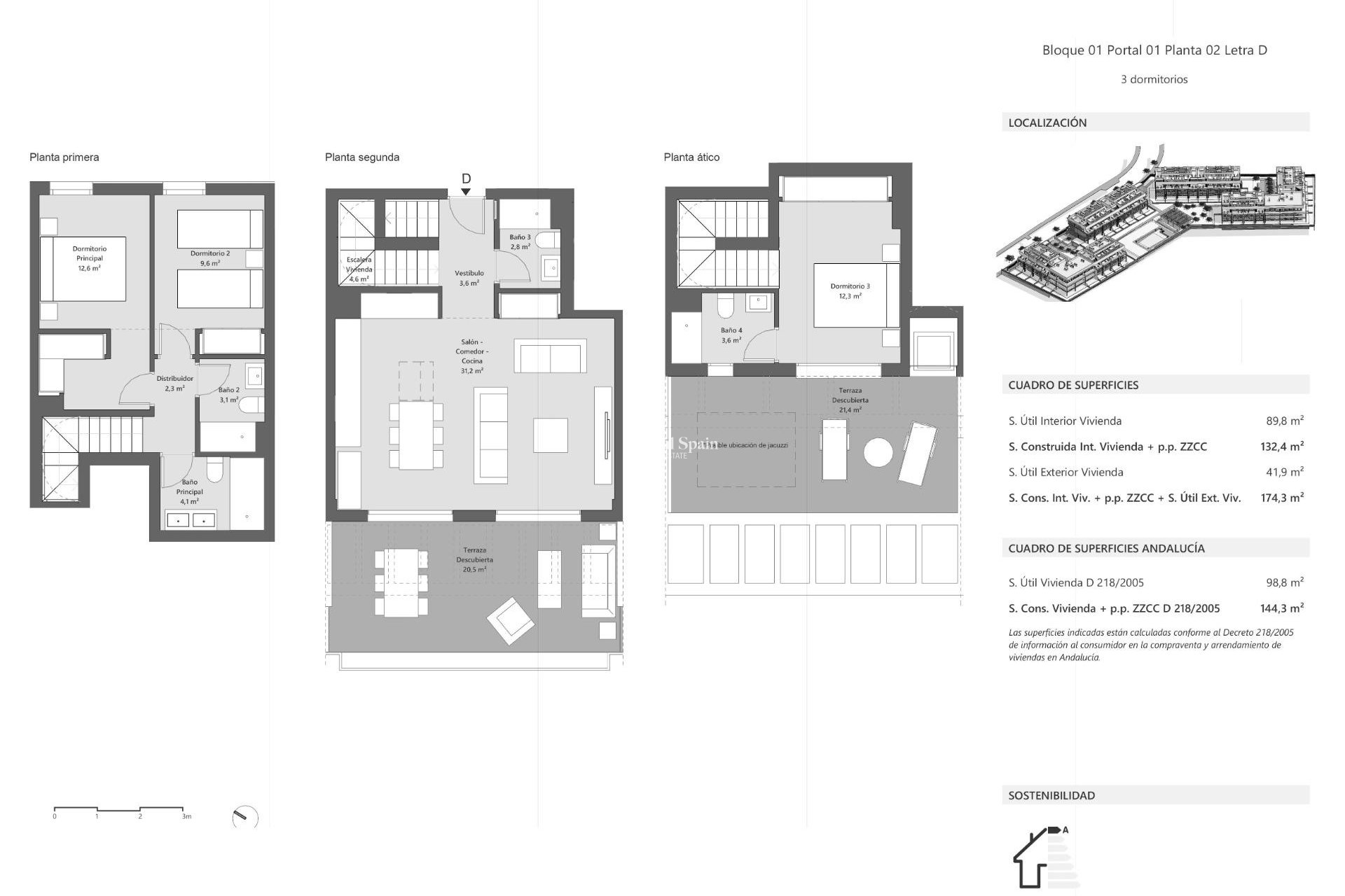
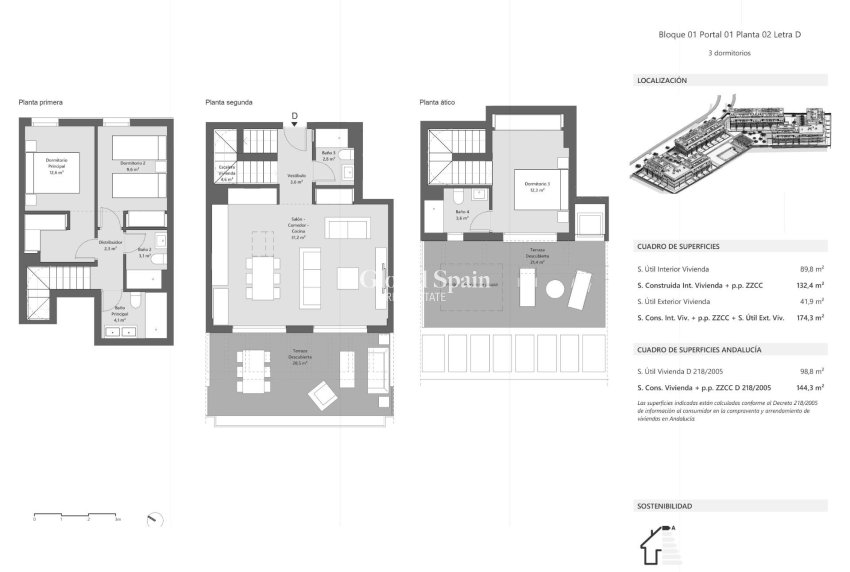
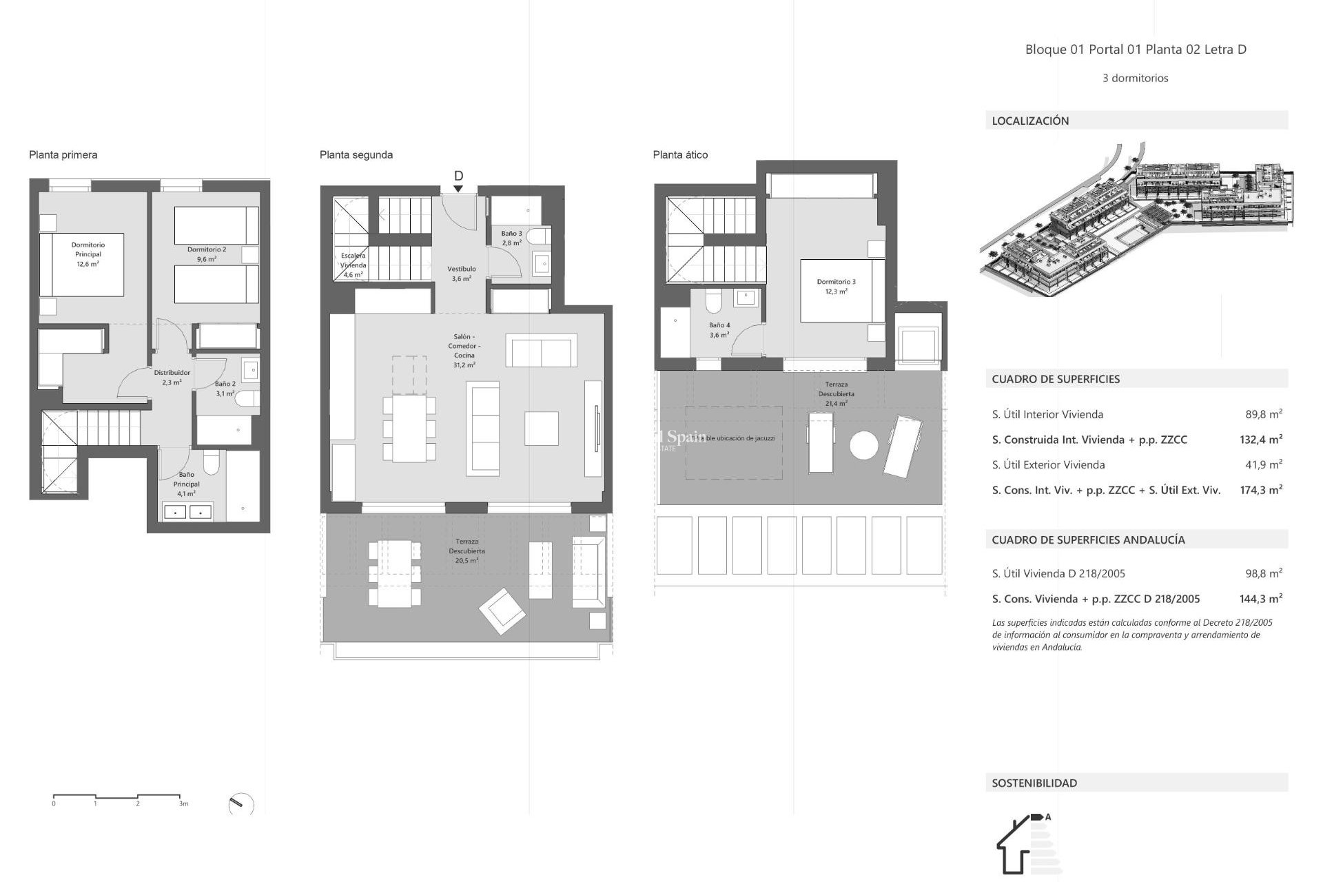
New Build » PENTHOUSE » ESTEPONA » Ca

PENTHOUSE/New Build MÁLAGA / COSTA DEL SOL · ESTEPONA

Ref.SP-44823
€ 518.400

Description

PENTHOUSE/New Build MÁLAGA / COSTA DEL SOL · ESTEPONA

Ref.SP-44823
€ 518.400

Features

Location

Make an enquiry

Data Controller: Global Spain, Purpose of Processing: Management and control of the services offered through the Real Estate Services website, Sending information via newsletter and others, Legal Basis: By consent, Recipients: Data will not be shared, except for accounting purposes, Rights of Interested Parties: Access, rectify, and delete data, request its portability, object to processing, and request its limitation, Source of Data: The Data Subject, Additional Information: You can consult additional and detailed information on data protection Here.
WhatsApp