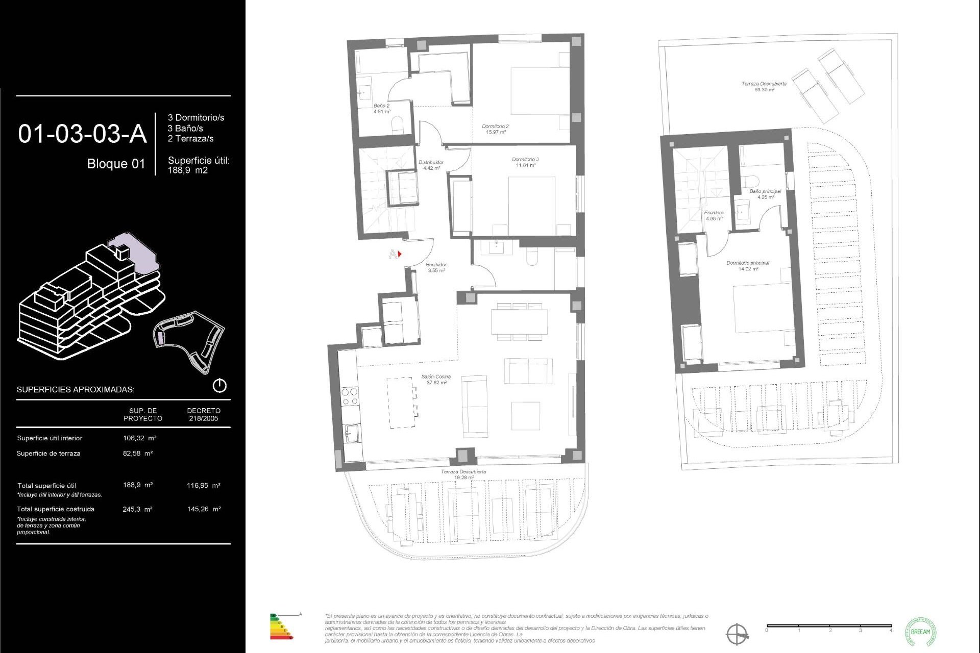
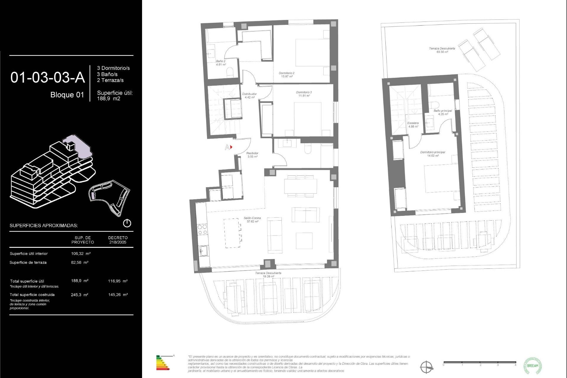
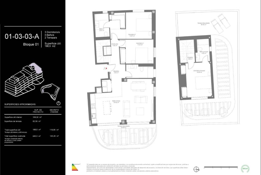
New Build » PENTHOUSE » MIJAS » Hipód

PENTHOUSE/New Build MÁLAGA / COSTA DEL SOL · MIJAS

Ref.SP-86682
€ 764.000

Description

PENTHOUSE/New Build MÁLAGA / COSTA DEL SOL · MIJAS

Ref.SP-86682
€ 764.000

Features

Location

Make an enquiry

Data Controller: Global Spain, Purpose of Processing: Management and control of the services offered through the Real Estate Services website, Sending information via newsletter and others, Legal Basis: By consent, Recipients: Data will not be shared, except for accounting purposes, Rights of Interested Parties: Access, rectify, and delete data, request its portability, object to processing, and request its limitation, Source of Data: The Data Subject, Additional Information: You can consult additional and detailed information on data protection Here.

Similar properties

WhatsApp