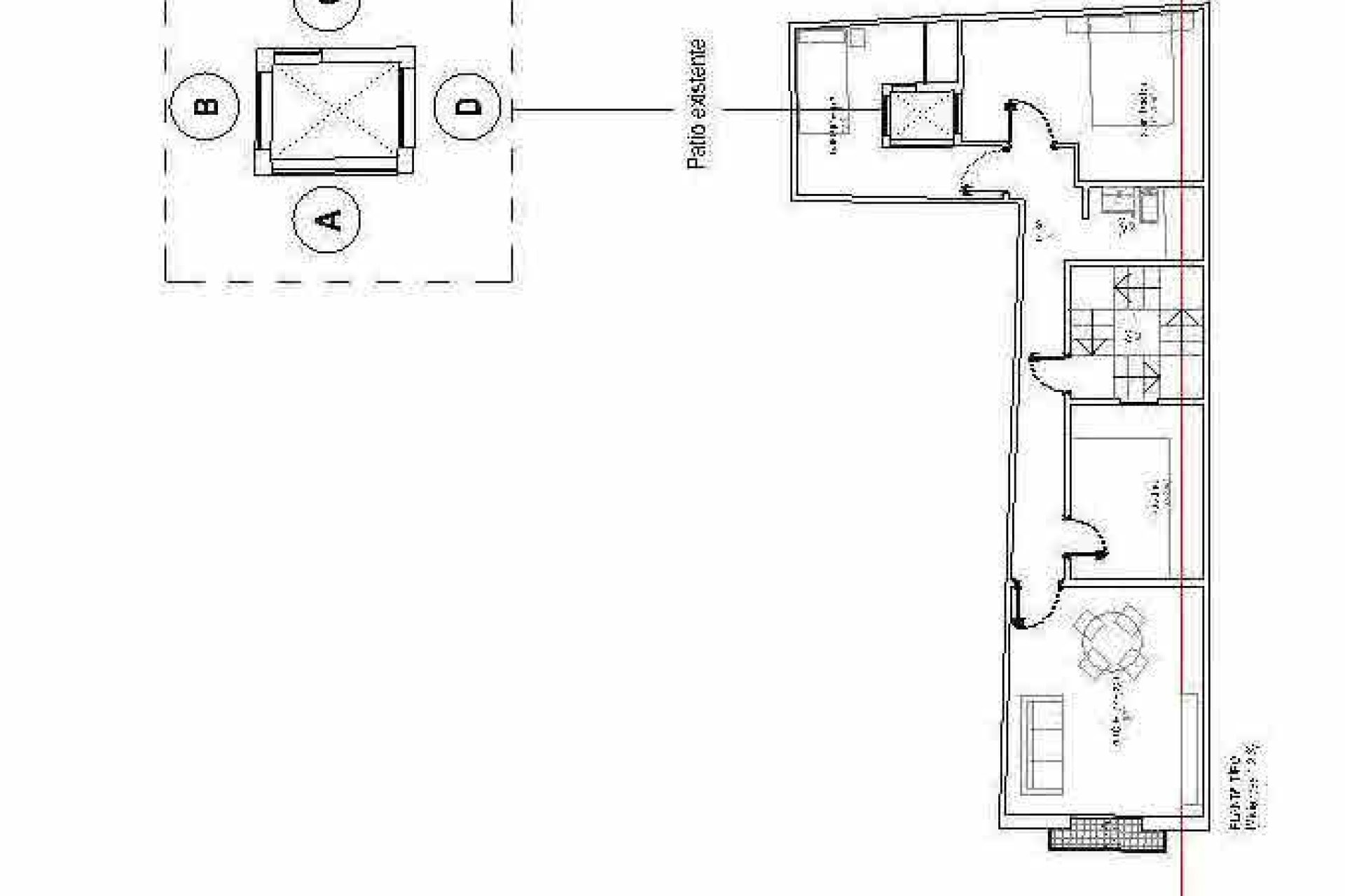
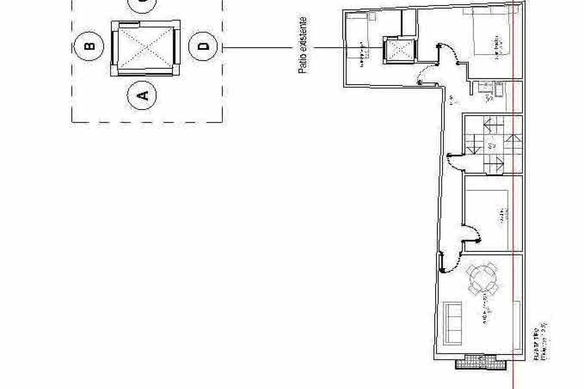
EXCELLENT INVESTMENT OPPORTUNITY IN THE CITY CENTRE OF CARTAGENA - 4 LEVEL APARTMENT BLOCK READY TO BE RENOVATED, PROJECT IN PLACE.
68M2 Plot including 58m2 commercial unit, 1st floor 71m2, 2nd Floor 71m2, 3rd Floor 69m2.
Contact us now for further information.
- Historic Location:
Nestled in Cartagena’s old town, this apartment is surrounded by the city’s rich history, with landmarks, quaint streets, and cultural hotspots just steps away.
- Access:
The building will not have a lift.
Cartagena, Spain is a historic port city located in the south eastern region of the country, within the autonomous community of Murcia. Renowned for its rich history, stunning Mediterranean coastline, and vibrant cultural scene, Cartagena offers a unique blend of ancient heritage and modern charm.
Key Highlights:
1. **Historical Significance**:
Cartagena has over 2,000 years of history, with roots in Carthaginian, Roman, Byzantine, and Moorish civilizations. The city's name originates from its Carthaginian founders, and its strategic location made it a key military and trading hub throughout history.
2. **Landmarks and Architecture**:
- **Roman Theatre**: A remarkably well-preserved structure from the 1st century BC, one of Cartagena’s most iconic attractions.
- **Concepción Castle**: A medieval fortress offering panoramic views of the city and harbour.
- **Punic Wall of Cartagena**: A remnant of the ancient Carthaginian city, showcasing the city's early history.
- **Art Nouveau Architecture**: The city features elegant modernist buildings, particularly in its historic quarter.
3. **Cultural Experiences**:
Cartagena hosts various festivals and cultural events, such as the **Carthaginians and Romans Festival**, celebrating its historical roots. The city's museums, like the National Museum of Underwater Archaeology (ARQVA), delve into its maritime and archaeological legacy.
4. **The Port and Beaches**:
The deep-water port is a central feature, with a beautiful promenade with restaurants. Nearby beaches, such as Cala Cortina, offer crystal-clear waters and relaxing spots to soak in the Mediterranean sun.
5. **Modern Attractions**:
The city has embraced its history while growing into a modern urban centre. The vibrant Calle Mayor is a hub for shopping, dining, and nightlife, combining historic charm with contemporary amenities.
6. **Natural Surroundings**:
Cartagena is surrounded by rugged hills and natural parks, including the Sierra de la Muela, ideal for hiking and exploring. The coastline also includes stunning coves and cliffs.
Cartagena’s unique combination of ancient history, coastal beauty, and modern culture makes it a captivating destination for visitors and a charming city for residents.
Price shown excludes buying costs
Cash buyer: add 10%
Mortgage buyer: add 12%