When you enter the domain via the beautiful entrance with automatic gate, you immediately know that this is no ordinary place. The glamor radiates from the villa over the 14,000 m2 estate and the beautiful views of the surroundings almost give you the feeling that you are in the middle of a fairy tale.
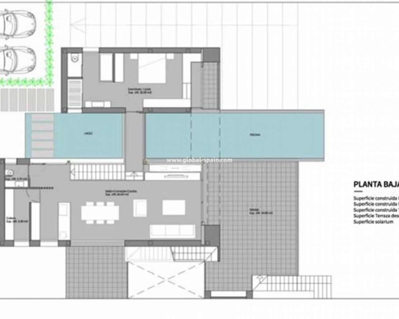
When entering the house through the front door you enter an entrance hall with vestibule and a guest toilet, after which you enter the very spacious living room in an atmosphere of natural light with a large open kitchen with marble worktops, breakfast bar and kitchen island. Everything is manufactured with the best materials and equipped with top quality integrated appliances.
In the villa you have on one side the master bedroom with en-suite bathroom and a single bedroom and on the other side of the villa there are two more double bedrooms and a family bathroom.
From the sitting area you have a beautiful view of the garden, the swimming pool and the beautiful expansive azure blue lake of Torremendo ("Embalse de la Pedrera"), surrounded by the mountains that really complete the picture. You can enter the “picture” from the living room through large glass window doors.
There is also an outdoor kitchen with pizza oven and a spacious BBQ area, ideal for parties with family and friends or just for a cozy intimate evening at sunset in peace with only the sounds of life in nature. For fans of throwing the iron balls to a small ball, there is also a petanque court.
On the plot there is also a separate wooden lodge with bathroom and terrace, ideal as an extra guesthouse.
There is also a covered parking space and a large storage room. At the front you have enough parking space for many vehicles. The vast domain offers many possibilities for those who would like to expand it further.
In this house, enjoyment is the message and you see dreams come true.