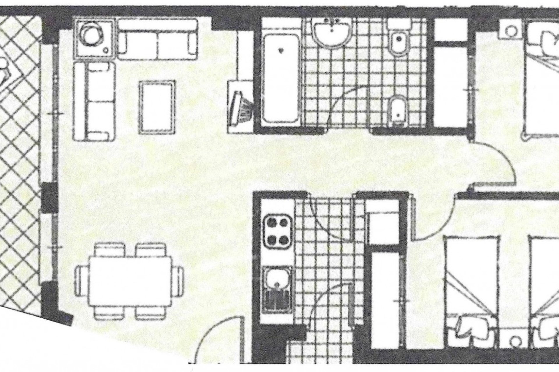
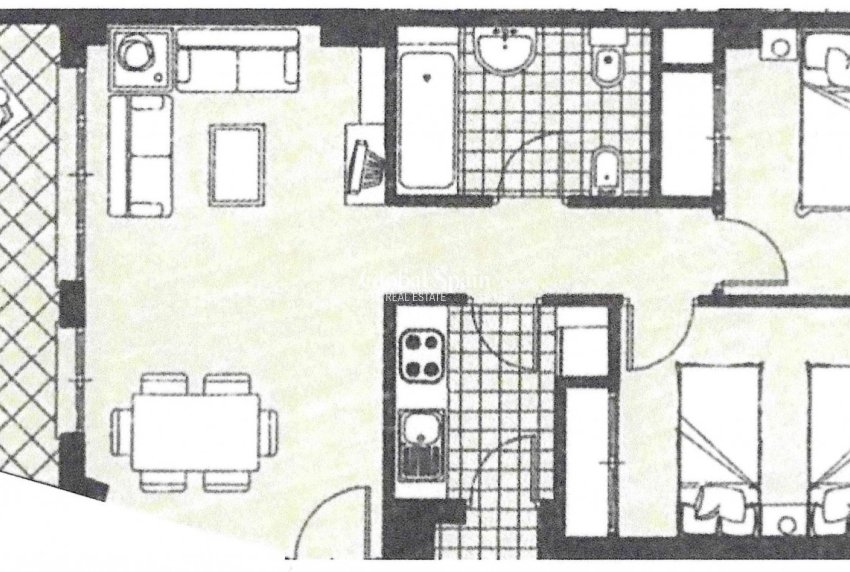
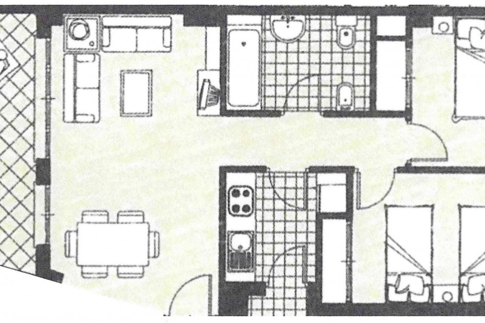
Appartement de deux chambres et une salle de bain en première ligne de golfCet appartement situé au premier étage se trouve dans la phase 4 de ce complexe de golf 18 trous conçu par Jack Niklaus et se trouve à environ dix minutes à pied du « centre-ville » du complexe avec restaurant, bar, supermarché, café et les charmants jardins de l'Hacienda de la famille Riquelme, dont le complexe tire son nom.Le complexe hôtelier compte 19 piscines, la plus proche étant à deux pas.L'appartement donne sur le salon/salle à manger grâce à de grandes portes-fenêtres coulissantes menant à la terrasse, elle-même fermée par des portes-fenêtres coulissantes permettant une utilisation toute l'année et carrelée de la même manière que l'intérieur de l'appartement.On y jouit de superbes vues sur le parcours de golf et sur les montagnes au loin.Le couloir dessert les deux chambres. Chaque chambre dispose d'une armoire double intégrée avec portes coulissantes offrant un grand espace de rangement et de nombreux tiroirs, ainsi que d'un balcon Juliette indépendant.La cuisine comprend des éléments bas, un plan de travail et des éléments hauts, et est équipée d'un four, d'une plaque de cuisson, d'une hotte aspirante, d'un lave-linge, d'un lave-vaisselle et d'un réfrigérateur-congélateur.La salle de bains comprend des toilettes, un bidet, un meuble vasque avec miroir. Elle dispose d'une cabine de douche d'angle et offre suffisamment d'espace pour la transformer en douche à l'italienne. C'est l'une des plus grandes salles de bains des propriétés de l'Hacienda Riquelme.Cet appartement se prête parfaitement à une modernisation en un espace ouvert de style américain, comme illustré dans l'« Appartement rénové » de notre site web.Le village espagnol typique et convivial de Sucina, avec ses bars, ses restaurants et sa place de l'église, est à seulement quelques minutes en voiture.L'aéroport international de Murcie est situé à environ 20 minutes en voiture et l'aéroport d'Alicante à environ 1 heure et 15 minutes en voiture.Les villes historiques de Murcie et de Carthagène sont toutes deux situées à environ 40 minutes en voiture.Les plages de Costa Calida, qui longent la côte méditerranéenne, sont à seulement 20 minutes en voiture.Visitez la GALERIE de notre site web pour découvrir des photos de lieux à visiter dans la région et au-delà.