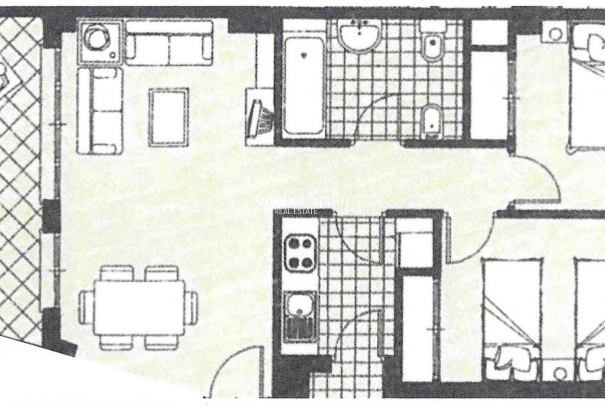
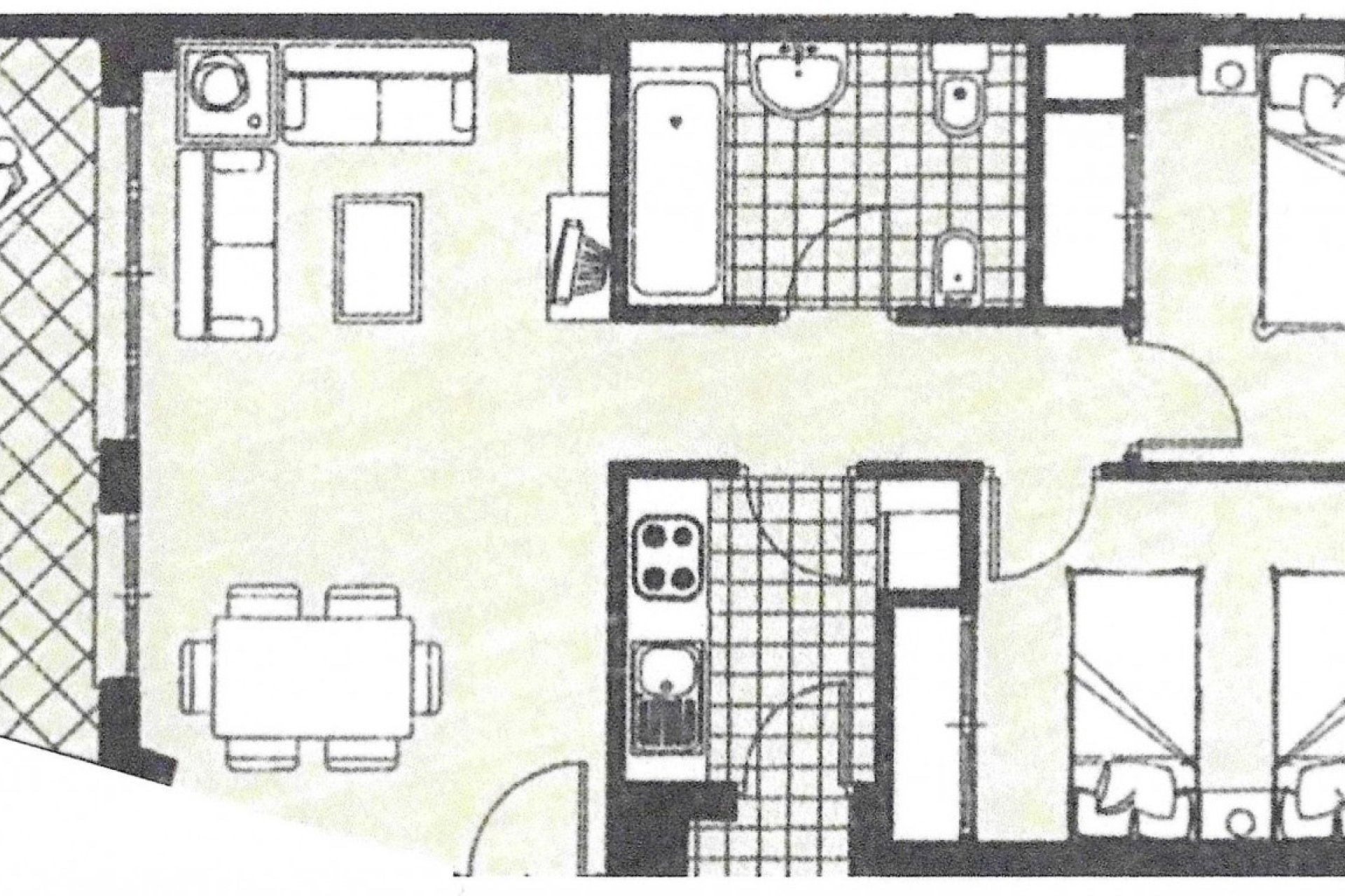
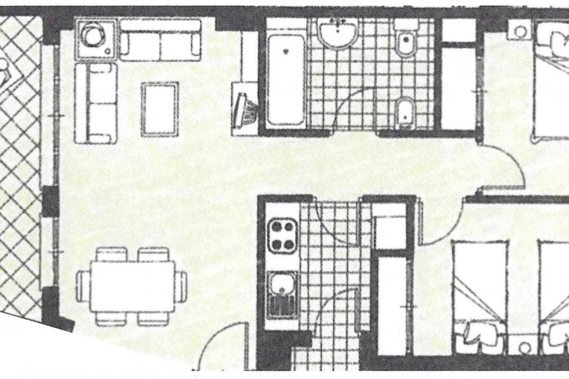
Zwei-Zimmer-Wohnung mit Bad in erster GolflinieDieses Apartment im ersten Stock befindet sich in Phase 4 dieses von Jack Niklaus entworfenen 18-Loch-Golfresorts und ist etwa zehn Gehminuten vom Resort-„Ortszentrum“ mit Restaurant, Bar, Supermarkt, Café und den reizvollen Gärten der Hacienda der Familie Riquelme entfernt, von der das Resort seinen Namen hat.Das Resort verfügt über 19 Swimmingpools, der nächste ist nur einen Steinwurf entfernt.Die Wohnung betritt man über große Schiebetüren zum Wohn-/Essbereich, die auf die Terrasse führen. Diese ist ebenfalls mit Schiebetüren versehen und somit ganzjährig nutzbar. Die Fliesen sind farblich auf das Innere der Wohnung abgestimmt.Man hat einen herrlichen Blick über den Golfplatz hinweg auf die Berge in der Ferne.Der Flur führt zu den beiden Schlafzimmern. Jedes Schlafzimmer verfügt über einen eingebauten Doppelkleiderschrank mit Schiebetüren, der viel Stauraum und Schubladen bietet, sowie über einen separaten französischen Balkon.Die Küche besteht aus einer Reihe von Unterschränken, Arbeitsplatten und Hängeschränken und ist mit Backofen, Kochfeld, Dunstabzugshaube, Waschmaschine, Geschirrspüler und Kühl-/Gefrierkombination ausgestattet.Das Badezimmer ist mit WC, Bidet, Waschtisch mit Waschbecken und Spiegel ausgestattet. Es verfügt über eine Eckdusche und bietet ausreichend Platz, um diese in eine ebenerdige Dusche umzubauen. Es zählt zu den geräumigeren Badezimmern der Anwesen auf Hacienda Riquelme.Diese Wohnung eignet sich perfekt für eine Modernisierung im amerikanischen Stil mit offenem Grundriss, wie sie beispielsweise auf unserer Website unter „Umgebaute Wohnung“ zu finden ist.Das freundliche und typisch spanische Dorf Sucina mit seinen Bars, Restaurants und dem Kirchplatz ist nur wenige Autominuten entfernt.Der internationale Flughafen Murcia ist etwa 20 Autominuten entfernt, der Flughafen Alicante etwa 1 Stunde 15 Autominuten.Die historischen Städte Murcia und Cartagena sind beide etwa 40 Autominuten voneinander entfernt.Die Strände der Costa Calida an der Mittelmeerküste sind nur 20 Autominuten entfernt.Besuchen Sie die GALERIE auf unserer Website, um Fotos von Ausflugszielen in der Region und darüber hinaus anzusehen.