NIEUWBOUW VILLA'S IN VERA, ALMERIA
Nieuwbouw woonwijk van prachtige villa's gelegen aan de kust van .
Almería, Vera.
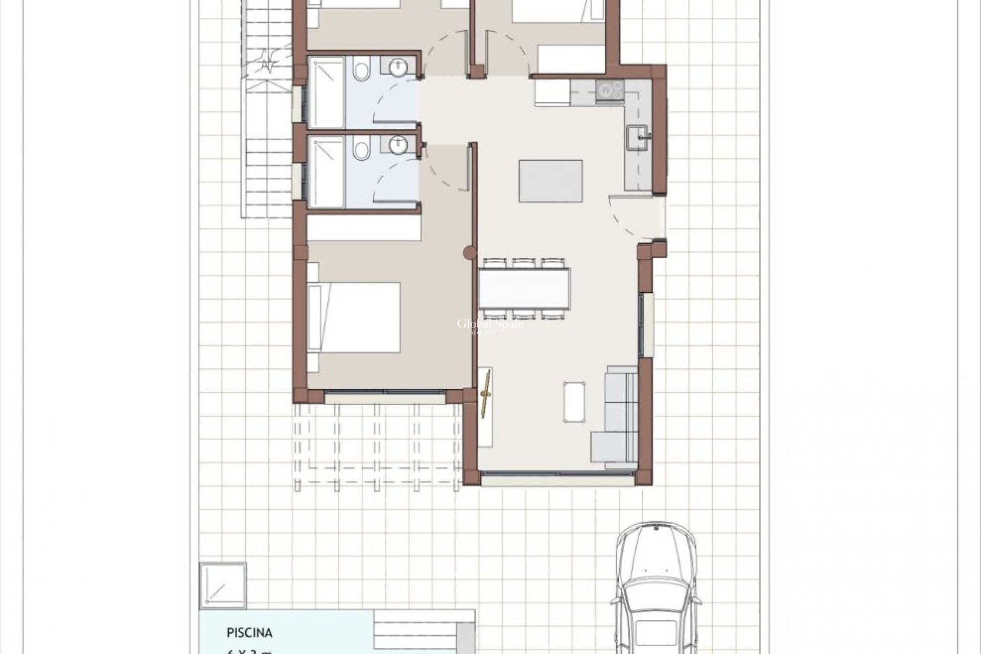
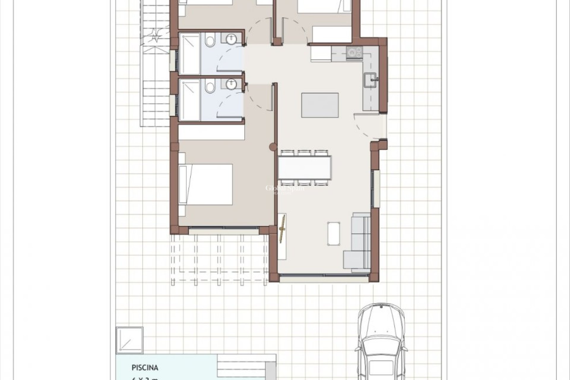
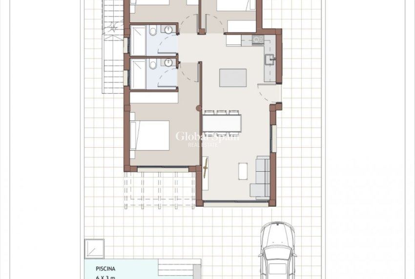
Nieuwbouw residentiële van onafhankelijke villa's om te kiezen tussen twee modellen: dubbele hoogte, met drie slaapkamers en drie badkamers en drie slaapkamers met twee badkamers, allemaal op één verdieping.
Beide met zwembad van 6x3 meter en op een perceel van ongeveer 230 meter.
Als optie kunnen alle villa's tegen een meerprijs onderbouwruimte hebben.
Villa's op slechts 200 meter van het strand van Vera.
Vera is een van de beste plaatsen voor naturisten in Europa, erkend voor de kwaliteit en zuiverheid van hun wateren.
Het biedt zes kilometer aan stranden (Las Marinas-Bolaga, Puerto Rey, El Playazo, Quitapellejos).
Vera grenst aan de bekende toeristische bestemmingen zoals Mojacar en de grotten van Almanzora.
Wooncomplex op ongeveer 1,5 uur rijden van de luchthaven Murcia - Corvera en ongeveer 2 uur van de luchthaven van Alicante.
425