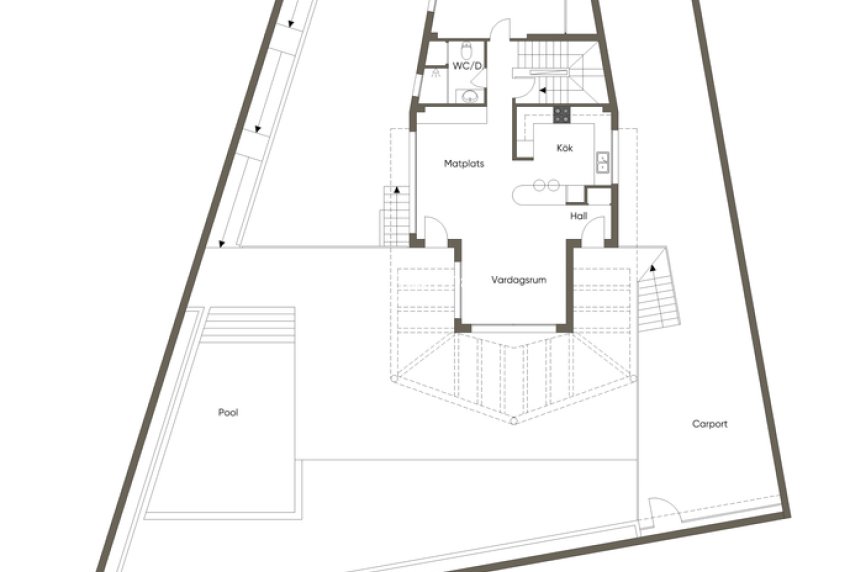
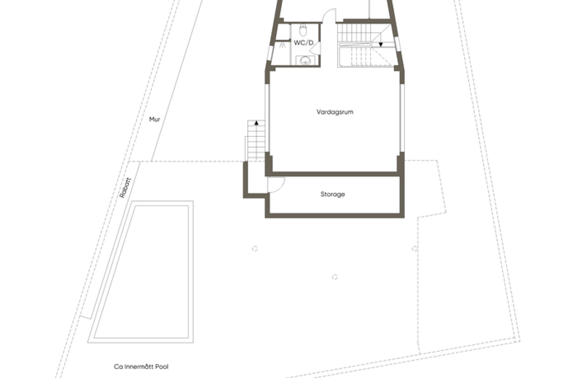
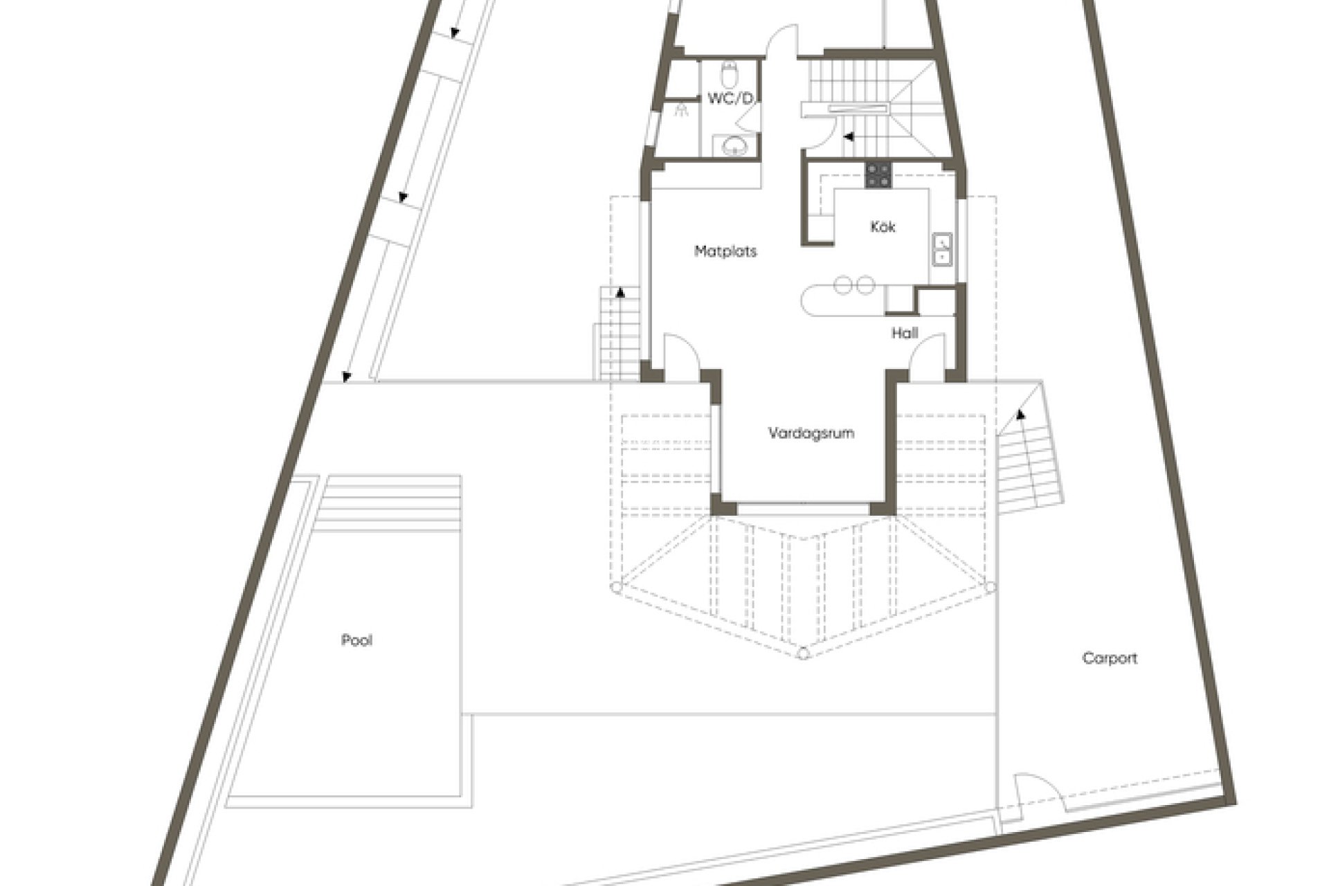
Welkom in deze elegante en goed doordachte villa in de populaire wijk Rosaleda - een verblijf dat allesbehalve gewoon is. Hier woont u op slechts 100 meter van de zee, met een fantastisch uitzicht op het water en dicht bij het strand, de zon en de zwemgelegenheid. De villa is gelegen in een aangename omgeving op loopafstand van gezellige restaurants, kleine winkels en openbaar vervoer. Voor sportliefhebbers zijn er diverse paddlebanen op korte rijafstand. Bij binnenkomst wordt u verwelkomd door een lichte en luchtige open woonkamer met ruimte voor zowel een zithoek als een eettafel. De moderne en smaakvol ingerichte keuken beschikt over royale werkbladen, veel opbergruimte en alle apparatuur die u zich maar kunt wensen. De ramen boven de gootsteen zorgen voor een aangename lichtinval en creëren een huiselijke sfeer. Vanuit de woonkamer heeft u toegang tot een ruim terras - perfect om te ontspannen of gezellig samen te zijn. De ramen boven de wastafel zorgen voor een aangename lichtinval en een huiselijke sfeer. Vanuit de woonkamer heeft u toegang tot een ruim terras – perfect om te ontspannen of gezellig samen te zijn. De villa beschikt over vier slaapkamers verdeeld over drie verdiepingen en drie volledig betegelde badkamers. Alle slaapkamers hebben inbouwkasten en voldoende opbergruimte. De twee slaapkamers op de bovenverdieping hebben ook toegang tot een privéterras met uitzicht op zee en de omgeving. In de kelder bevindt zich een grote woonkamer, ideaal als extra woonkamer of speelkamer. Het royale dakterras biedt een ongeëvenaard panoramisch uitzicht op zee en is voorzien van ligstoelen, een loungehoek en een jacuzzi – de perfecte plek om van de zonsondergang te genieten.
Tot de vele voorzieningen van het huis behoren een verwarmd zoutwaterzwembad, centrale airconditioning, vloerverwarming in het hele huis, een centraal stofzuigsysteem en een garage. Dit is een woning die stijl, comfort en een geweldige locatie combineert - perfect voor wie op zoek is naar iets bijzonders. Onroerendezaakbelasting (IBI): 726 euro/jaar