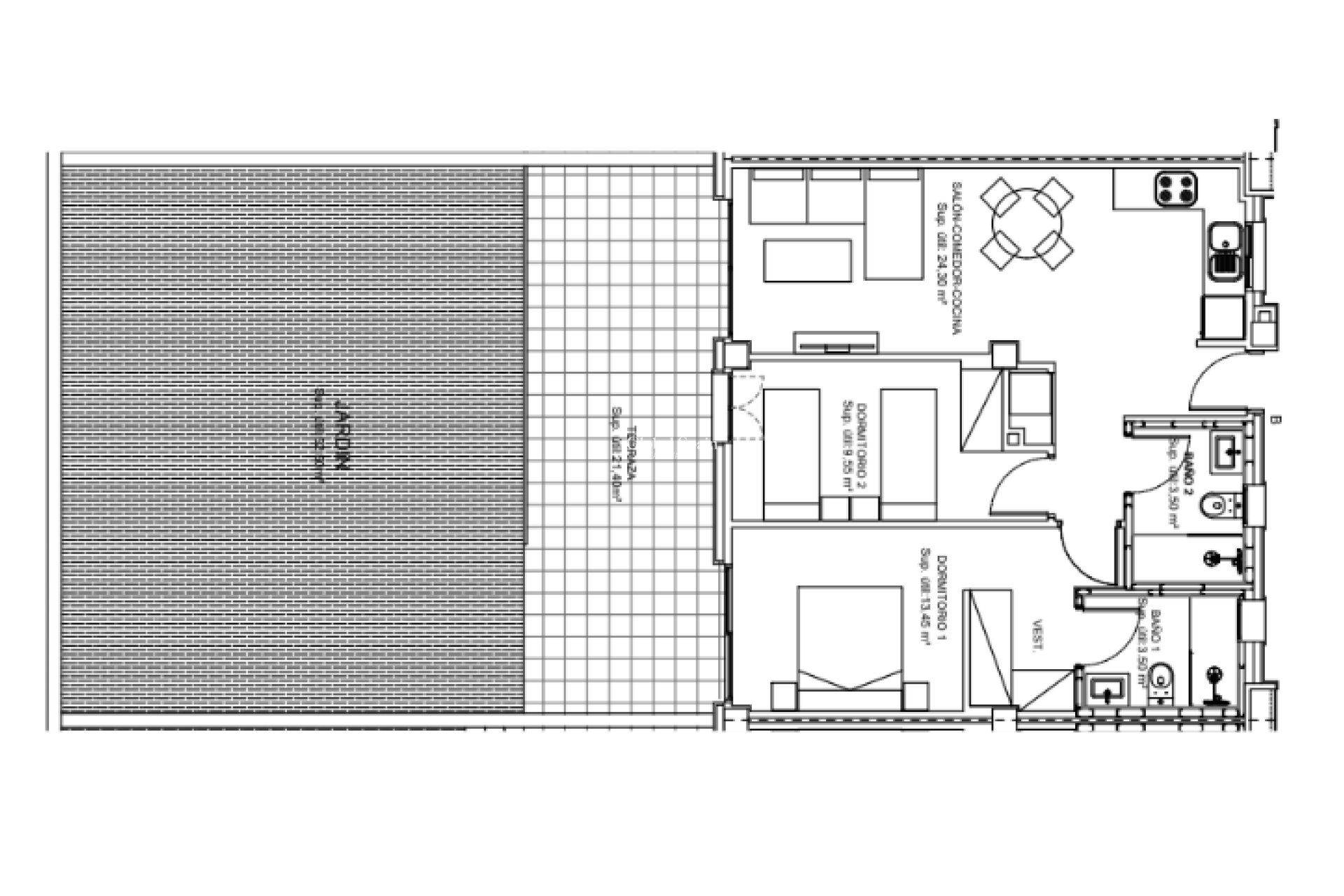
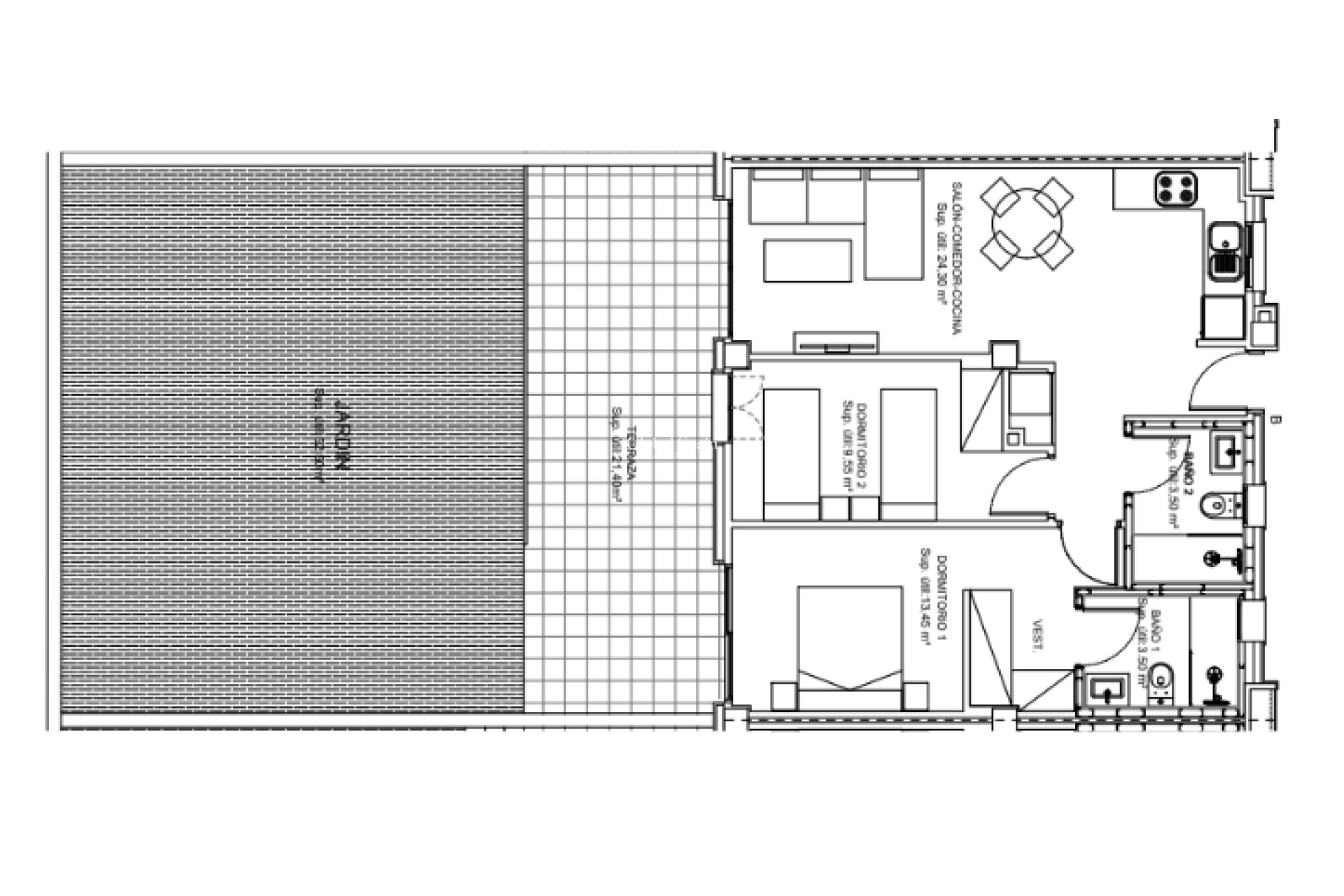
Dit project zal gelegen zijn op slechts 850 meter van het strand (La Cala de Finestrat), en zal bestaan uit 47 hoogwaardige nieuwbouwwoningen met 1, 2 of 3 slaapkamers, steeds met parkeerplaats en berging inclusief. Het project zal beschikken over uitzonderlijk rijke gemeenschappelijke zones met twee buitenzwembaden, (verwarmd zwembad), jacuzzi’s, sauna’s, een binnenfitness, een buitenfitness, petanquebaan, ontspanningsruimtes en grote groene zones.
Alle woningen zijn standaard uitgerust met Porcelanosa-afwerkingen, domotica, slimme zonwering met anemometer, volledig uitgeruste keuken, vloerverwarming, WiFi high-coverage systeem, ventilatoren in alle slaapkamers, digitale thermostaten en een gepantserde toegangsdeur.
Daarnaast beschikt het gebouw over fotovoltaïsche zonnepanelen voor de gemeenschappelijke zones en een anti-blackout systeem dat tot 4 dagen autonomie garandeert, wat het project tot een van de meest technologische en energie-efficiënte in de regio maakt.
Elektrische zonwering met anemometer (automatische slimme zonwering die reageert op wind en zon)
Basispakket domotica (bediening van verlichting, temperatuur en zonwering)
Plafondventilatoren in de slaapkamers
Gepantserde inkomdeur
Inbouwtoestellen van BOSCH of SIEMENS (inductiekookplaat, oven, dampkap, vaatwasser, koelkast en combinatie wasmachine/droogkast)
Ingebouwde kasten met binnenverlichting
Digitale thermostaat in de kamers
WiFi-systeem met volledige dekking doorheen de hele woning
Vloerverwarming in de hele woning (behalve in de modulaire badkamers)
Handdoekradiator in de badkamers
Airconditioning via kanalen (warm en koud)
Het project ligt in een geliefde zone van Benidorm, op korte afstand van alle voorzieningen:
850m van het strand (1,1km te voet of met de wagen).
1,2 km van gezellige bars & restaurants.
Binnen een straal van 1,2 km zijn er 3 grote supermarkten terug te vinden.
40 minuten rijden naar de luchthaven van Alicante.
Een ideale locatie voor wie rust, comfort en bereikbaarheid wil combineren — perfect voor permanente bewoning, vakantie of investering.
Als u meer informatie wenst over deze appartementen, de regio, of wat er allemaal komt kijken bij het kopen van een woning in Spanje, aarzel dan niet om contact met ons op te nemen – wij helpen u graag verder.
🌐 GLOBAL SPAIN REAL ESTATE (Costa Blanca, Costa Cálida, Costa del Sol, Balearen)
📧 info@global-spain.com // 📞 +34 865 75 27 65 (NL, EN, DE, FR, ES)
Het Global Spain-team wenst u alvast een aangename zoektocht naar uw droomwoning in Spanje!