Ontdek dit exclusieve nieuwbouwproject op slechts enkele minuten wandelen van het strand van Playa del Torres in Villajoyosa.
Een stijlvolle woonomgeving die design, comfort en mediterrane rust combineert in een van de meest charmante kuststeden van de Costa Blanca Noord.
Het project bestaat uit 164 moderne appartementen en penthouses met 1, 2 of 3 slaapkamers, verdeeld over verschillende woonblokken met ruime terrassen en een prachtig uitzicht op zee of de omliggende natuur.
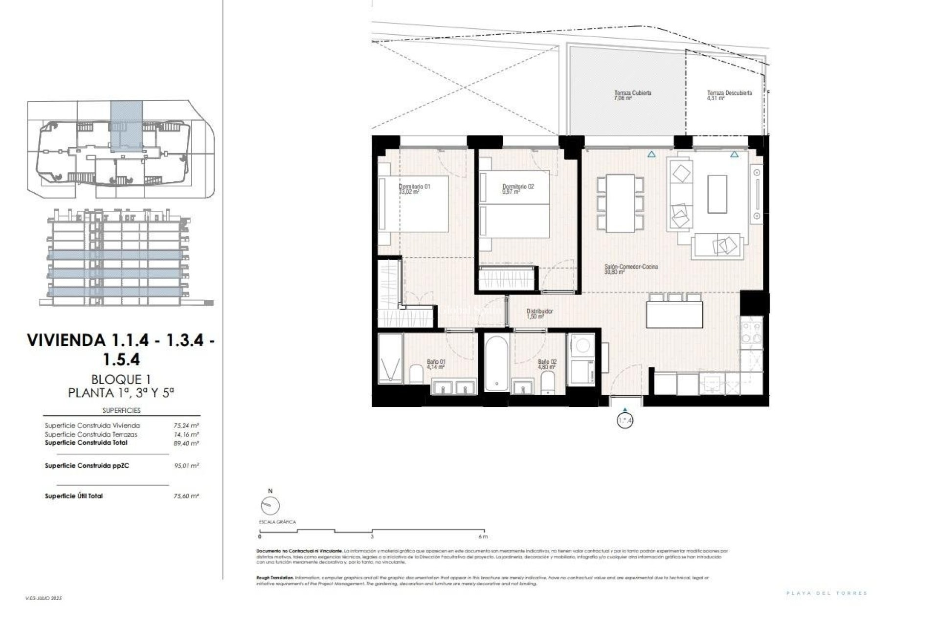
De appartementen beschreven onder deze referentie (GS2104) betreffen de 3-slaapkamerappartementen, ideaal voor wie op zoek is naar een compacte maar luxueuze tweede verblijfplaats of een investering vlak bij de Middellandse Zee.
Binnen dit project zijn er echter ook andere woningtypes beschikbaar.
Op onze website (www.Global-Spain.com) vindt u meer informatie over de overige referenties:
GS2102: appartementen met 1 slaapkamer en 1 badkamer.
GS2103: appartementen met 2 slaapkamers en 2 badkamers.
Zo kunt u eenvoudig het woningtype kiezen dat het best aansluit bij uw wensen en levensstijl.
Volledig uitgeruste keuken met boven- en onderkasten zonder handgrepen, werkblad en spatwand in Silestone of vergelijkbaar, spoelbak in roestvrij staal en ingebouwde toestellen van Bosch, Siemens of vergelijkbaar (inductiekookplaat, oven, microgolf, koelkast, vaatwasser en was-droogcombinatie).
Volledig afgewerkte badkamers met inloopdouche, veiligheidsbeglazing, meubel met spiegel en verlichting, en elektrische vloerverwarming.
PVC-ramen met dubbele beglazing en handmatige rolluiken in de slaapkamers.
Airconditioning (warm/koud) via kanalen met individuele temperatuurregeling per ruimte (Airzone).
Aerothermisch systeem voor warm water – energiezuinig en duurzaam.
Ruim terras met antislip keramische vloer, stopcontact en buitenkraan.
Elke woning beschikt over een parkeerplaats inbegrepen in de prijs, met pre-installatie voor het opladen van elektrische voertuigen.
Dit project biedt een uitgebreid scala aan faciliteiten die het gevoel van permanent vakantieverblijf versterken:
🏊♂️ Zwembaden en ontspanning
Groot buitenzwembad in lagunestijl met strandtoegang
Verwarmd binnenzwembad
Kinderzwembad en verwarmde jacuzzi
Rooftop met infinity pool, chill-out zone en barbecue
💪 Sport & gezondheid
Volledig uitgeruste fitnessruimte (binnen & buiten)
Calisthenicscircuit
Putting green en minigolf
🌿 Leef- en werkcomfort
Co-workingruimte en Gourmet & Social Room
Smart lockers (pakketboxen)
Fietsenstalling en surfboard-opslag
Uitgestrekte aangelegde tuinen met wandelpaden
Een residentie die het evenwicht biedt tussen ontspanning, natuur en modern wooncomfort.
Dit project ligt in Villajoyosa, een charmant kuststadje dat bekendstaat om zijn kleurrijke huisjes, authentieke sfeer en fijne zandstranden.
Slechts 300 meter van Playa del Torres
5 minuten rijden van het centrum van Villajoyosa
10 minuten rijden naar Benidorm en Altea
Dicht bij golfbanen, supermarkten, restaurants en scholen
Uitstekende verbinding via de N-332 en de AP-7 naar de luchthavens van Alicante (49 min) en Valencia (1u15)
Als u meer informatie wenst over deze appartementen, de regio of wat er allemaal komt kijken bij het kopen van een woning in Spanje, aarzel dan niet om contact met ons op te nemen – wij helpen u graag verder.
🌐 Global Spain Real Estate (Costa Blanca, Costa Cálida, Costa del Sol, Balearen)
📧 info@global-spain.com // 📞 +34 865 75 27 65 (NL, EN, DE, FR, ES)
Het Global Spain-team wenst u alvast een aangename zoektocht bij het vinden van uw droomwoning in Spanje!