Ontdek uw droomperceel – eindeloze mogelijkheden wachten op u!
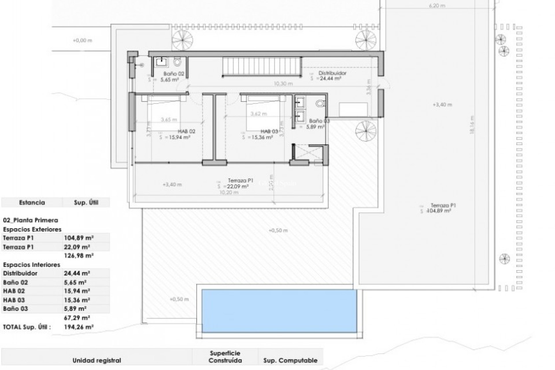
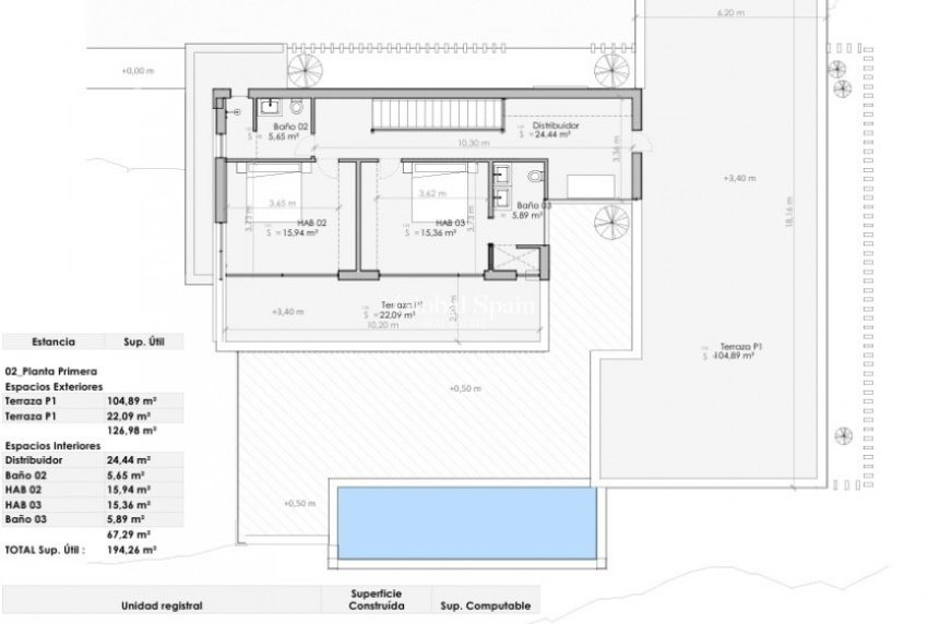
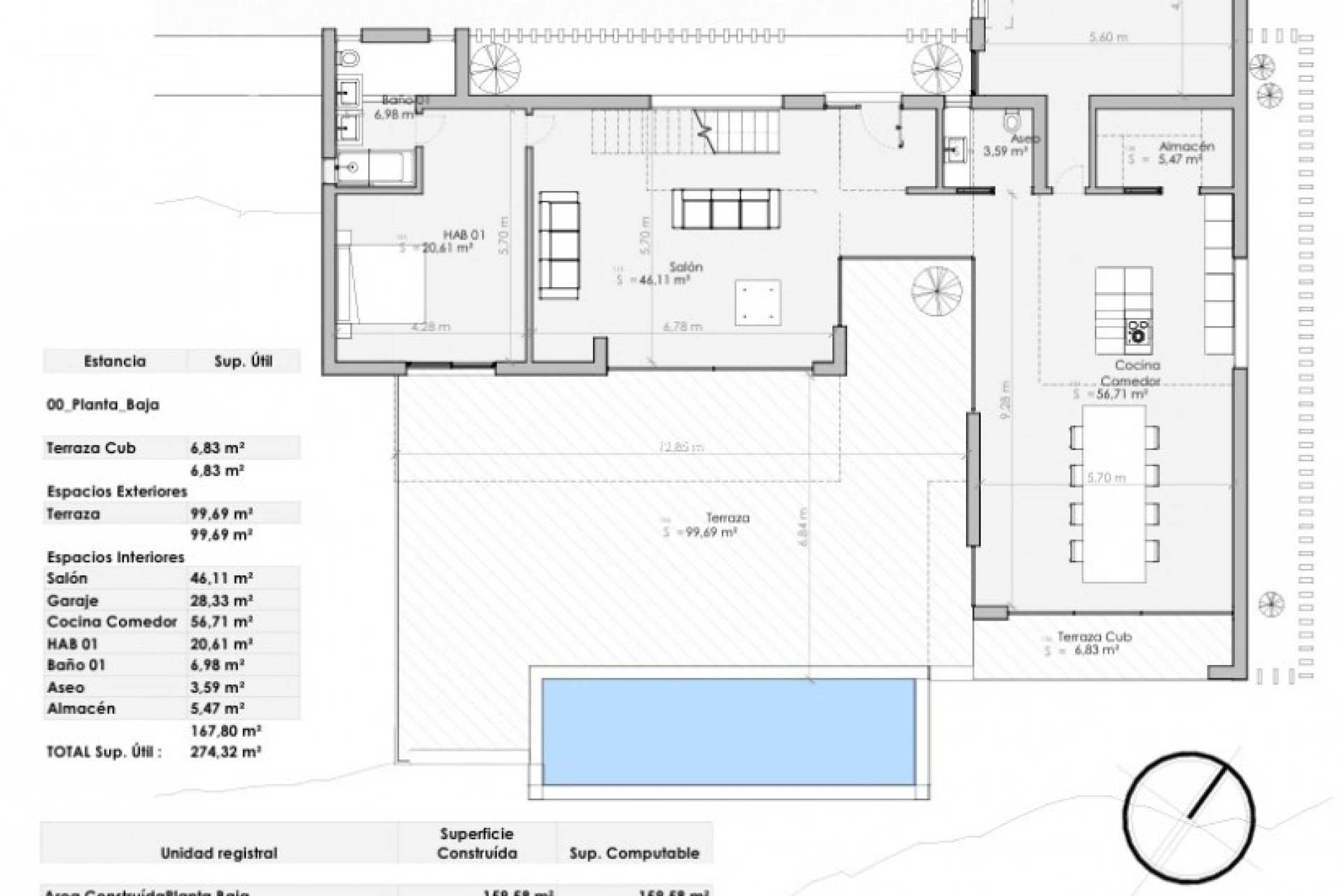
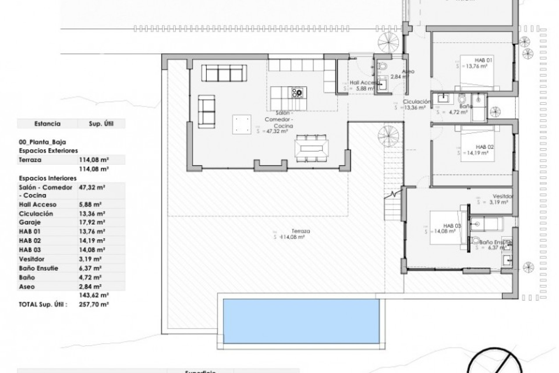
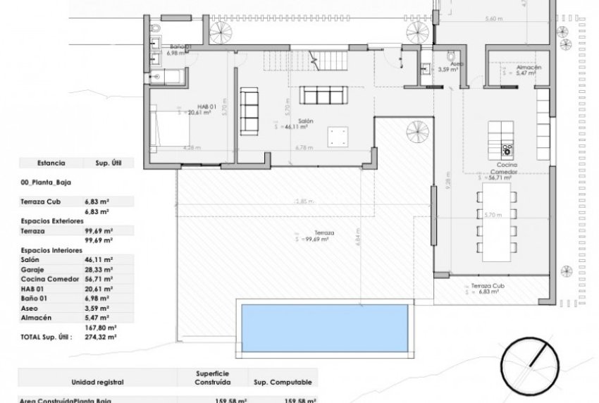
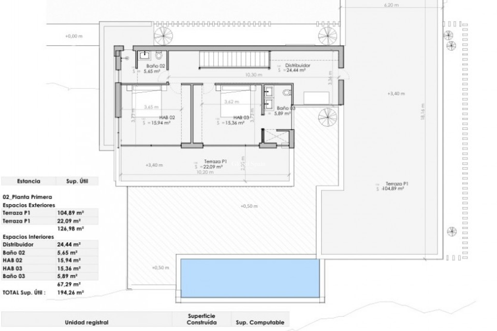
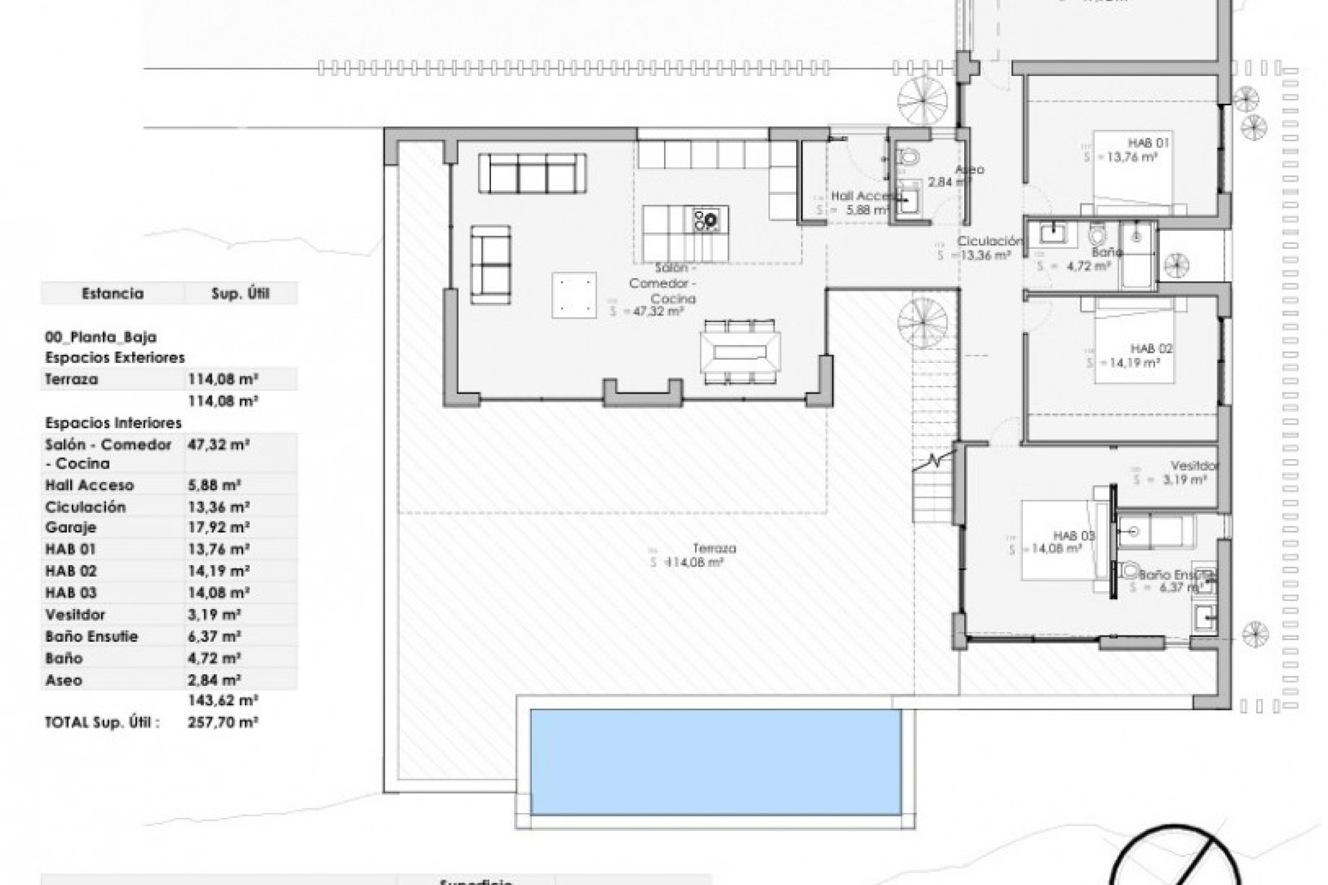
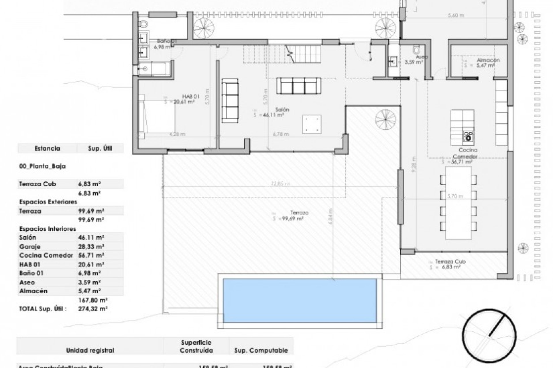
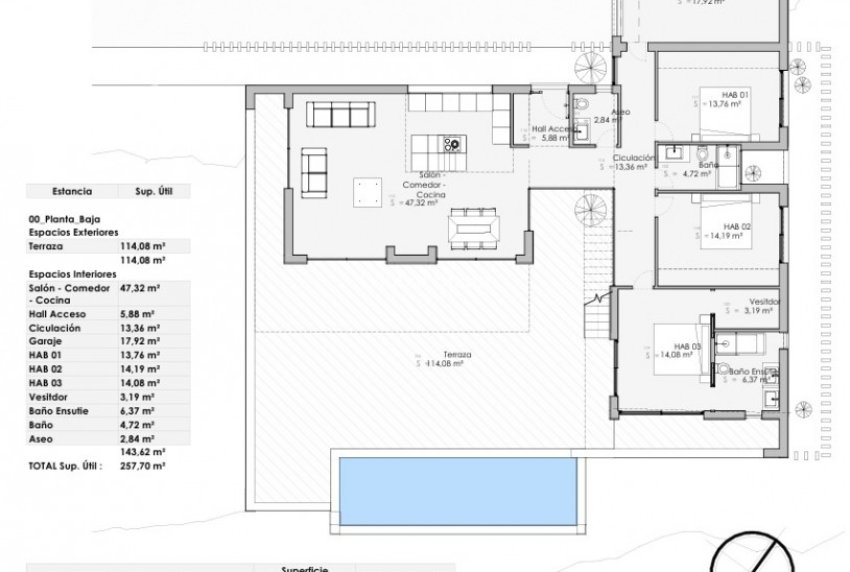
Gelegen in een idyllische omgeving, biedt dit uitgestrekte perceel van 16.000 m² het perfecte canvas om uw droomhuis tot leven te brengen. Met een uitzonderlijke bouwtoeslag van 2% kunt u een verbluffende villa van ongeveer 325 m² ontwerpen en bouwen - een ware oase van luxe, ruimte en rust.
Of u nu een modern architectonisch meesterwerk, een klassieke villa of een landelijk toevluchtsoord voor ogen heeft, dit perceel spreekt uw verbeelding aan. Kies uit twee vooraf ontworpen bouwopties die zijn afgestemd op het maximaliseren van het potentieel van deze buitengewone locatie, of koop het perceel solo en laat uw creativiteit de vrije loop met een op maat gemaakt project.
Waarom dit perceel perfect voor u is:
Grootte en privacy : 16.000 m² biedt voldoende ruimte voor weelderige beplanting, recreatiegebieden in de buitenlucht en volledige privacy.
Flexibiliteit : Kies voor een turnkey bouwproject of begin vanaf nul met uw eigen visie.
Prime Investment : Een unieke kans op een gewilde locatie, die zowel rust als waardegroei biedt.
Dit is meer dan een perceel; het is een uitnodiging om een levensstijl te creëren die perfect aansluit bij uw aspiraties. Mis de kans niet om uw droomvilla te bouwen of een waardevol stuk land op een toplocatie te bemachtigen.
Neem vandaag nog contact met ons op voor meer informatie of om een bezichtiging te regelen. Uw droomhuis begint hier!