COMPLEXE RÉSIDENTIEL DE NOUVELLE CONSTRUCTION À VERA
Nouvelle construction résidentielle d'appartements à Vera à seulement 400m de la grande plage de Vera nommée "El Playazo".
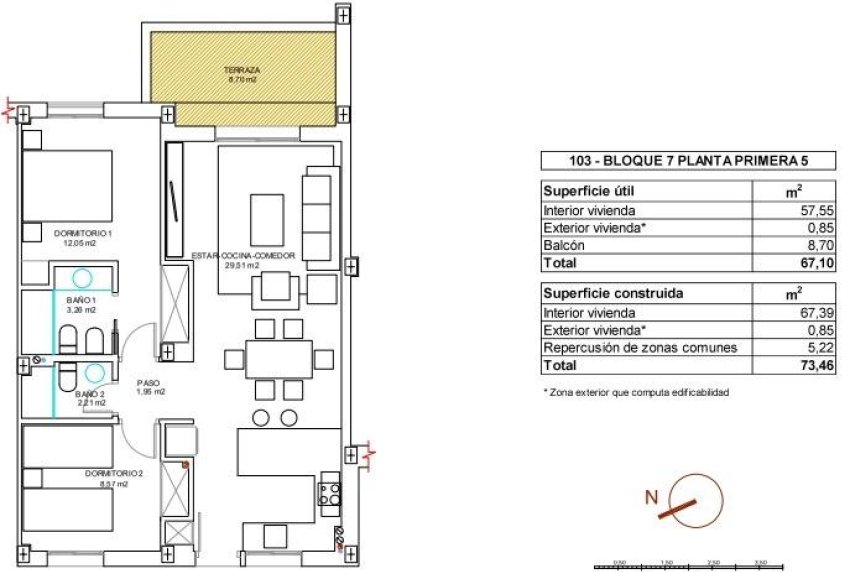
Les typologies sont rez-de-chaussée avec deux jardins privés, un dans chaque orientation, ce qui vous permet de profiter du soleil ou de l'ombre quand vous le souhaitez selon l'heure de la journée ou la saison de l'année. Les premiers étages disposent de terrasses et les penthouses de grands solariums.
Tous les appartements ont des plafonds très hauts (2,95 m) qui donnent une grande sensation d'espace.
La cuisine, entièrement meublée et équipée, est intégrée à l'espace salon-salle à manger avec un coin bar.
Les portes et les armoires sont laquées en blanc et le sol est en bois stratifié.
La climatisation chaud-froid et l'eau chaude sont générées par un dispositif aérothermique DAIKIN de dernière génération, une technologie qui permet d'économiser jusqu'à 70% de la consommation d'électricité par rapport aux systèmes traditionnels.
Toutes les salles de bains sont équipées d'une douche au lieu d'une baignoire, de miroirs encastrés et également d'un comptoir en pierre et d'une cloison en verre dans la salle de bains principale.
Les stores du salon et de la chambre principale sont électriques, hermétiques et à lames orientables.
Les jardins et le solarium sont livrés avec des sols finis combinant du gazon artificiel et un beau dallage imitant le bois.
Chaque maison comprend un espace de stationnement extérieur privé.
Chaque bloc de la promotion dispose d'un ascenseur indépendant.
Tant les bâtiments que les appartements présentent une série de caractéristiques d'architecture bioclimatique (orientation, isolation, fenêtres et volets, pergolas) qui permettent une régulation naturelle optimale de la ventilation, de la température et de la lumière au cours des différentes saisons de l'année.
Les espaces communs sont constitués de places piétonnes et d'espaces verts, avec une grande piscine pour adultes et une autre pour enfants sur la place centrale.
Toute l'urbanisation est exempte de barrières architecturales pour les personnes handicapées. Ici, la tranquillité et la détente sont garanties.
Vera est l'un des meilleurs endroits naturistes d'Europe, reconnu pour la qualité et la pureté de ses eaux.
Elle offre six kilomètres de plages (Las Marinas-Bolaga, Puerto Rey, El Playazo, Quitapellejos).
Vera est limitrophe des célèbres destinations touristiques telles que Mojacar et les grottes d'Almanzora.
Complexe résidentiel situé à environ 1,5 heure de route de l'aéroport de Murcia - Corvera et à environ 2 heures de l'aéroport d'Alicante.
425