Villa neuve de luxe avec vue panoramique sur la mer à Raco de Galeno, Benissa Costa
Emplacement exclusif sur la Costa Blanca
Située dans le prestigieux lotissement Raco de Galeno à Benissa Costa, cette villa de luxe offre une combinaison parfaite entre design moderne et charme méditerranéen. La propriété se trouve à seulement 2 km des plages les plus proches et à 5 km de l'autoroute AP-7, offrant un accès rapide à Moraira, Calpe et d'autres destinations renommées de la Costa Blanca. L'aéroport international d'Alicante est à environ 80 km, tandis que des terrains de golf prestigieux tels que le Club de Golf Ifach et Altea Golf sont situés entre 10 et 15 km.
Architecture moderne et intérieurs spacieux
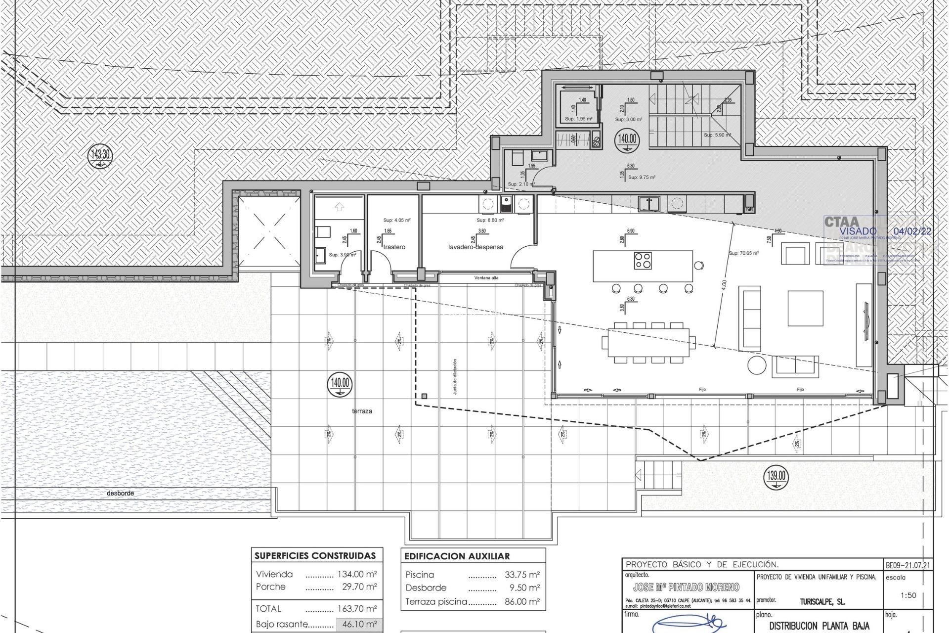
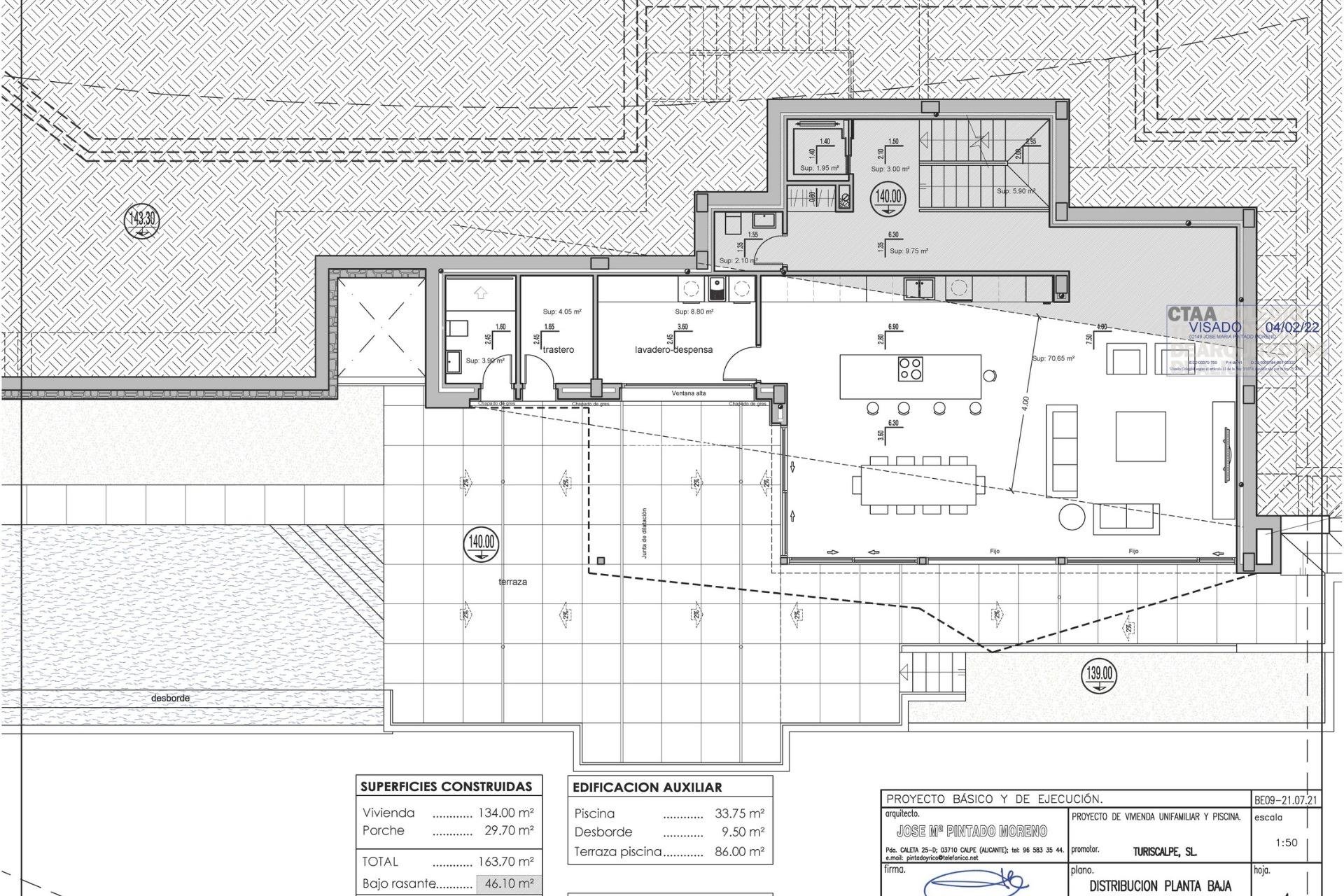
Conçue pour maximiser la lumière naturelle et les vues spectaculaires sur la mer, la villa présente une architecture contemporaine avec de grandes baies vitrées et une intégration harmonieuse entre l'intérieur et l'extérieur. Répartie sur plusieurs niveaux et reliée par un ascenseur privé, la maison offre quatre chambres spacieuses, chacune avec une salle de bains attenante, ainsi que des toilettes supplémentaires pour les invités. La suite principale bénéficie d'un accès direct à une terrasse privée avec une vue imprenable sur la Méditerranée.
Des espaces de vie et de réception exceptionnels
Le salon et la salle à manger ouverts sont complétés par une cuisine design entièrement équipée avec des appareils électroménagers haut de gamme, idéale pour la vie quotidienne et pour recevoir. De vastes terrasses entourent la propriété, créant de multiples espaces de détente et de divertissement en plein air.
Un style de vie luxueux en plein air
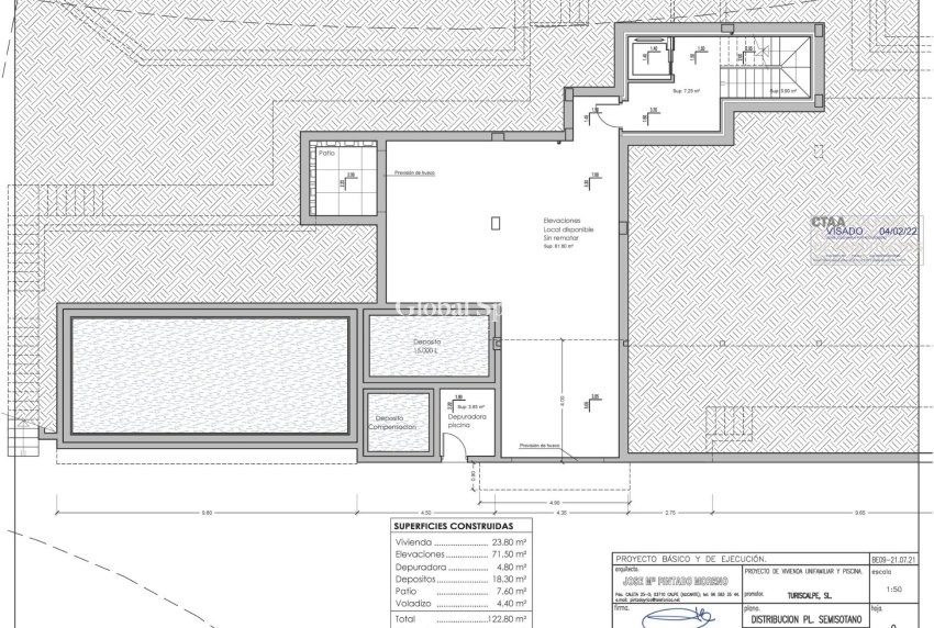
Le point fort de cette villa est sa piscine à débordement, offrant une vue panoramique sur le littoral. Une grande terrasse au bord de la piscine est l'endroit idéal pour prendre le soleil, dîner en plein air ou profiter de couchers de soleil inoubliables en famille ou entre amis.
Équipements haut de gamme et confort
Cette villa neuve est équipée d'une technologie domotique avancée, du chauffage au sol et de la climatisation centralisée, garantissant un confort optimal tout au long de l'année. La propriété dispose également d'un sous-sol offrant un espace supplémentaire pouvant être utilisé à votre guise.
Idéale comme résidence principale ou secondaire
Avec un permis de construire et une date d'achèvement prévue dans les 18 mois suivant la réservation, cette villa représente une occasion unique d'acquérir un chef-d'œuvre contemporain dans l'un des endroits les plus prisés de la Costa Blanca. Sa proximité avec les plages de sable, les charmantes villes côtières, les marinas, les zones commerciales et les activités de plein air renforce son attrait tant comme résidence principale que comme maison de vacances haut de gamme.
Assurez-vous la villa de vos rêves à Raco de Galeno, Benissa Costa, et profitez du style de vie méditerranéen ultime avec une vue imprenable sur la mer et un confort inégalé.
425