VILLA NEUVE A BENISSA
Villa de construction neuve conçue pour dialoguer avec son environnement et s'y intégrer.
Sa structure, basée sur des plateformes en béton et des pergolas en bois, glisse le long de la pente naturelle du terrain, créant les espaces de vie intérieurs.
L'accès à la maison se fait par une cassette qui offre une vue panoramique sur les environs. En descendant au premier niveau, on trouve la chambre principale avec son propre dressing, sa salle de bains et sa terrasse. Une plateforme pour une chambre en suite avec toute l'intimité possible.
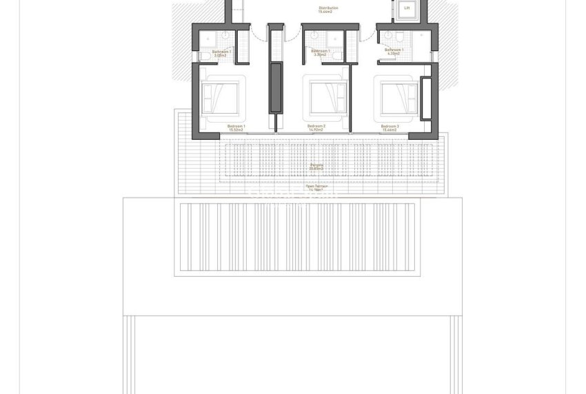
En descendant encore, nous trouvons une autre plateforme avec le reste des pièces de la maison. Au total, trois chambres spacieuses avec salle de bains attenante et terrasse occupent cet espace.
Le troisième niveau est occupé par la zone de jour. Deux espaces séparés, le salon-salle à manger et la cuisine, peuvent être réunis en ouvrant la porte coulissante qui les sépare. Un seul espace ouvert qui communique directement avec l'extérieur grâce à quatre panneaux coulissants. Un espace extérieur-intérieur fluide qui permet de profiter de la maison avec la brise et les vues sur l'extérieur.
Enfin, au sous-sol, on trouve un grand espace de loisirs, une salle de jeux, une salle de télévision et un bar, ainsi qu'une salle de gymnastique. Les deux pièces sont inondées par la lumière qui entre par les ouvertures de la piscine et par laquelle la lumière entre, filtrée par la luminosité de l'eau.
Une maison aux finitions exceptionnelles qui lui donnent de la chaleur et qui, en même temps, dialoguent avec la piscine.
CONTRÔLE TECHNIQUE ET ASSURANCE DÉCENNALE
-Assurance responsabilité civile décennale pour les dommages structurels.
-Contrôle de la qualité de la construction par un laboratoire d'essai certifié.
-Contrôle énergétique effectué par une société accréditée.
-Contrôle de l'inspection technique (OCT) par une société accréditée.
-Installation d'un système d'interphone vidéo en circuit fermé avec vue d'accès panoramique.
EXTERIEUR
-Piscine à débordement.
-Mur d'enceinte extérieur en maçonnerie et clôture métallique.
-Balustrades en verre encastrées sur les terrasses.
-Eclairage LED encastré sur tout le périmètre de la maison.
-Porte d'accès au garage principal motorisée de marque HORMANN ou équivalent.
-Jardin paysager avec arbres et système d'irrigation.
-Rampe d'accès et parking pavés.
PLOMBERIE ET ÉLECTRICITÉ
-Système domotique contrôlant les stores, l'éclairage de la piscine, l'éclairage extérieur et l'interphone vidéo.
-Installation électrique JUNG.
-Chauffage par le sol et climatisation avec thermostats indépendants dans chaque pièce, système AIRZONE.
-Sanitaires, meubles, éviers et robinetterie en porcelaine blanche de ROCA, HANSGROHE et GEBERIT.
-Pompe à chaleur air/eau à haut rendement avec bouches d'aération linéaires à cadre fin.
Connexions téléphoniques et télévisuelles dans toutes les chambres, le salon, la cuisine et le sous-sol.
-Interphone vidéo et système d'alarme avec détecteurs.
CUISINE modèle proposé dans le projet :
-Meubles de cuisine avec finition en chêne français.
-Nouveau système de quincaillerie Darwin. Ferrures de tiroirs et d'armoires selon le modèle de l'architecte.
-Plan de travail en grès cérame LIVING CERAMICS.
Appareils électroménagers haut de gamme MIELE ou équivalent, entièrement intégrés, comprenant four, micro-ondes, cafetière, lave-vaisselle, réfrigérateur, congélateur et plaque de cuisson à induction avec hotte aspirante intégrée évacuant l'air vers l'extérieur.
Benissa est une ville pittoresque située dans la province d'Alicante, connue pour sa riche histoire, ses paysages montagneux et son littoral accidenté.
La vieille ville de Benissa est particulièrement charmante, avec ses rues pavées étroites, ses maisons blanches aux détails médiévaux et ses monuments historiques tels que l'église de la Purísima Xiqueta et la salle des contrats (Lonja de Contratación). L'architecture reflète son passé mauresque et médiéval, offrant aux visiteurs un voyage dans le temps.
Outre son patrimoine culturel, Benissa possède un magnifique littoral d'environ 4 kilomètres, connu pour ses criques et ses plages aux eaux cristallines, comme Cala Advocat et Cala Fustera. Ces zones sont idéales pour la plongée, le snorkeling et d'autres activités nautiques.
La ville est également réputée pour ses sentiers de randonnée et ses pistes cyclables qui traversent le littoral et l'intérieur des terres, permettant aux visiteurs de profiter de vues panoramiques sur la Méditerranée et les paysages ruraux. La cuisine de Benissa est un autre point fort, avec des plats traditionnels tels que l'arroz a banda, le poulpe séché et les saucisses locales.
425