Villa neuve de style Ibiza avec équipements de luxe à Javea
Design méditerranéen exclusif près de la plage d'El Arenal
Cette superbe villa neuve de style Ibiza à Javea est située à seulement 3 km de la célèbre plage d'El Arenal, l'une des zones les plus animées et attrayantes de la Costa Blanca Nord. Située dans un quartier résidentiel calme et bien desservi, la propriété offre une combinaison exceptionnelle d'élégance, de confort et d'architecture méditerranéenne moderne. Javea est connue pour ses eaux cristallines, ses criques pittoresques, ses parcs naturels, ses marinas et ses excellents restaurants, ce qui en fait une destination très prisée tant pour y vivre que pour y investir.
Aménagement intérieur élégant sur deux niveaux
La villa a été soigneusement conçue pour offrir un maximum de confort et d'élégance. Au rez-de-chaussée, un salon et une salle à manger spacieux communiquent avec une cuisine entièrement équipée, créant ainsi un espace ouvert lumineux et accueillant. Ce niveau comprend également un ascenseur pour plus de commodité, des toilettes pour invités et un couloir central qui relie toutes les pièces.
Il y a deux chambres doubles avec salle de bains attenante, ainsi qu'une impressionnante chambre principale qui dispose d'un grand agencement, d'une salle de bains attenante et d'un dressing intégré.
Un espace extérieur conçu pour le style de vie méditerranéen
Les espaces extérieurs ont été créés pour profiter du climat chaud de Javea tout au long de l'année. La propriété comprend deux élégantes pergolas, l'une à l'entrée et l'autre s'étendant du salon et de la cuisine vers la terrasse ouverte qui entoure la piscine privée de 38 m².
À côté de la cuisine, une terrasse supplémentaire avec un espace barbecue offre un cadre idéal pour les repas en plein air et les réunions entre amis.
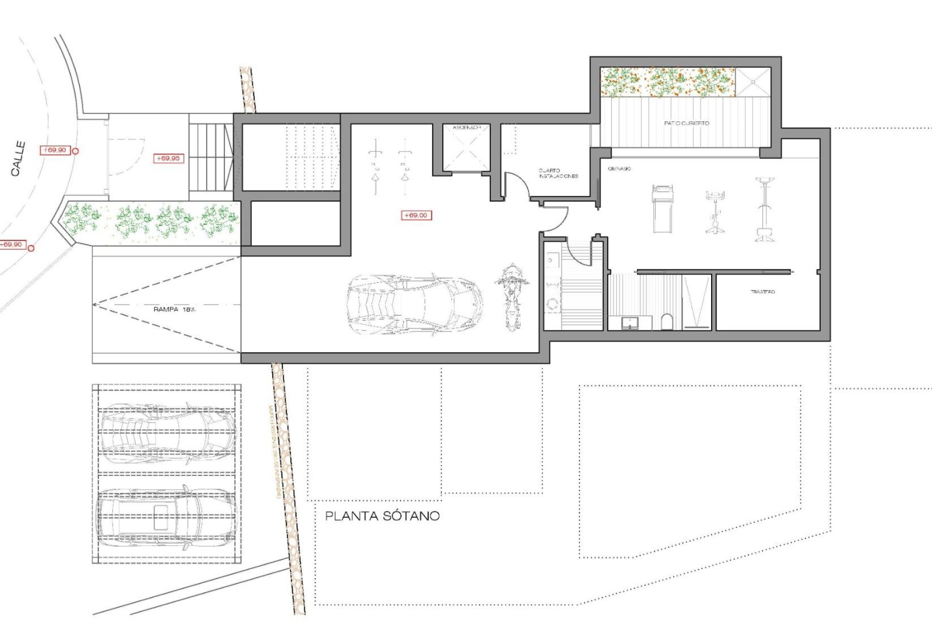
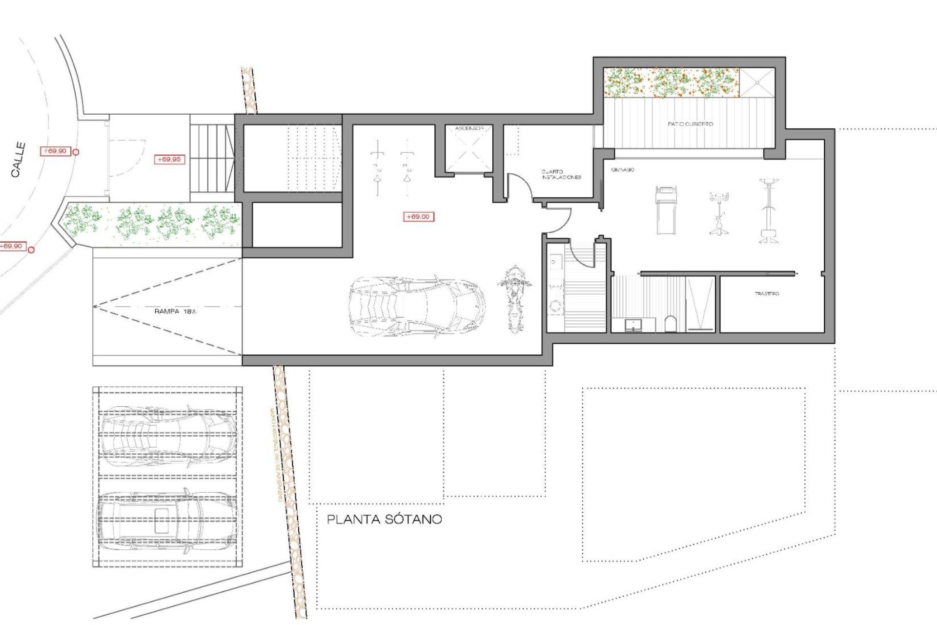
Sous-sol haut de gamme avec des équipements exceptionnels
Le sous-sol allie fonctionnalité et luxe, avec un garage ouvert, un ascenseur, une buanderie, une salle de sport, un patio couvert, une salle de bains et un espace de rangement spacieux. Cet étage a été conçu pour s'adapter aux besoins de la vie moderne tout en offrant un maximum de confort.
Emplacement privilégié à Javea
Javea offre un mélange unique de beauté naturelle, de loisirs et de services de haute qualité.
Distances clés depuis la villa :
Plage d'El Arenal 3 km
Port et marina de Javea 7 km
Club de golf de Javea 3 km
Aéroport d'Alicante 100 km
Aéroport de Valence 125 km
Votre maison méditerranéenne vous attend
Que vous recherchiez une résidence permanente, une maison de vacances de luxe ou une opportunité d'investissement haut de gamme, cette villa offre une qualité exceptionnelle et un emplacement imbattable. Contactez-nous dès aujourd'hui pour organiser une visite et découvrir votre nouvelle maison à Javea.
425