Maisons de ville neuves avec vue sur la mer près du golf Miraflores à Calahonda
Résidence boutique dans un emplacement privilégié à Calahonda
Ce projet immobilier exclusif comprend une collection boutique de seulement 13 maisons de ville de deux et trois chambres et des maisons de ville d'angle situées sur un terrain surélevé près du golf Miraflores à Calahonda. Le quartier est connu pour son atmosphère résidentielle paisible tout en offrant un excellent accès aux plages, aux terrains de golf et aux services quotidiens. Calahonda se trouve entre Marbella et Fuengirola, ce qui en fait l'un des endroits les plus pratiques et les plus établis de la Costa del Sol.
Maisons avec vue sur la mer, intimité et orientation
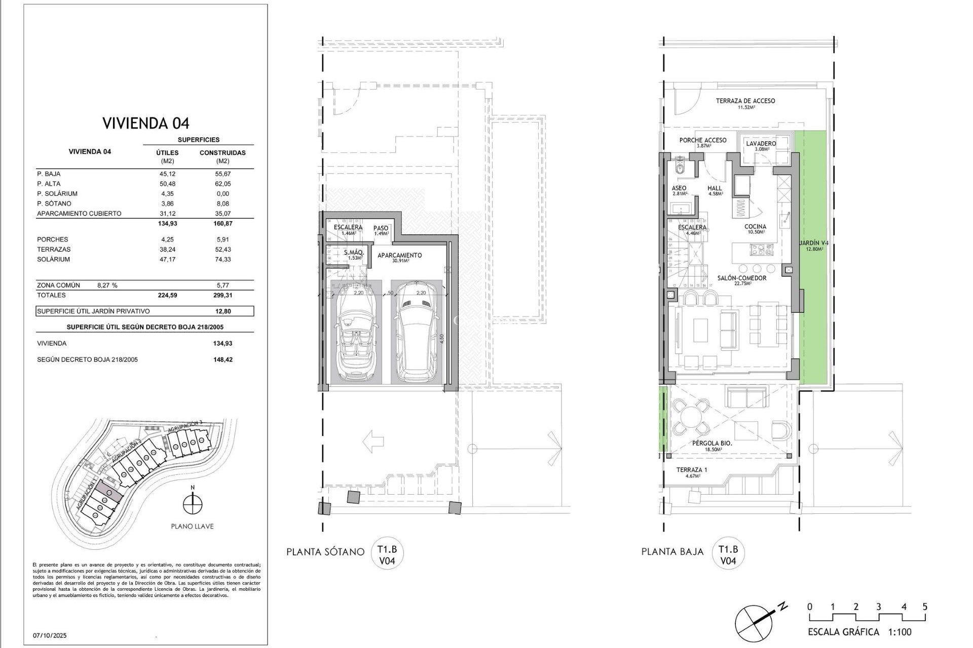
Chaque maison bénéficie d'une vue imprenable sur la mer depuis tous les niveaux grâce à sa position surélevée et à son orientation soignée. Les solariums sur le toit offrent une vue panoramique impressionnante sur la côte méditerranéenne, créant ainsi un refuge extérieur privé pour chaque propriétaire. L'orientation et l'écran architectural assurent un équilibre parfait entre intimité et vue imprenable.
Terrasses spacieuses et espace de vie ouvert
Les maisons de ville sont conçues pour prolonger les espaces de vie à l'extérieur avec de généreuses terrasses idéales pour dîner, se détendre ou profiter de la brise marine. Les intérieurs ouverts relient la cuisine, la salle à manger et le salon avec un accès direct aux terrasses, créant des espaces lumineux et aérés avec une vue imprenable sur la mer. Certaines maisons comprennent également des jardins privés au rez-de-chaussée.
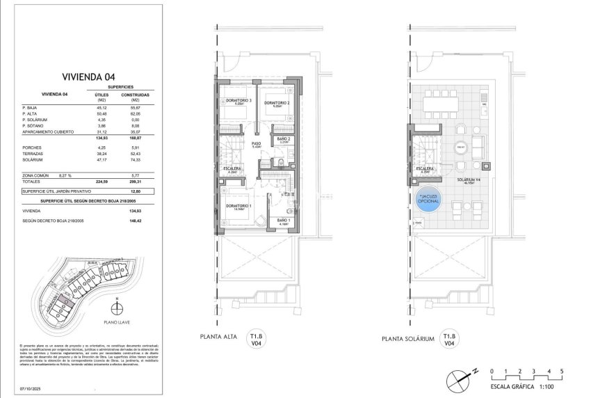
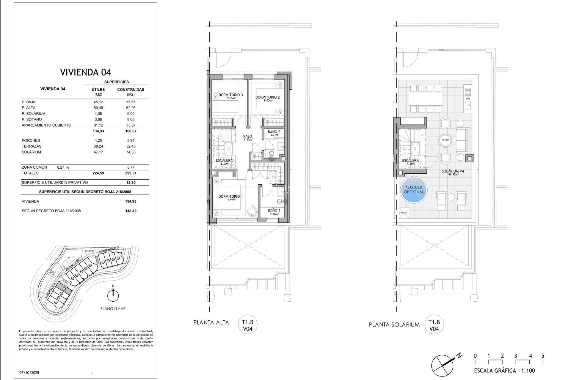
Des agencements flexibles pour une vie moderne
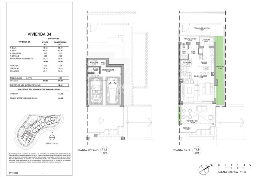
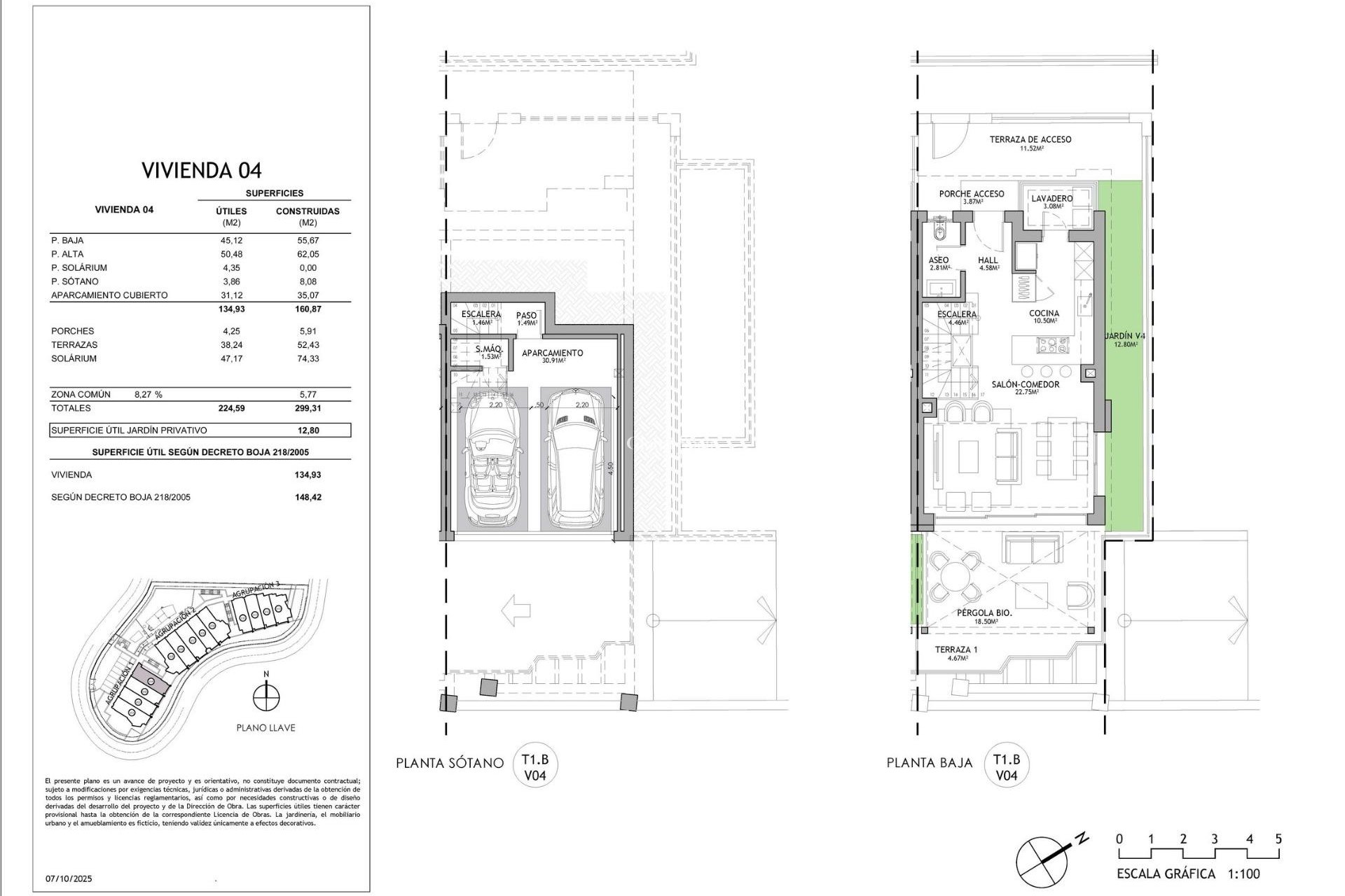
Les maisons sont réparties sur deux étages et disposent d'un solarium privé sur le toit. Le rez-de-chaussée comprend un salon et une salle à manger ouverts avec cuisine intégrée, buanderie et toilettes pour invités. L'étage supérieur offre deux ou trois chambres doubles et deux salles de bains, dont une chambre principale avec salle de bains attenante. Plusieurs solariums sur le toit comprennent un studio offrant un espace supplémentaire polyvalent pour un bureau à domicile ou un espace de loisirs.
Spécifications haut de gamme et équipements de confort
Toutes les propriétés sont construites avec des matériaux de haute qualité et des systèmes modernes. Elles sont équipées d'une climatisation et d'un chauffage par système aérothermique entièrement installés, ainsi que de cuisines entièrement équipées avec des appareils Siemens. Les baies vitrées maximisent la lumière naturelle et renforcent la connexion entre les espaces intérieurs et extérieurs. La plupart des logements comprennent deux places de parking souterrain et certains offrent également un débarras privé.
Espaces communs de style resort
Au cœur de la communauté se trouve une piscine réservée aux résidents, avec de spacieuses terrasses ensoleillées conçues pour créer un environnement calme de style resort. Cet espace commun est idéal pour se détendre après une partie de golf ou pour profiter du climat méditerranéen en famille ou entre amis.
Excellente connectivité et commodités à proximité
Le golf de Miraflores se trouve à environ 1 km, ce qui rend ce complexe idéal pour les amateurs de golf. Les plages de Calahonda sont à environ 1,4 km des résidences et offrent un large éventail de bars de plage et d'activités nautiques. Marbella et La Cala de Mijas sont toutes deux facilement accessibles en voiture, tandis que l'aéroport de Malaga est bien relié par la route côtière principale.
Distances clés vers les points d'intérêt
Golf de Miraflores : 1 km
Plage de Calahonda : 1,4 km
La Cala de Mijas : 6 km
Marbella : 15 km
Port de plaisance de Puerto Banus : 18 km
Aéroport de Malaga : 35 km
Assurez-vous une maison avec vue sur la mer sur la Costa del Sol
Contactez-nous dès aujourd'hui pour obtenir plus d'informations ou pour organiser une visite privée de ces maisons de ville neuves exclusives situées près du golf de Miraflores à Calahonda.