VILLAS DE NOUVELLE CONSTRUCTION À TORREVIEJA
Nouveau projet de construction de 3 villas dans un quartier résidentiel calme Aguas Nuevas de Torrevieja, province d'Alicante.
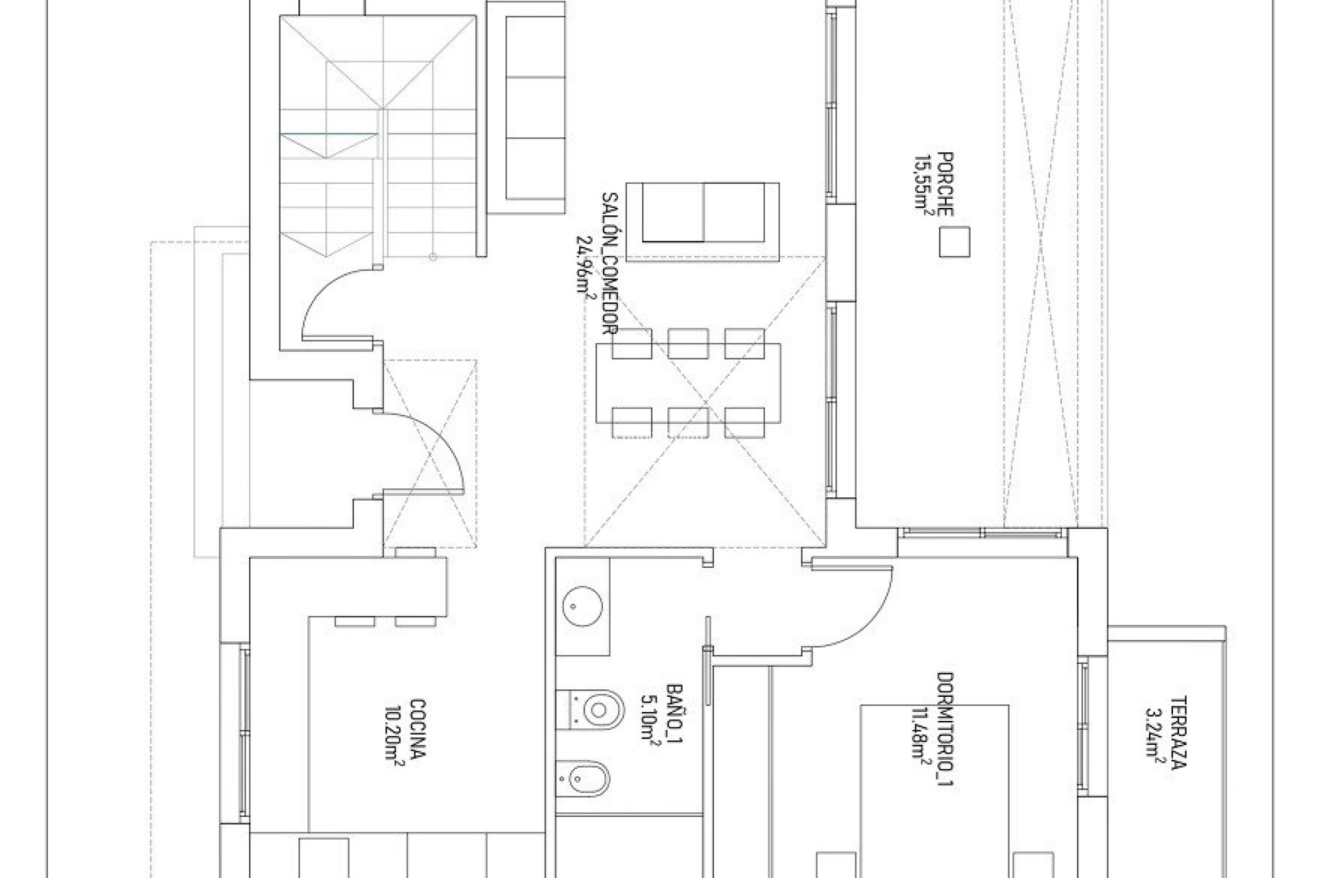
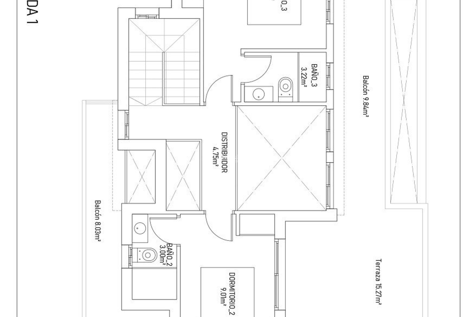
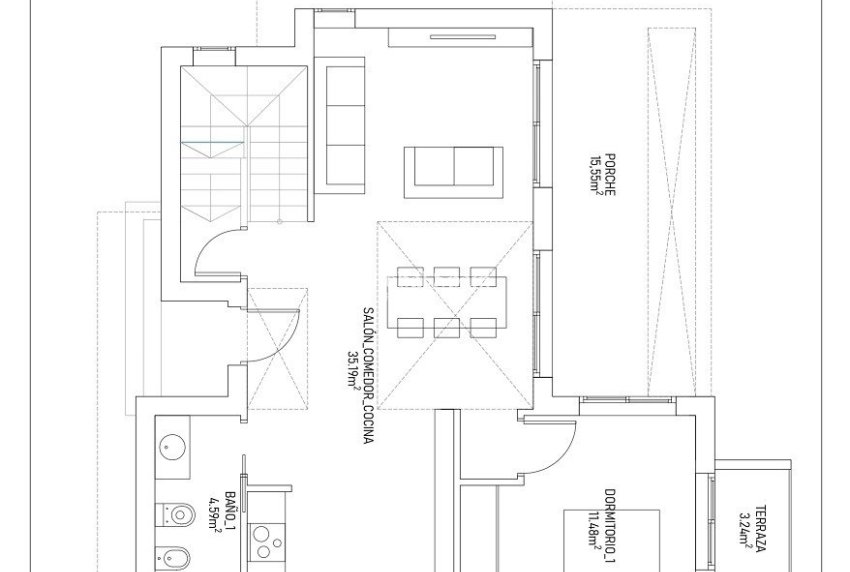
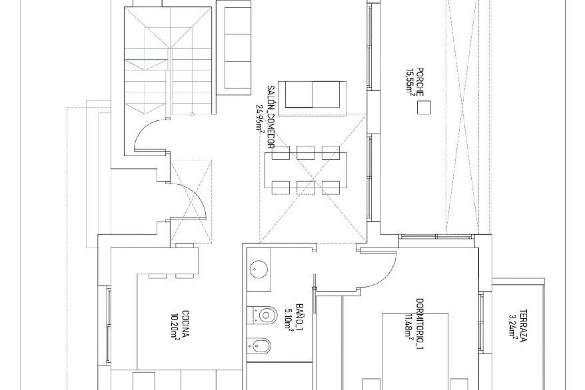
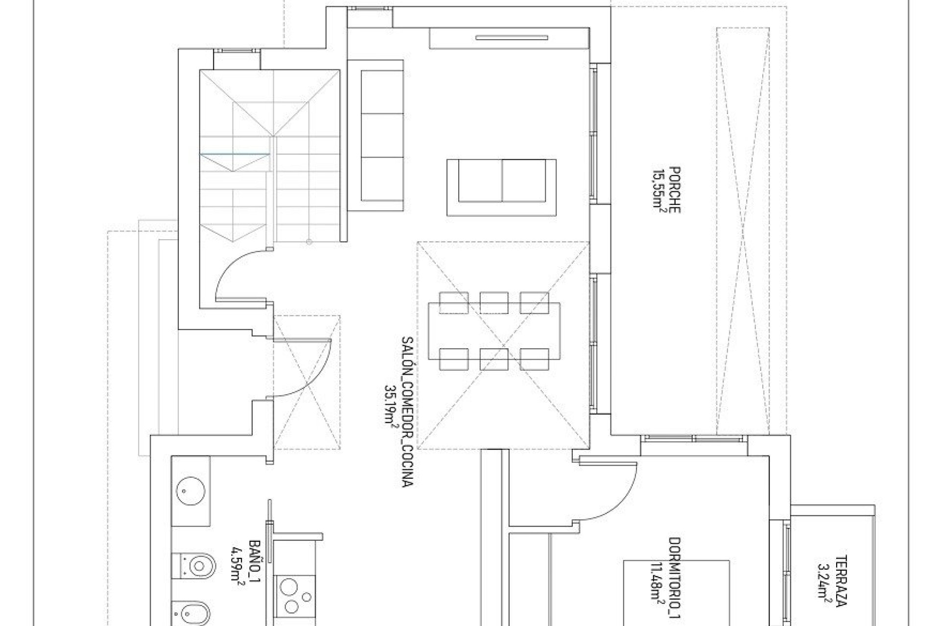
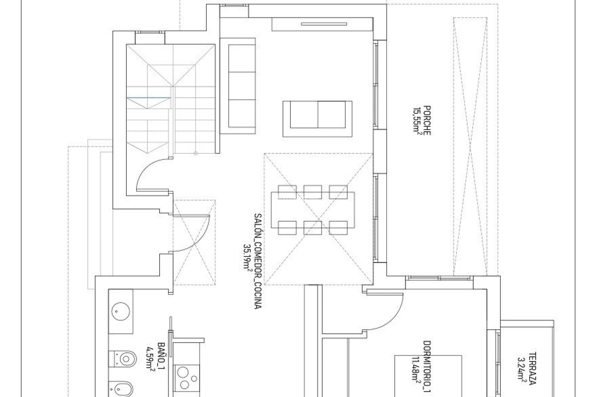
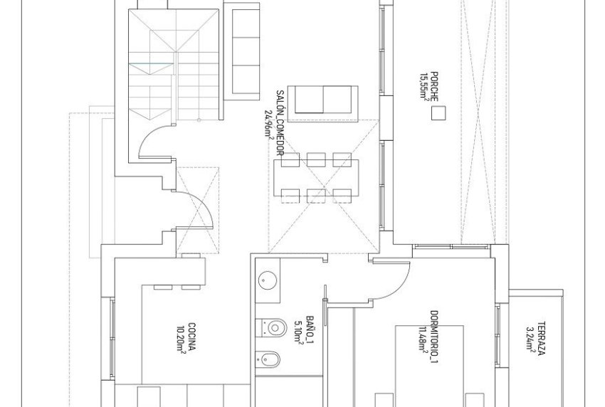
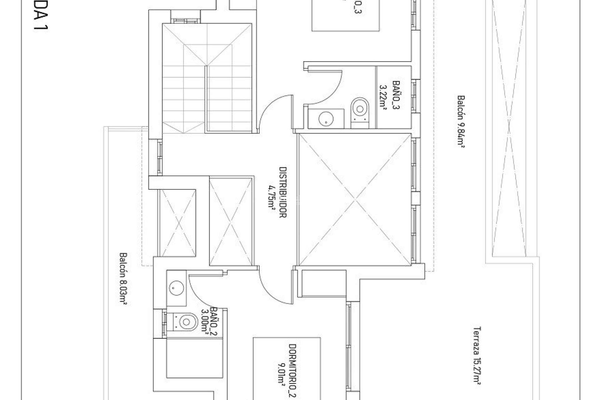
Belle villa dispose de 3 chambres, 3 salles de bains, salon - salle à manger - cuisine, 2 terrasses, balcon, sous-sol - garage, solarium.
Villas situées à 10 minutes à pied de la mer, à côté du parc, des magasins, des restaurants, des cafés.
Torrevieja est une ville espagnole de la province d'Alicante, sur la Costa Blanca.
Elle est connue pour son climat typiquement méditerranéen et son littoral. Elle possède des promenades avec des stations balnéaires le long de ses plages de sable.
Le petit musée de la mer et du sel abrite des expositions sur l'histoire de la pêche et du sel de la ville.
À l'intérieur, le parc naturel Lagunas de La Mata-Torrevieja dispose de sentiers et de deux lagunes salées, l'une rose et l'autre verte.
L'aéroport d'Alicante se trouve à 40 minutes et celui de Murcie à environ 1 heure.
425