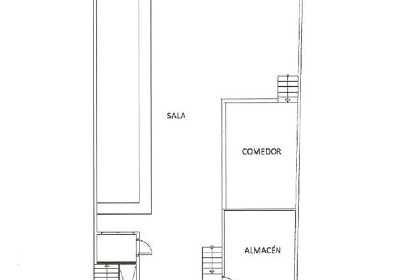
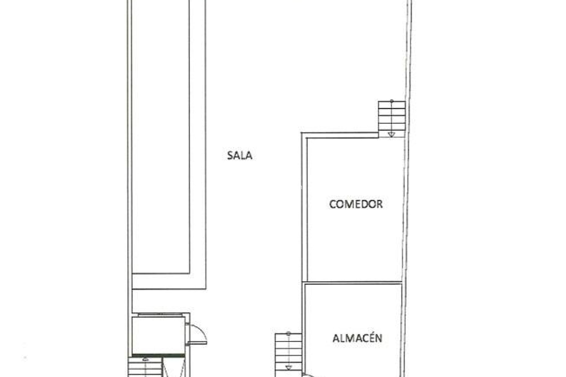
Nous vous présentons ce spacieux local commercial situé dans l’un des quartiers les plus recherchés de Torrevieja : Playa del Cura, à seulement 130 mètres de la mer. Un emplacement stratégique combinant un fort passage piétonnier toute l’année et une grande affluence touristique pendant la haute saison.~~Le bien dispose de 149 m2 construits, offrant un espace vaste et polyvalent pouvant s’adapter à de nombreux types d’activités commerciales.~~Le local nécessite actuellement une rénovation complète, ce qui représente une excellente opportunité de concevoir l’espace entièrement selon les besoins du projet. Idéal pour un restaurant, café, boutique, bureau, salle de sport boutique, centre esthétique ou tout autre projet commercial.~~La propriété dispose également de deux salles de bain et d’un grand débarras, apportant davantage de fonctionnalité et de possibilités de stockage.~~En résumé, il s’agit d’une excellente opportunité d’investissement dans l’une des zones les plus attractives de la Costa Blanca, idéale pour les entrepreneurs et les investisseurs recherchant un local avec un fort potentiel de rentabilité près de la mer.