Nowe apartamenty i bungalowy na sprzedaż w Pilar de la Horadada w pobliżu plaży
Ekskluzywna inwestycja mieszkaniowa na południowym wybrzeżu Costa Blanca
Odkryj ten nowoczesny kompleks mieszkaniowy położony w Pilar de la Horadada, najbardziej na południe wysuniętej miejscowości na wybrzeżu Costa Blanca. Ta butikowa inwestycja oferuje wybór nowoczesnych apartamentów i bungalowów zaprojektowanych tak, aby łączyć komfort, funkcjonalność i śródziemnomorski styl życia.
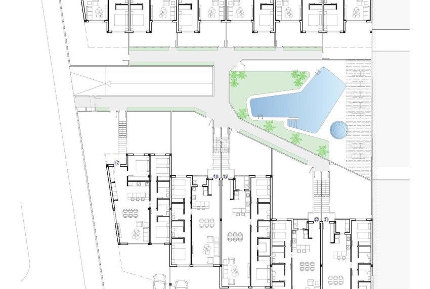
Projekt składa się z zaledwie 26 starannie zaprojektowanych domów z 2 lub 3 sypialniami i 2 łazienkami, co czyni go idealnym rozwiązaniem zarówno na stałe miejsce zamieszkania, jak i na wakacje. Kompleks położony jest w spokojnej dzielnicy mieszkalnej, w odległości spacerowej od centrum miasta, gdzie mieszkańcy mogą korzystać z restauracji, kawiarni, supermarketów, lokalnych sklepów i wszystkich niezbędnych usług.
Pilar de la Horadada to urocze hiszpańskie miasteczko znane z przyjaznej atmosfery, tętniącej życiem głównej ulicy i pięknych placów. Dzięki doskonałym połączeniom z pobliskimi obszarami przybrzeżnymi i ośrodkami golfowymi jest to popularne miejsce wśród międzynarodowych nabywców poszukujących słońca i wysokiej jakości życia.
Apartamenty i bungalowy z prywatnymi przestrzeniami zewnętrznymi
Inwestycja oferuje dwa różne typy nieruchomości, dostosowane do różnych stylów życia.
Kompleks obejmuje 16 nowoczesnych apartamentów. Nabywcy mogą wybierać między lokalami na parterze z prywatnymi ogrodami, apartamentami na środkowych piętrach z przestronnymi tarasami lub penthouse'ami z prywatnymi tarasami i solarium na dachu.
Dostępnych jest również 10 bungalowów. Bungalowy na parterze mają prywatne ogrody i parking na terenie działki, natomiast bungalowy na najwyższym piętrze oferują tarasy i prywatne solaria.
Za dodatkową opłatą dostępne są opcjonalne miejsca parkingowe i schowki w podziemiach.
Wszystkie domy zostały zaprojektowane z jasnymi wnętrzami, otwartymi układami i komfortowymi częściami dziennymi, które w naturalny sposób przechodzą w przestrzenie zewnętrzne.
Wysokiej jakości konstrukcja i nowoczesne wyposażenie
Domy są zbudowane z wysokiej jakości materiałów i wyposażone w nowoczesne systemy, aby zapewnić komfort i energooszczędność przez cały rok.
Umeblowane kuchnie
W pełni wyposażone łazienki z kabinami prysznicowymi i ogrzewaniem podłogowym
Energooszczędny aerotermiczny system ciepłej wody
Instalacja przygotowana do montażu klimatyzacji kanałowej
Mieszkańcy mogą również korzystać ze wspólnego basenu otoczonego ogrodami krajobrazowymi i miejscami do opalania, tworząc relaksujące środowisko, w którym można cieszyć się śródziemnomorskim klimatem.
Doskonała lokalizacja w pobliżu plaż i pól golfowych
Osiedle cieszy się strategiczną lokalizacją w pobliżu najlepszych plaż i pól golfowych w regionie.
Plaża Torre de la Horadada 3 km
Plaża Mil Palmeras 3 km
Lo Romero Golf 6 km
Międzynarodowe lotnisko Region de Murcia 45 km
Lotnisko Alicante Elche 75 km
Okolica oferuje również doskonałe połączenia drogowe z pobliskimi nadmorskimi miasteczkami, marinami i obiektami rekreacyjnymi wzdłuż wybrzeża Costa Blanca i Costa Calida.
Znajdź swój nowy dom w Pilar de la Horadada
Ten atrakcyjny, nowo wybudowany kompleks mieszkaniowy oferuje nowoczesne domy, wysokiej jakości wykończenie i fantastyczną lokalizację w pobliżu plaży. Skontaktuj się z nami już dziś, aby uzyskać więcej informacji lub umówić się na wizytę i zabezpieczyć swoją nową nieruchomość na wybrzeżu Costa Blanca.
425