APARTAMENTOS DE OBRA NUEVA CERCA DE ESTEPONA
Nueva Construcción una exclusiva promoción de apartamentos y adosados situada en el privilegiado entorno de la Milla de Oro de Estepona.
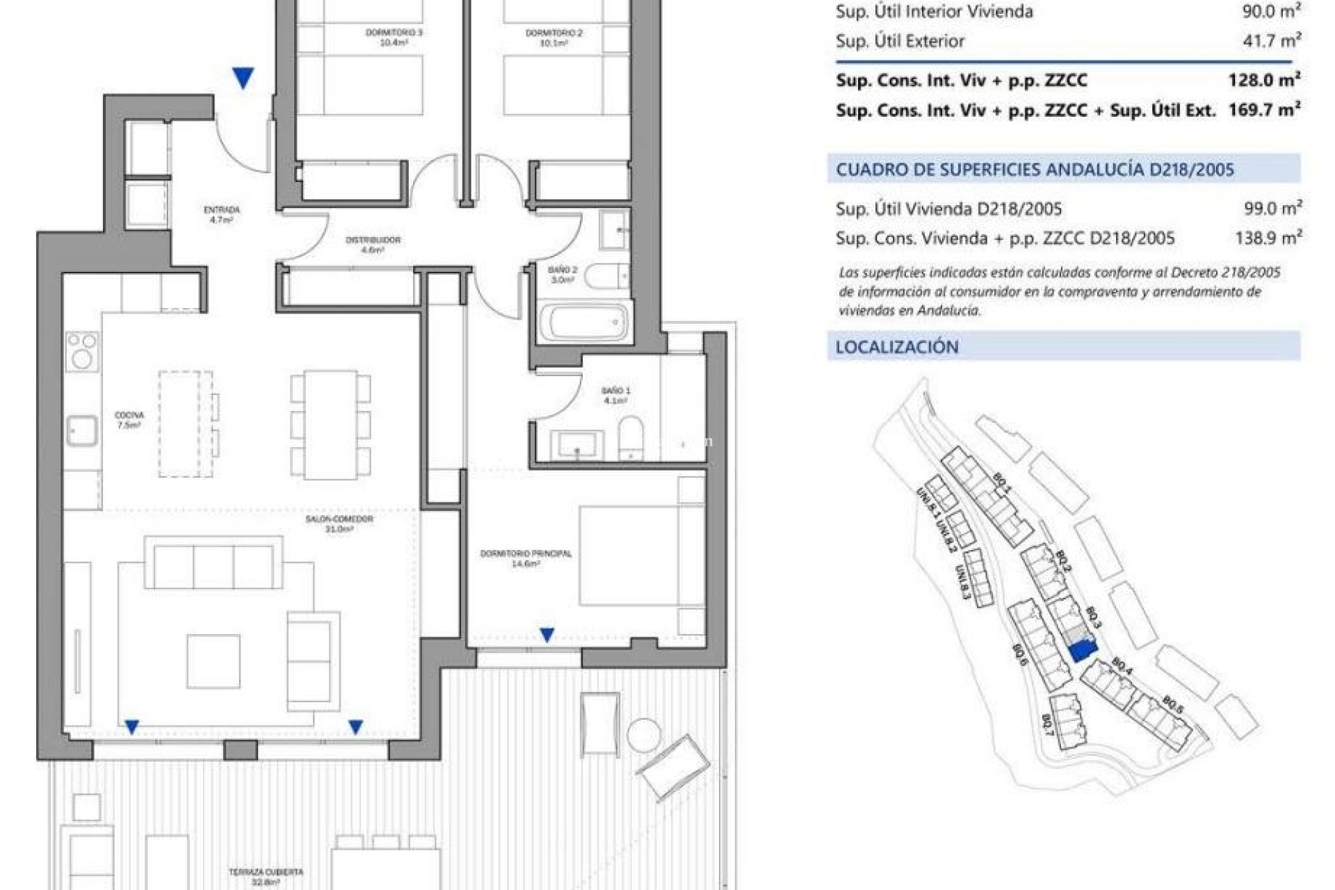
Modernas viviendas de 2 y 3 dormitorios disfrutan de amplias terrazas orientadas al suroeste.
Esta promoción combina acabados de calidad, amplitud de espacios interiores y exteriores y sostenibilidad, ya que cuenta con el sello DOMUM.
Su arquitectura vanguardista se combina con sus zonas comunes dotadas de piscina exterior, área de coworking, gimnasio equipado, zona deportiva, dos pistas de petanca y ciclosenda. Además, los propietarios tendrán acceso al exclusivo Club Santa Vista, que ofrece una amplia gama de instalaciones y servicios de ocio.
La ubicación de la urbanización es inmejorable, ya que se encuentra a poca distancia del encantador pueblo de Cancelada y cerca de varios campos de golf.
Situado en un lugar privilegiado, junto a Estepona, a pocos minutos de la playa y cerca de campos de golf. A tan sólo 10 minutos de Marbella, y a 45 minutos del Aeropuerto Internacional de Málaga.
Podrá disfrutar de una verdadera calidad de vida, con una temperatura media anual de 20º y más de 320 días de sol al año. Disfrutará de una gran variedad de campos de golf, kilómetros de costa tranquila, sol, naturaleza y la gastronomía de la zona, desde sus restaurantes internacionales hasta su acogedora cocina local.
Combina a la perfección la tradición de sus calles empedradas de casas encaladas y patios con macetas de flores de colores, con la modernidad y la mejor oferta de ocio de la Costa del Sol. Su privilegiada situación entre el mar y la montaña la convierten en uno de los destinos turísticos más atractivos de la provincia.
425