Villas sostenibles de estilo mediterráneo en venta en Macenas, Almería
Disfrute de la esencia de la vida mediterránea con esta nueva promoción de villas exclusivas en Macenas, Almería. Situadas en un complejo residencial privado a solo 600 metros de la playa y rodeadas de paisajes naturales vírgenes, estas viviendas son perfectas para quienes buscan relajación, elegancia y sostenibilidad junto al mar.
Vida exclusiva en un complejo turístico cerca del Mediterráneo
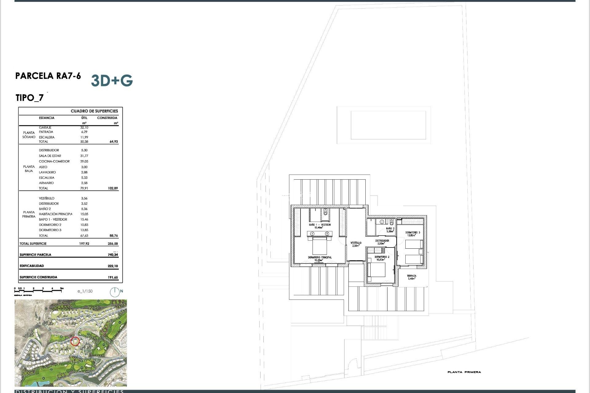
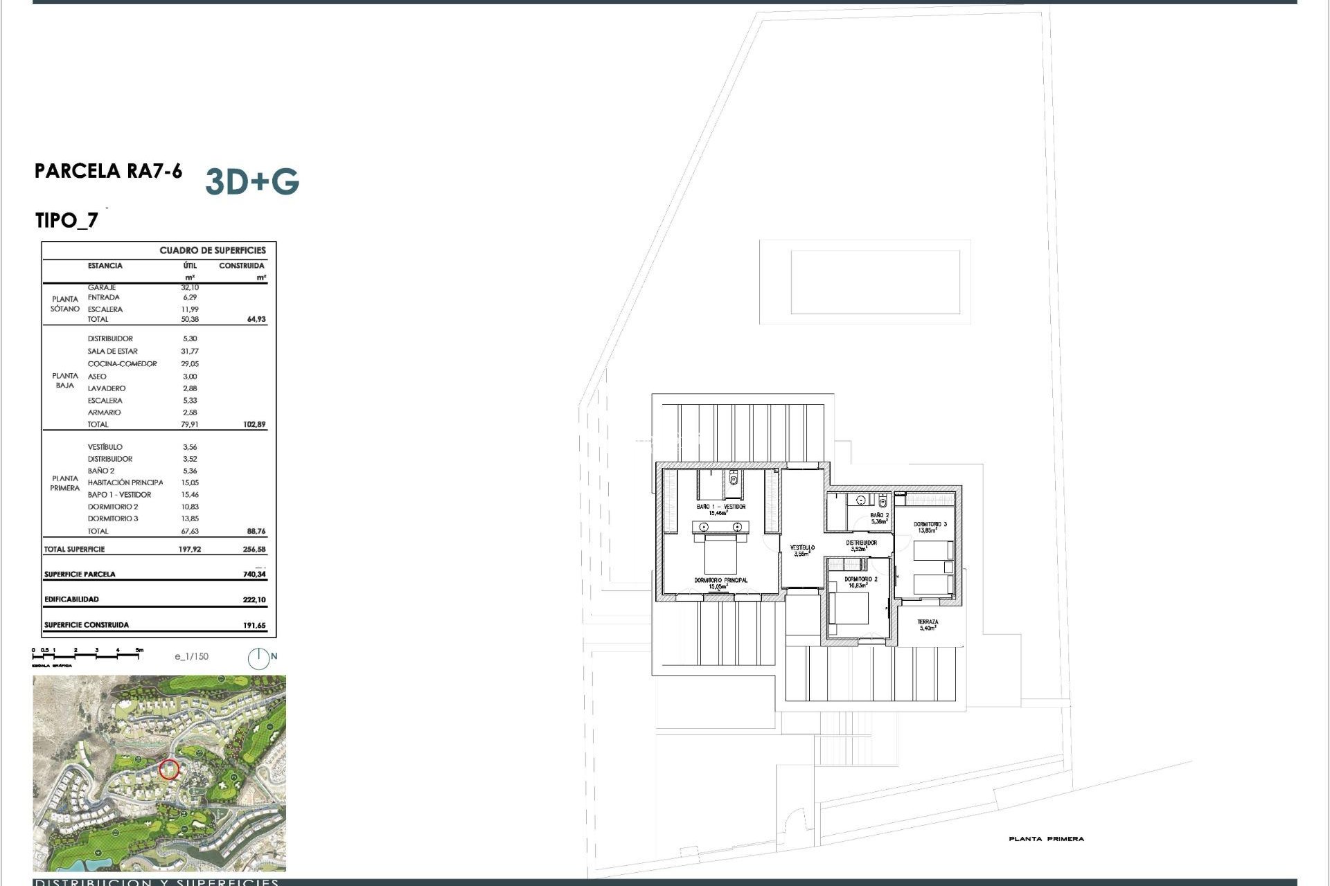
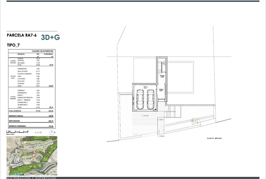
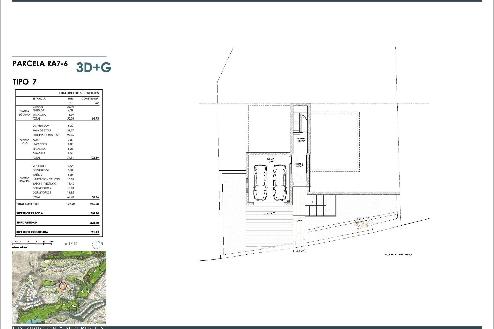
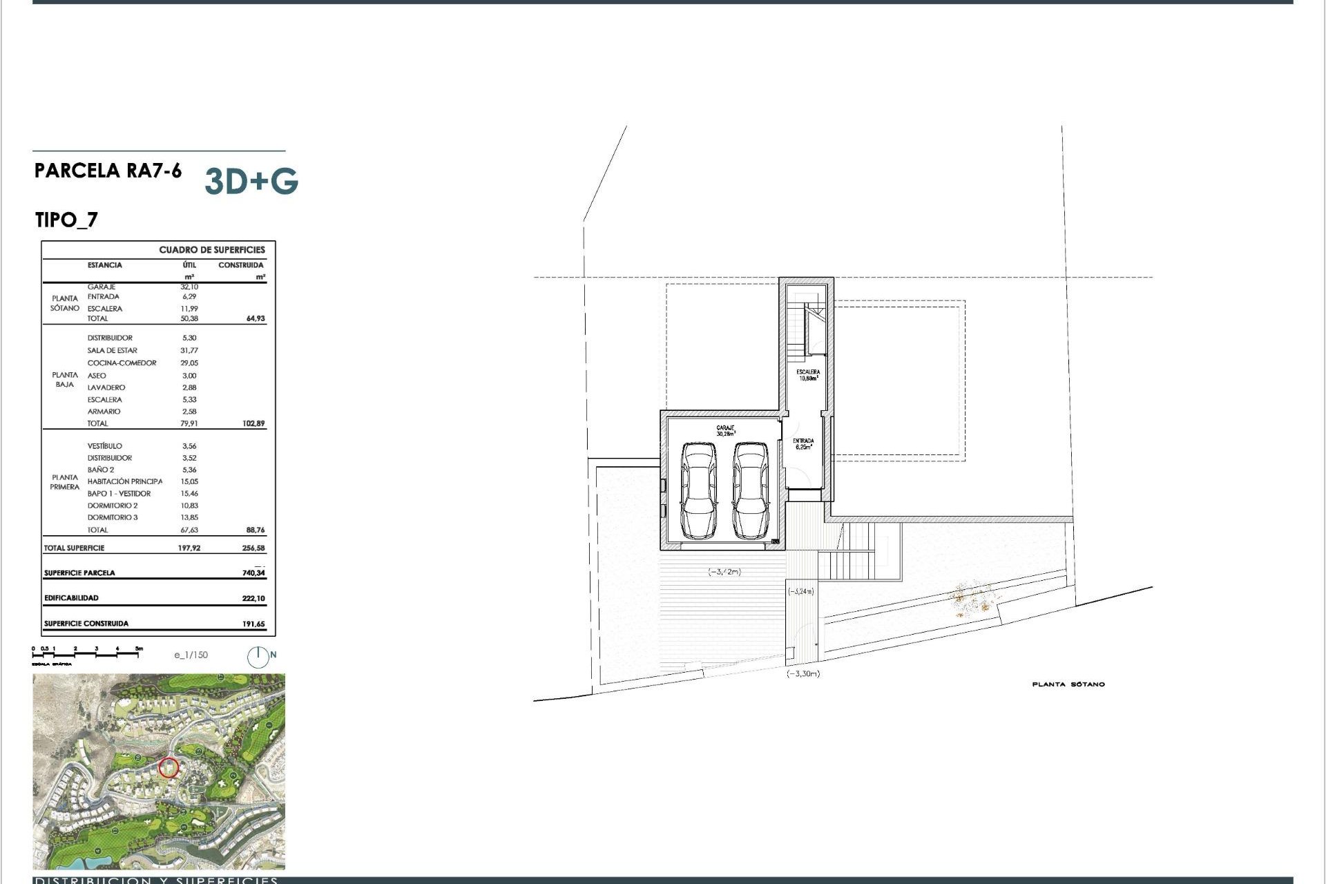
Este nuevo proyecto residencial ofrece villas independientes de 3 o 4 dormitorios en amplias parcelas. Situadas en un complejo privado en la costa de Almería, cada vivienda cuenta con amplias terrazas con impresionantes vistas al mar o al campo de golf, ideales para disfrutar del clima templado durante todo el año. El complejo se encuentra a solo 6 km de Mojácar Pueblo, un encantador pueblo conocido por sus casas en blanco y su patrimonio cultural.
Diseño moderno con aire mediterráneo
Estas villas combinan la arquitectura contemporánea con toques tradicionales mediterráneos, integrándose a la perfección en el paisaje natural de Macenas. Construidas con materiales sostenibles y jardines autóctonos de bajo consumo de agua, la urbanización promueve un estilo de vida ecológico. También está previsto un futuro campo de golf de 18 hoyos integrado en el entorno, lo que añadirá valor a largo plazo a la comunidad.
Características premium y sistemas de alta eficiencia
Todas las villas cuentan con una cocina SANTOS totalmente equipada y personalizable con electrodomésticos de alta gama. La climatización se proporciona mediante aire acondicionado por conductos y calefacción por suelo radiante alimentada por un sistema aerotérmico de alta eficiencia energética. El sistema de zonificación inteligente Airzone garantiza el máximo confort térmico en toda la vivienda.
Otras características adicionales incluyen:
Carpintería exterior de aluminio Technal con rotura de puente térmico
Persianas de aluminio motorizadas y regulables
Piscina privada de 7,5 m x 3,2 m
Pérgola de aluminio lacado
Extras opcionales como chimenea, cocina de verano y paquetes de mobiliario a medida
Ubicación privilegiada y puntos de interés cercanos
Playa de Macenas – 600 m
Mojácar Pueblo – 6 km
Marina de la Torre Golf – 9 km
Parque Natural de Cabo de Gata: 30 km
Ciudad de Almería: 88 km
Aeropuerto de Almería: 77 km
Su escapada mediterránea le espera
Tanto si busca una residencia permanente, un refugio para las vacaciones o una inversión sólida, estas villas mediterráneas sostenibles en Macenas ofrecen un estilo de vida inigualable en la costa de Almería. Póngase en contacto con nosotros hoy mismo para obtener más información o concertar una visita.
425