Villa de lujo de nueva construcción en Moraira - A sólo 3 km del mar
Diseño moderno con características de primera calidad
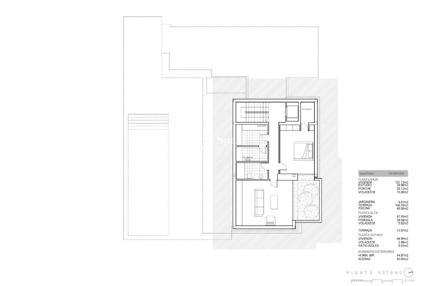
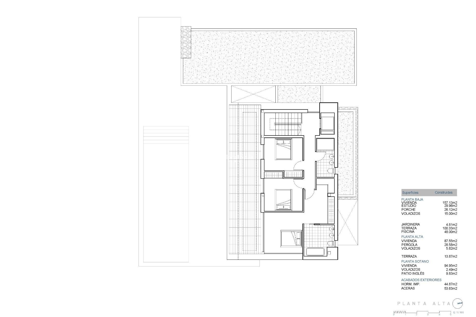
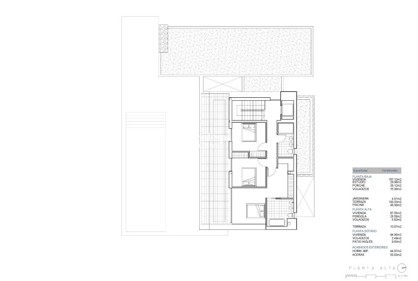
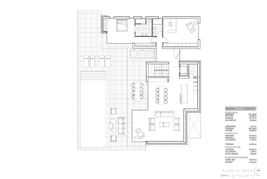
Situada en la pintoresca localidad costera de Moraira, esta impresionante villa de nueva construcción está a sólo 3 km del brillante mar Mediterráneo. Con un diseño contemporáneo y funcional, esta casa de dos plantas más un nivel subterráneo ofrece un generoso 395 m² de espacio habitable. Diseñada para maximizar el confort y la luz natural, la villa combina el lujo con la practicidad en cada detalle.
Distribución espaciosa y bien planificada
La planta baja está cuidadosamente diseñada para la vida social, con amplias zonas de estar y comedor junto a una moderna cocina y un dormitorio. En la planta superior, los espacios privados incluyen dormitorios adicionales, cada uno de ellos con impresionantes vistas y el máximo confort. Con 6 dormitorios y 5 baños, esta villa es perfecta para familias numerosas o para aquellos a los que les encanta recibir invitados. El nivel subterráneo ofrece espacio adicional personalizable, ideal para un gimnasio en casa, cine o bodega.
Construcción de primera calidad
Esta villa está construida con materiales de alta calidad y atención al detalle, garantizando un hogar duradero y con estilo:
Azulejos de porcelana de la prestigiosa marca Saloni.
Puerta principal equipada con cerradura de seguridad de tres cerrojos para mayor tranquilidad.
Cristal de seguridad Guardian Sun climalit para mayor aislamiento y seguridad.
Persianas eléctricas en todos los dormitorios para mayor comodidad.
Calefacción por suelo radiante con bomba de calor Mitsubishi para mayor comodidad durante todo el año.
Sistemas de aire acondicionado Mitsubishi en todas las zonas de estar y dormitorios con control climático.
Piscina privada y elementos exteriores
Disfrute de una lujosa piscina privada con iluminación LED subacuática, una escalera romana y una ducha exterior integrada. El exterior de la villa está diseñado para la facilidad y la privacidad, con una puerta de entrada automática con mando a distancia y una puerta peatonal para mayor comodidad.
Ubicación privilegiada en Moraira
Situada en un barrio tranquilo, la villa goza de una ubicación ideal cerca de los principales servicios y atracciones:
Playa de Moraira: 3 km
Aeropuerto de Alicante: 92 km
La Sella Golf Resort: 25 km
Centros comerciales: 5 km
Puerto de Moraira: 4 km
Moraira es conocida por su encantador ambiente costero, excelentes opciones gastronómicas y vibrante cultura local, por lo que es un lugar perfecto para llamar a casa o invertir en un refugio de vacaciones.
Programe su visita hoy mismo
No pierda esta oportunidad de poseer una lujosa villa en uno de los lugares más deseados de España. Póngase en contacto con nosotros para concertar una visita y hacer suya esta impresionante propiedad.
425