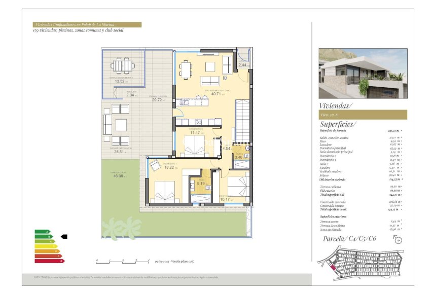
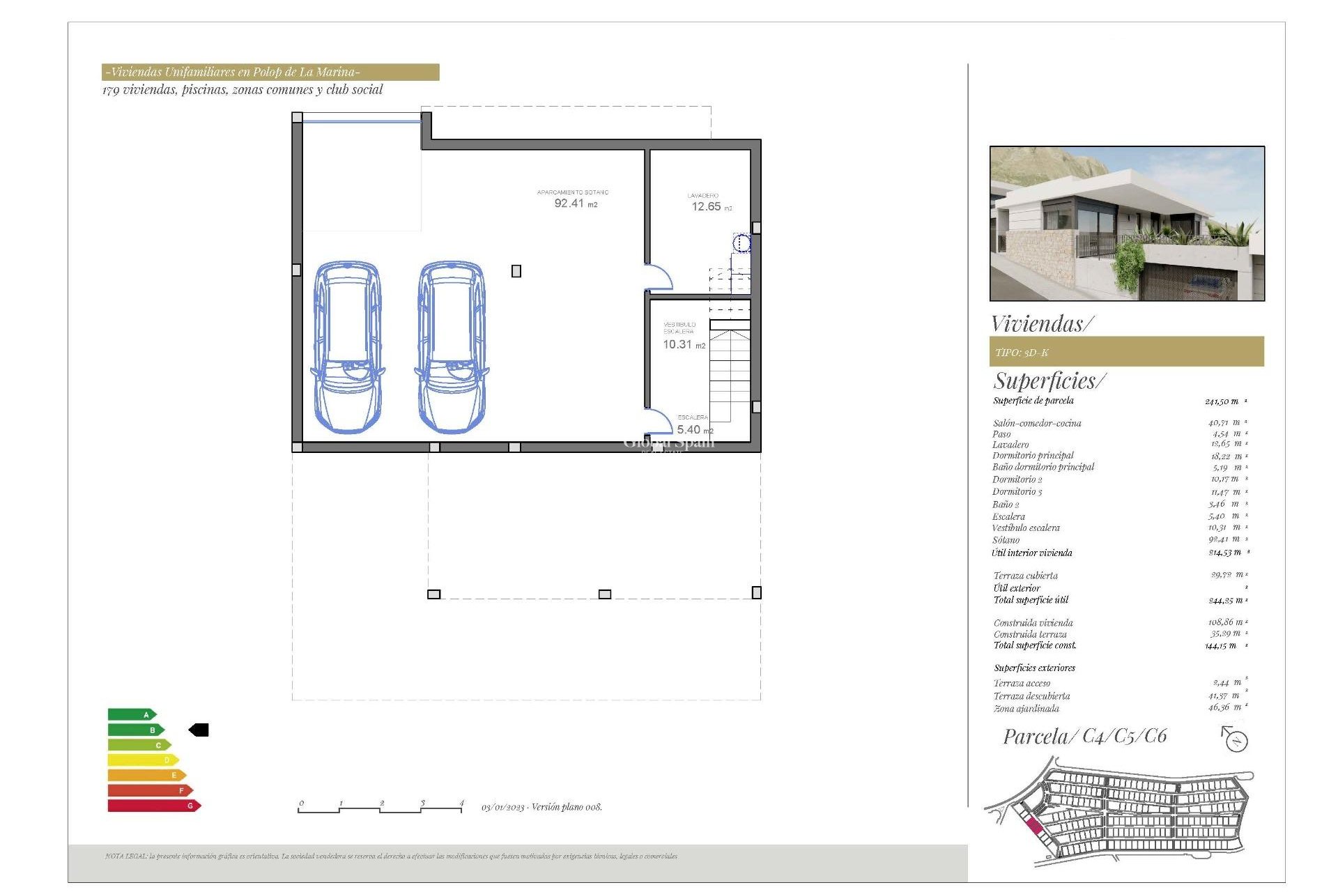
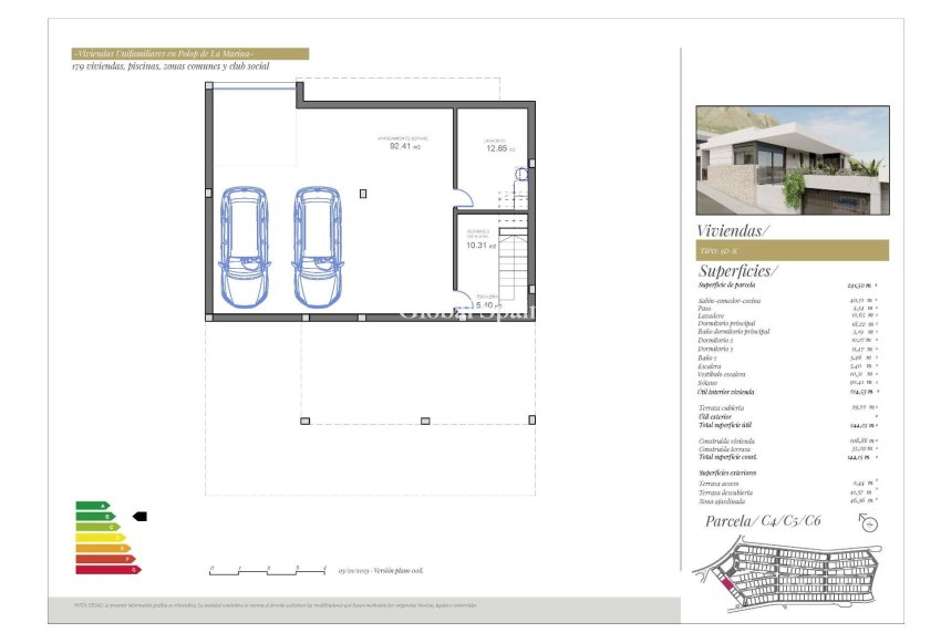
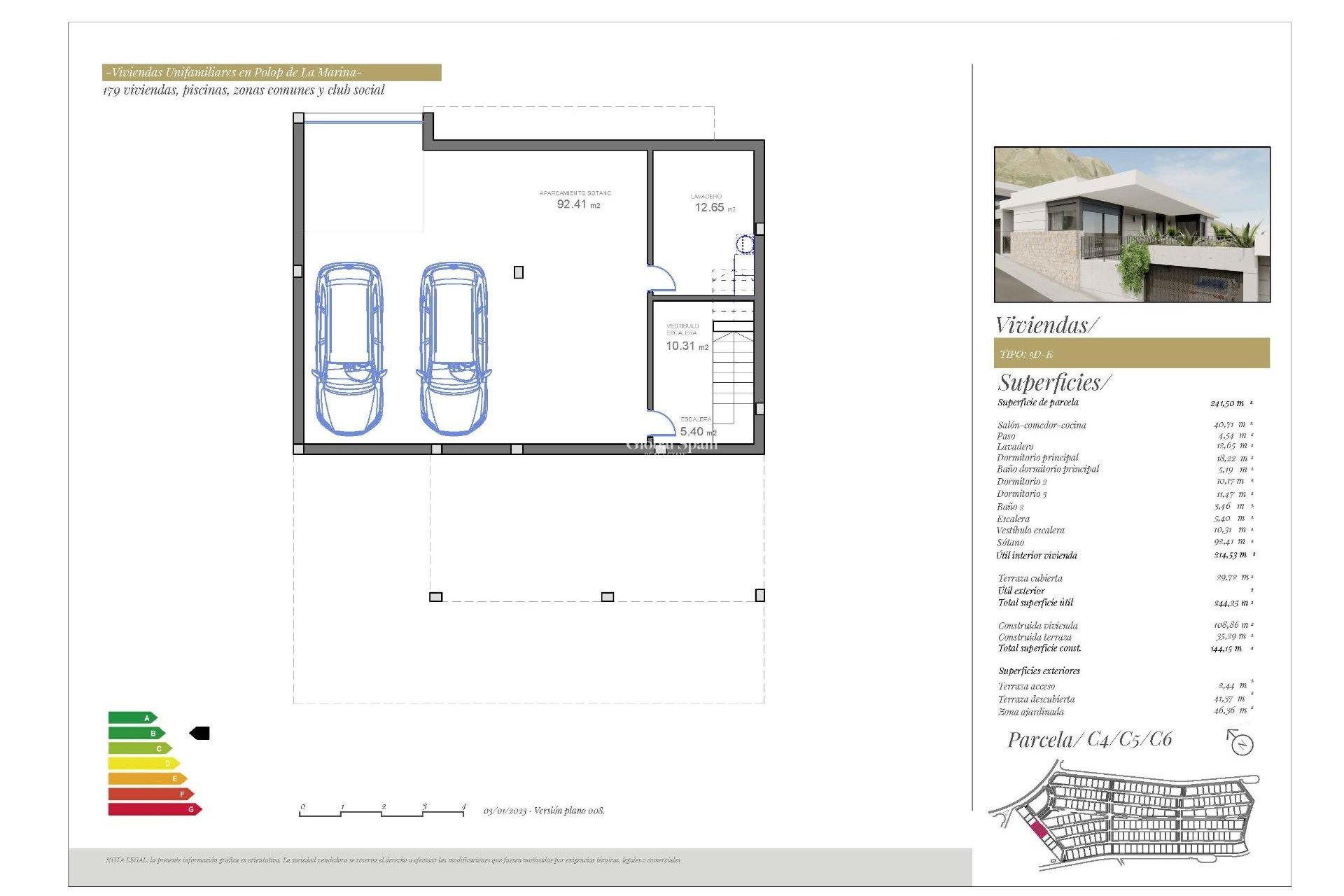
Nueva construcción » VILLA » POLOP »

VILLA/Nueva construcción ALICANTE / COSTA BLANCA · POLOP

Ref.SP-20886
€ 470.000

Descripción

VILLA/Nueva construcción ALICANTE / COSTA BLANCA · POLOP

Ref.SP-20886
€ 470.000

Características

Localización

Realizar una consulta

Responsable del tratamiento: Global Spain, Finalidad del tratamiento: Gestión y control de los servicios ofrecidos a través de la página Web de Servicios inmobiliarios, Envío de información a traves de newsletter y otros, Legitimación: Por consentimiento, Destinatarios: No se cederan los datos, salvo para elaborar contabilidad, Derechos de las personas interesadas: Acceder, rectificar y suprimir los datos, solicitar la portabilidad de los mismos, oponerse altratamiento y solicitar la limitación de éste, Procedencia de los datos: El Propio interesado, Información Adicional: Puede consultarse la información adicional y detallada sobre protección de datos Aquí.
WhatsApp