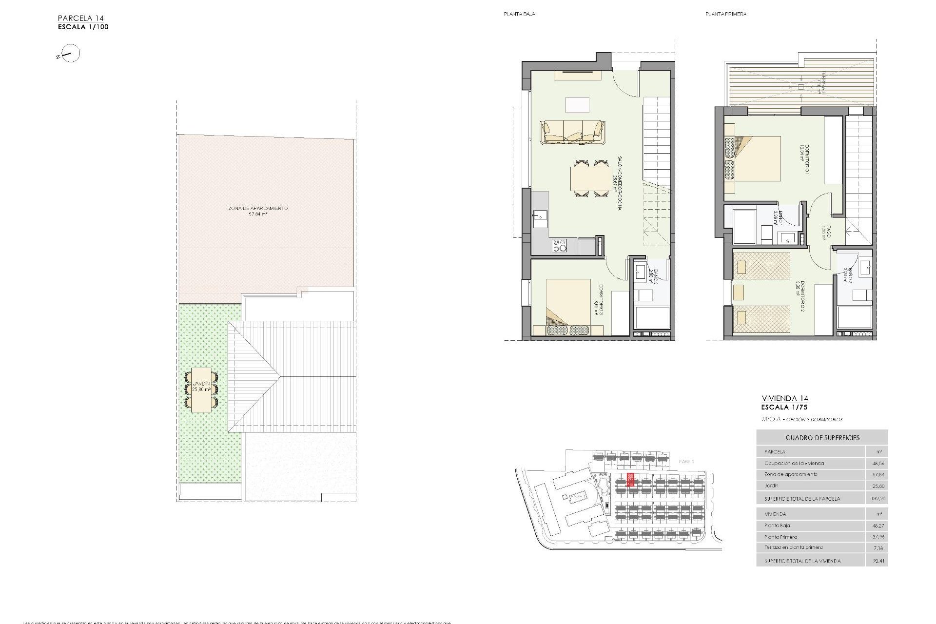
BUNGALOWS DE 3 DORMITORIOS EN RESIDENCIAL EXCLUSIVO EN GRAN ALACANT!
Descubre ese residencial exclusivo de bungalows desde 86,28m² con jardín desde 64m², y con 2 o 3 dormitorios. Es una urbanización privada, que cuenta con piscina comunitaria, zonas ajardinadas y zona de juegos infantiles para el disfrute del tiempo libre.
El residencial está ubicado en el cabo de Santa Pola, entre la sierra y la playa del Carabassí. Con la dotación de todos los servicios, destacando un Centro Comercial a escasos metros, con moda, amplia zona de ocio, servicios y restauración, gasolinera, para de autobús, etc… Linda con la carretera general, por un lado, y el mar mediterráneo por su lado este, con unas playas de finas arenas y extensas pinadas.
Los bungalows son de dos plantas, con unos acabados de alta calidad, amplias plazas para aparcar y terrazas para poder disfrutar del sol todo el año! Se entrega con instalación de dos aires acondicionados, cocina con horno, placa de vitrocerámica de inducción y campana de extracción.
-A 12 km del aeropuerto internacional de Alicante-Elche
-A 6 km de Santa Pola
-A 23 km de Alicante
Disfruta de la comodidad de los espacios en una zona privilegiada!
425