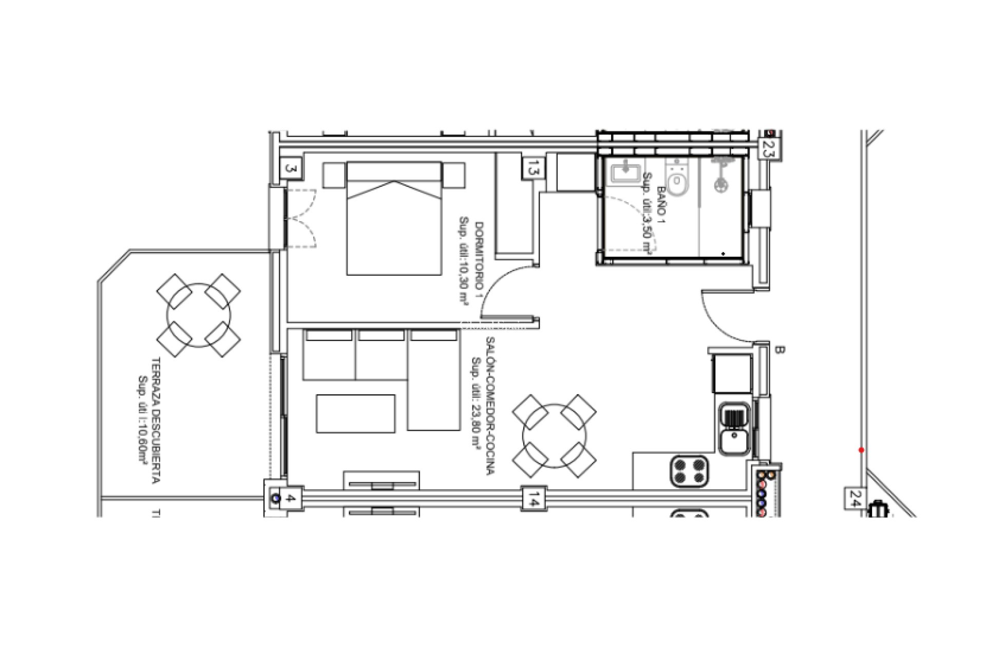
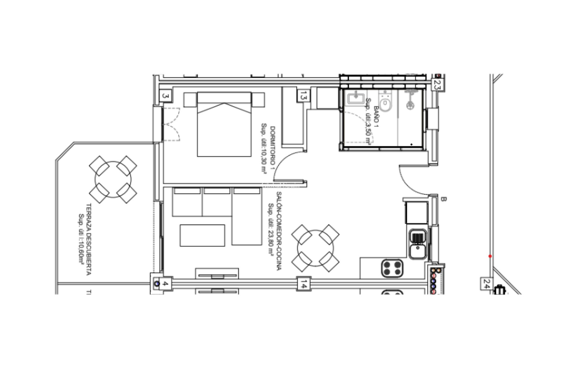
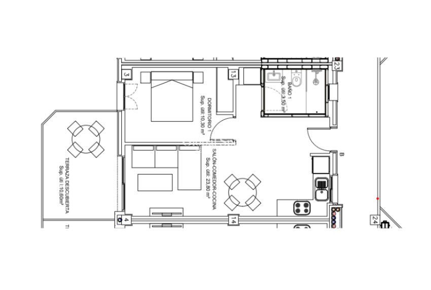
Este proyecto se ubicará a tan solo 850 metros de la playa ( La Cala de Finestrat) y constará de 47 viviendas de obra nueva de alta calidad de 1, 2 o 3 dormitorios, todas con plaza de aparcamiento y trastero incluidos . El proyecto contará con zonas comunes excepcionalmente bien equipadas con dos piscinas exteriores (una climatizada), jacuzzis, saunas, gimnasio interior, gimnasio exterior, pista de petanca, zonas de relax y amplias zonas verdes .
Todas las viviendas vienen de serie con acabados de Porcelanosa , domótica, persianas inteligentes con anemómetro, cocina totalmente equipada, suelo radiante, wifi de alta cobertura, ventiladores en todos los dormitorios, termostatos digitales y puerta de entrada blindada.
Además, el edificio cuenta con paneles solares fotovoltaicos para las zonas comunes y un sistema anti-apagón que garantiza hasta 4 días de autonomía , convirtiendo al proyecto en uno de los más tecnológicos y energéticamente eficientes de la región.
Protección solar eléctrica con anemómetro (protección solar inteligente automática que responde al viento y al sol)
Paquete básico de domótica (control de iluminación, temperatura y persianas)
Ventiladores de techo en el dormitorio.
Puerta de entrada blindada
Electrodomésticos empotrados de BOSCH o SIEMENS (placa de inducción, horno, campana extractora, lavavajillas, frigorífico y lavadora/secadora combinadas)
Armario empotrado con iluminación interior
Termostato digital en las habitaciones
Sistema WiFi con cobertura total en toda la casa.
Calefacción por suelo radiante en toda la casa (excepto en los baños modulares)
Radiador de toallas en el baño
Aire acondicionado por conductos (frío y calor)
El proyecto está ubicado en una zona popular de Benidorm, a poca distancia de todos los servicios:
A 850m de la playa (1,1km a pie o en coche).
A 1,2 km de acogedores bares y restaurantes.
Hay 3 grandes supermercados en un radio de 1,2 km.
40 minutos en coche del aeropuerto de Alicante.
Una ubicación ideal para quienes desean combinar tranquilidad, comodidad y accesibilidad: perfecta para residencia permanente, vacaciones o inversión.
Si desea más información sobre estos apartamentos, la región o lo que implica comprar una propiedad en España, no dude en contactarnos; estaremos encantados de ayudarle.
🌐 INMOBILIARIA GLOBAL SPAIN (Costa Blanca, Costa Cálida, Costa del Sol, Islas Baleares)
📧 info@global-spain.com // 📞 +34 865 75 27 65 (NL, EN, DE, FR, ES)
¡El equipo de Global Spain le desea una feliz búsqueda de la casa de sus sueños en España!