Neubauwohnungen in Cancelada, Estepona – Luxus und Natur an der neuen Goldenen Meile
Exklusive Wohnanlage mit Blick auf das Mittelmeer
Entdecken Sie dieses Neubauprojekt in Cancelada, einer der begehrtesten Gegenden der neuen Goldenen Meile von Estepona, zwischen Marbella und Estepona-Stadt. Diese privilegierte Lage bietet die perfekte Balance zwischen Ruhe, modernen Dienstleistungen und Strandnähe. Nur 1,6 km vom Meer entfernt, können Sie in diesen Wohnungen das Beste der Costa del Sol genießen, mit Blick auf das Mittelmeer von den meisten Wohnungen aus und mit einfachem Zugang zu einem breiten Angebot an Freizeit-, Gastronomie- und Sportmöglichkeiten.
Moderne und helle Wohnungen
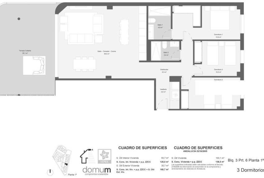
Diese Wohnanlage besteht aus 80 Apartments mit 2 und 3 Schlafzimmern, darunter Maisonette-Wohnungen, Erdgeschosswohnungen mit Garten, Zwischenetagen mit großen Terrassen und Penthäuser mit privater Sonnenterrasse. Alle Wohnungen verfügen über einen Garagenplatz und einen Abstellraum, die meisten bieten Meerblick. Die Wohnräume zeichnen sich durch ihr zeitgemäßes Design, ihre offenen Grundrisse und ihre hochwertige Ausstattung aus.
Gemeinschaftsbereiche für einen aktiven und entspannten Lebensstil
Die Anlage ist auf Wohlbefinden und Leben im Freien ausgelegt und verfügt über:
Gemeinschaftspool
Voll ausgestatteter Fitnessraum
Sportbereich im Freien
Zen-Bereich zum Entspannen
Exklusiver Zugang zum Club House von Cancelada mit Spa, Sauna, zusätzlichem Fitnessraum und Gemeinschaftsräumen
Diese Bereiche wurden so gestaltet, dass Sie das mediterrane Klima mit mehr als 320 Sonnentagen im Jahr und einer Durchschnittstemperatur von 20 °C in vollen Zügen genießen können.
Energieeffizienz und Komfort
Die Wohnungen verfügen über die Energieeffizienzklasse AA, was eine hohe Effizienz und Einsparungen garantiert. Sie sind mit einer Klimaanlage mit Wärmepumpe und einer gepanzerten Tür mit Sicherheitsschloss für maximale Sicherheit ausgestattet.
Eine einzigartige Umgebung zwischen Meer und Bergen
Cancelada ist ein charmanter Ort, der seine andalusische Tradition in Harmonie mit der Modernität der neuen Goldenen Meile bewahrt hat. Die weiß getünchten Straßen, blumengeschmückten Innenhöfe und die entspannte Atmosphäre harmonieren mit erstklassigen Golfplätzen, Yachthäfen, Luxushotels wie dem Kempinski Resort und einem gastronomischen Angebot für jeden Geschmack.
Wichtige Entfernungen:
Strand von Cancelada: 1,6 km
Zentrum von Estepona: 12 km
Marbella: 13 km
Internationaler Flughafen Málaga: 70 km
Flamingos Golf: 3 km
Reitschule Costa del Sol: 1,5 km
Einkaufszentrum Laguna Village: 8 km
Lassen Sie sich diese einmalige Gelegenheit nicht entgehen, in einer der vielversprechendsten Gegenden der Costa del Sol zu leben oder zu investieren. Kontaktieren Sie uns noch heute und entdecken Sie Ihr neues Zuhause in Cancelada, Estepona.
425