Luxuriöse Doppelhaushälften in Benijófar – Leben an der Costa Blanca
Privilegierte Lage in Benijófar
Diese exklusiven Doppelhaushälften befinden sich in der charmanten Stadt Benijófar, einer der begehrtesten Gegenden an der Costa Blanca. Benijófar ist bekannt für seine Mischung aus Tradition und modernem Lebensstil und bietet alle wichtigen Dienstleistungen wie Supermärkte, Apotheken, Banken, Restaurants und lokale Geschäfte. Die Anlage ist strategisch günstig gelegen, nur 10 km von den goldenen Stränden von Guardamar del Segura und nur 30 km vom Flughafen Alicante entfernt, was sie zu einem idealen Ort für einen dauerhaften Wohnsitz oder einen Urlaubsaufenthalt macht.
Geräumiges und modernes Design
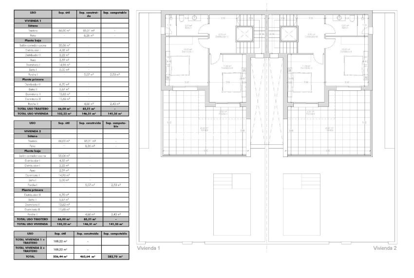
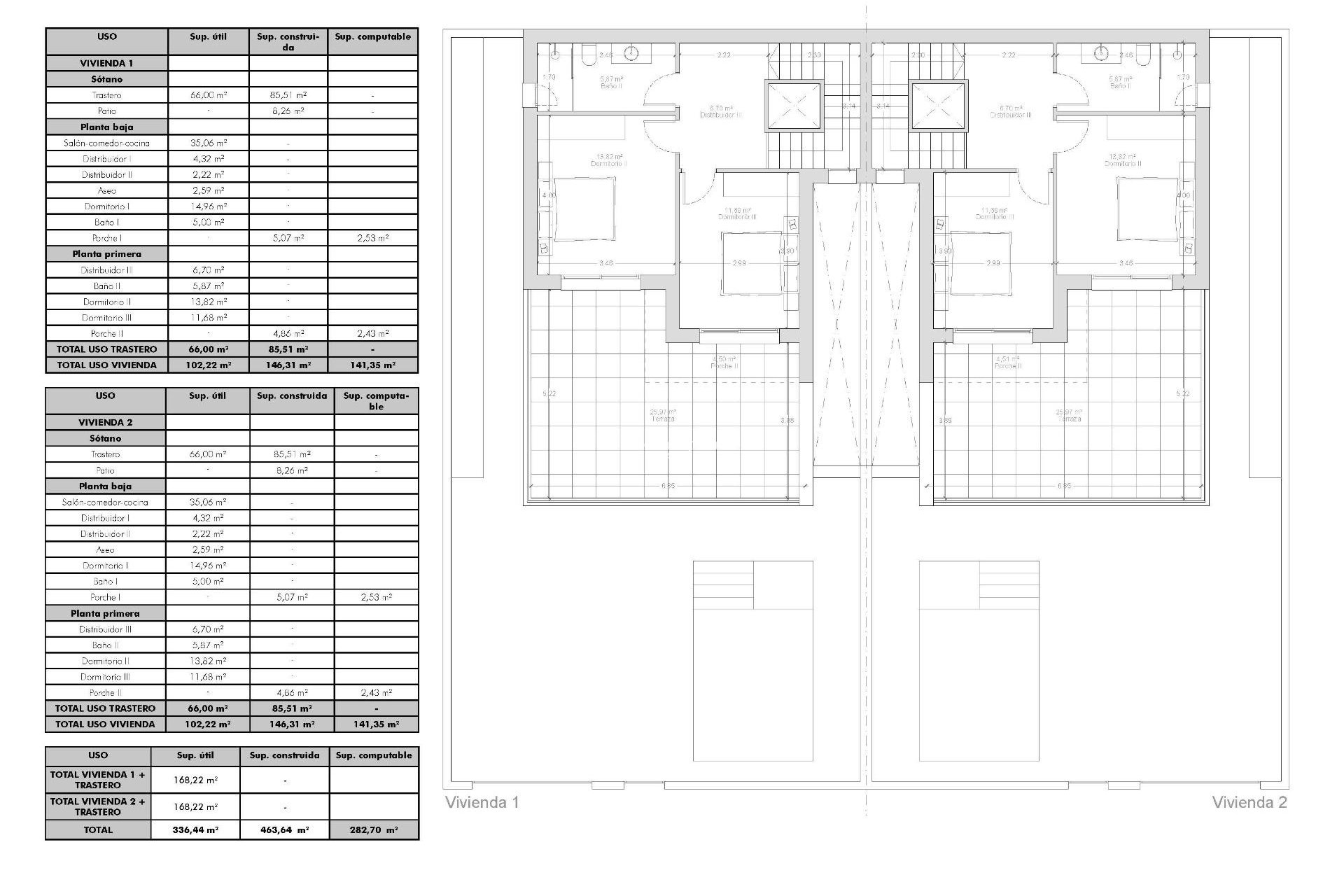
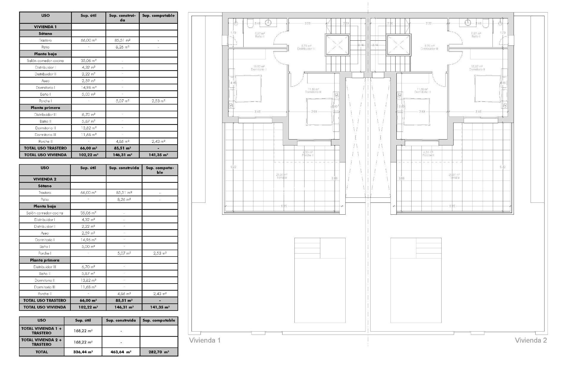
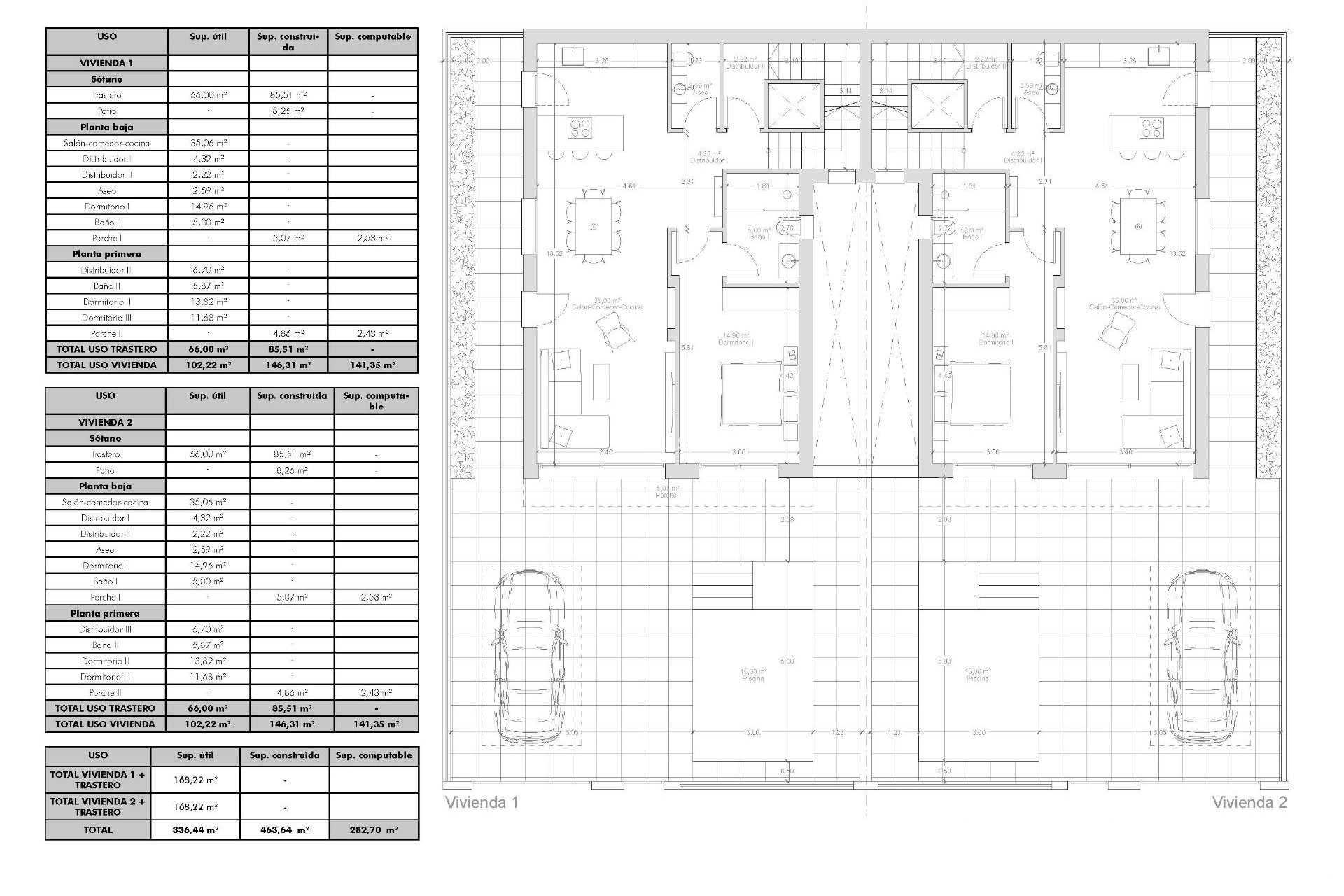
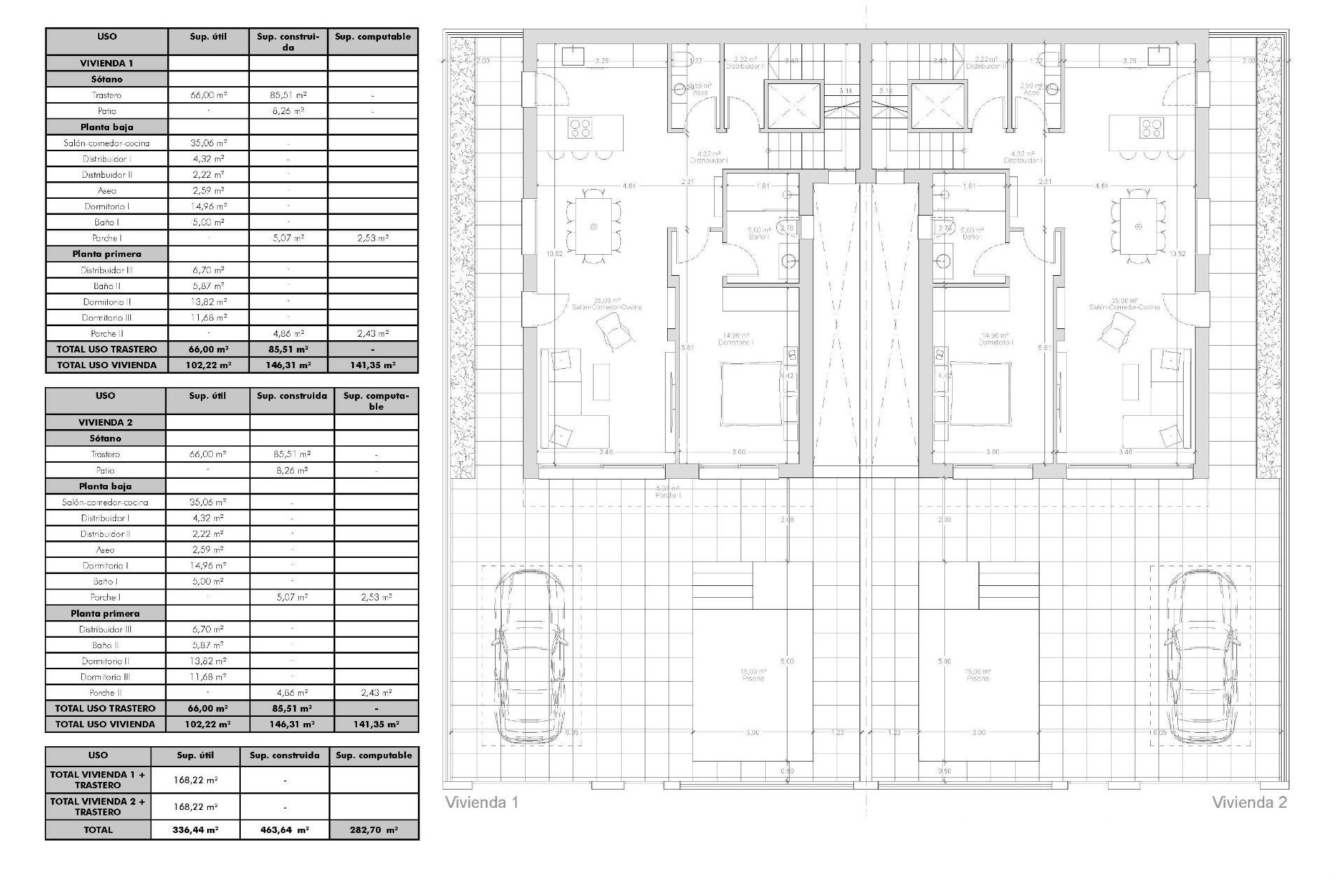
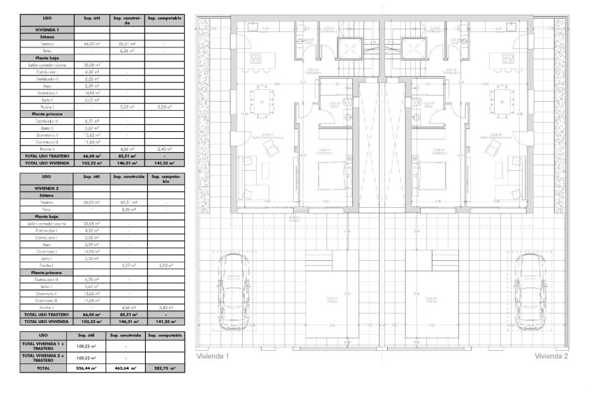
Jede Villa wurde in einem zeitgemäßen Stil entworfen, der den Raum und das natürliche Licht optimal nutzt. Die Aufteilung umfasst drei Schlafzimmer (eines im Erdgeschoss und zwei im ersten Stock) und drei Badezimmer (darunter eines im Untergeschoss), wodurch sie sich perfekt für Familien und Gäste eignen. Der offene Wohnbereich mit Essbereich geht nahtlos in die voll ausgestattete Küche über und schafft so eine warme und funktionale Umgebung. Große Fenster sorgen für viel Helligkeit im gesamten Haus.
Hochwertige Ausstattung und Extras
Diese Villen zeichnen sich durch ihre hochwertige Verarbeitung und durchdachten Details aus:
66 m² Keller mit Badezimmer, Galerie und Waschküche
Privater Pool, Solarium mit Grill und Waschbecken
Dekorativer Kamin im Wohnzimmer
Privater Parkplatz auf dem Grundstück
Aufzug vom Keller bis zum obersten Stockwerk
3 Photovoltaik-Solarmodule und LED-Beleuchtung im gesamten Haus
Vorinstallierte Klimaanlage
Komplett ausgestattete Badezimmer mit Möbeln und Duschwänden
Grundstücksgrößen ab 200 m2
Lifestyle und Umgebung
Benijófar verbindet den Charme eines traditionellen spanischen Dorfes mit den Annehmlichkeiten moderner Dienstleistungen. Naturliebhaber werden den nahe gelegenen Naturpark genießen, der sich ideal zum Wandern und Radfahren eignet. Für Golfbegeisterte ist der Golfplatz La Marquesa nur 5 km entfernt, während mehrere andere Top-Golfplätze im Umkreis von 15 km liegen. Familien können die Wasserparks in Rojales (4 km) und Torrevieja (12 km) besuchen oder die lebhafte Stadt Torrevieja selbst erkunden, die nur 12 km entfernt liegt.
Hervorragende Anbindung
Die Villen profitieren von einer guten Anbindung an die Autobahnen N-332 und AP-7, die eine schnelle Verbindung nach Alicante, Elche, Orihuela Costa und Murcia gewährleisten. Die Gegend bietet die perfekte Balance zwischen Ruhe, Annehmlichkeiten und Erreichbarkeit.
Ihr Traumhaus an der Costa Blanca
Erleben Sie Luxus, Komfort und mediterranes Wohnen in diesen atemberaubenden Neubau-Villen in Benijófar. Kontaktieren Sie uns noch heute für weitere Informationen und um einen Besichtigungstermin für Ihr zukünftiges Zuhause zu vereinbaren.
425