Moderne Duplex-Loft-Wohnungen im Herzen von Alicante
Exklusives Neubauprojekt im Stadtteil Benalúa
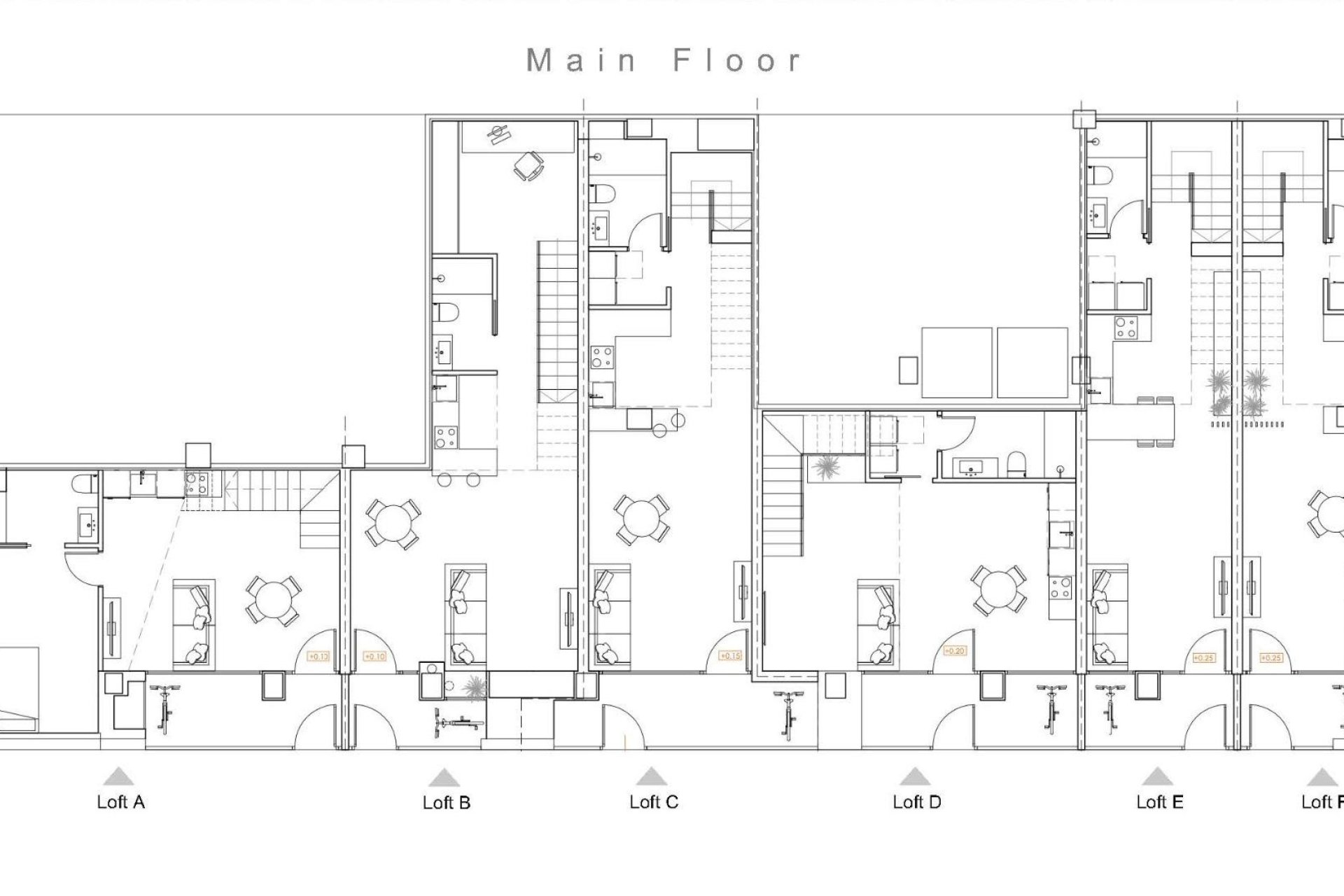
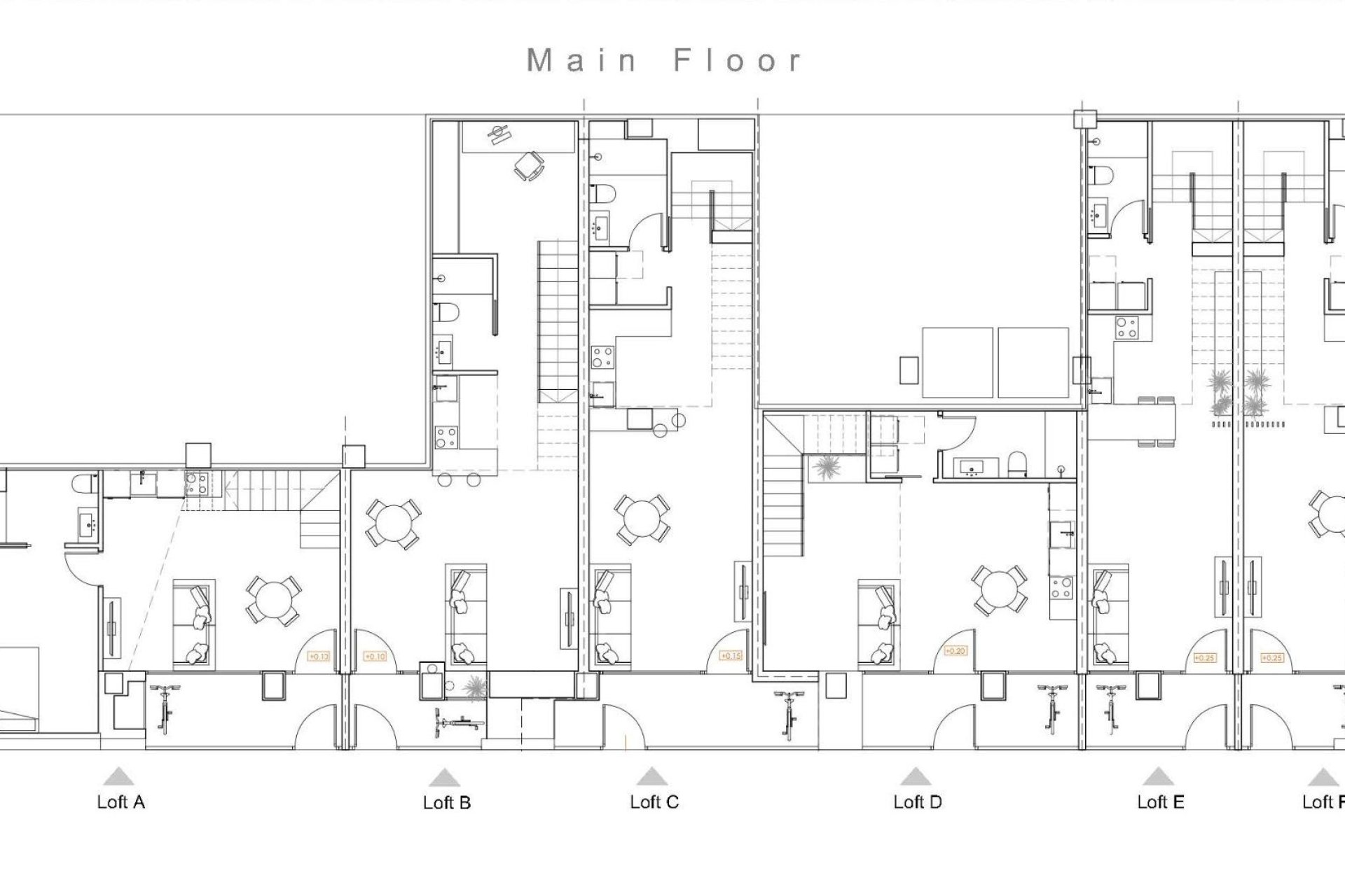
Entdecken Sie eine außergewöhnliche Gelegenheit, eine stilvolle Duplex-Loft-Wohnung in Benalúa zu erwerben, einem der lebendigsten und am besten angebundenen Stadtteile von Alicante. Dieses einzigartige Projekt verwandelt sechs ungenutzte Gewerbeeinheiten in moderne Wohnlofts und bietet einen urbanen Lebensstil nur 1 km von der Mittelmeerküste entfernt. Benalúa ist bekannt für seine lokalen Geschäfte, Cafés, kulturellen Aktivitäten und seine Nähe zum Stadtzentrum, was es zu einer sehr begehrten Gegend für Einwohner und Investoren macht.
Zeitgenössisches Design im Loft-Stil
Jede Wohnung wurde komplett neu gestaltet, um einen frischen, offenen und eleganten Wohnraum zu bieten. Das Angebot umfasst Duplex-Lofts mit 1 oder 2 Schlafzimmern und 2 Badezimmern, die alle über beeindruckende doppelt hohe Räume verfügen, die das natürliche Licht verstärken und ein echtes Loft-Ambiente schaffen. Im Obergeschoss befinden sich ein Schlafzimmer und ein komplettes Badezimmer, die Privatsphäre und Komfort bieten.
Mit einem separaten Zugang von der Straße und einer privaten Terrasse verbindet jede Wohnung moderne Architektur mit praktischem Wohnen. Hochwertige Oberflächen, zeitgemäße Grundrisse und helle Innenräume machen diese Lofts zu einer hervorragenden Wahl für alle, die Stil und Funktionalität suchen.
Komfort und Gemeinschaftseinrichtungen
Die Bewohner haben Zugang zu einem Gemeinschaftspool im Gebäude, der an warmen Mittelmeertagen für eine entspannte und erfrischende Atmosphäre sorgt. Die privaten Terrassen und separaten Eingänge sorgen für zusätzlichen Komfort und Exklusivität.
Erstklassige Lage in der Nähe wichtiger Sehenswürdigkeiten
Das Projekt ist sowohl zum Wohnen als auch als Investition perfekt gelegen und von wichtigen Dienstleistungen und Sehenswürdigkeiten umgeben:
Strand von Alicante: 1 km
Renfe-Bahnhof: 0,8 km
Einkaufszentrum El Corte Inglés: 0,7 km
Justizpalast von Alicante: 0,5 km
Flughafen Alicante: 12 km
Yachthafen und Hafen von Alicante: 2 km
Golfplätze (Alicante Golf): 7 km
Die Gegend bietet eine hervorragende Anbindung an den öffentlichen Nahverkehr, kulturelle Einrichtungen, Grünflächen und einen einfachen Zugang zu den schönen Stränden der Stadt.
Eine kluge Investition in den Lebensstil an der Küste von Alicante
Ob Sie nun einen Hauptwohnsitz, eine Ferienimmobilie oder eine Investition mit hohem Vermietungspotenzial suchen, diese Duplex-Loft-Wohnungen in Benalúa bieten eine einzigartige Gelegenheit in einer der vielversprechendsten Gegenden Alicantes.
Kontaktieren Sie uns noch heute, um Ihr exklusives Loft zu reservieren und modernes Wohnen im Herzen von Alicante zu genießen.
* Zugang zum Swimmingpool vorbehaltlich der Genehmigung durch die Eigentümergemeinschaft, wenn die Nutzung der Räumlichkeiten geändert wird.
425