Neubauvillen in La Romana.
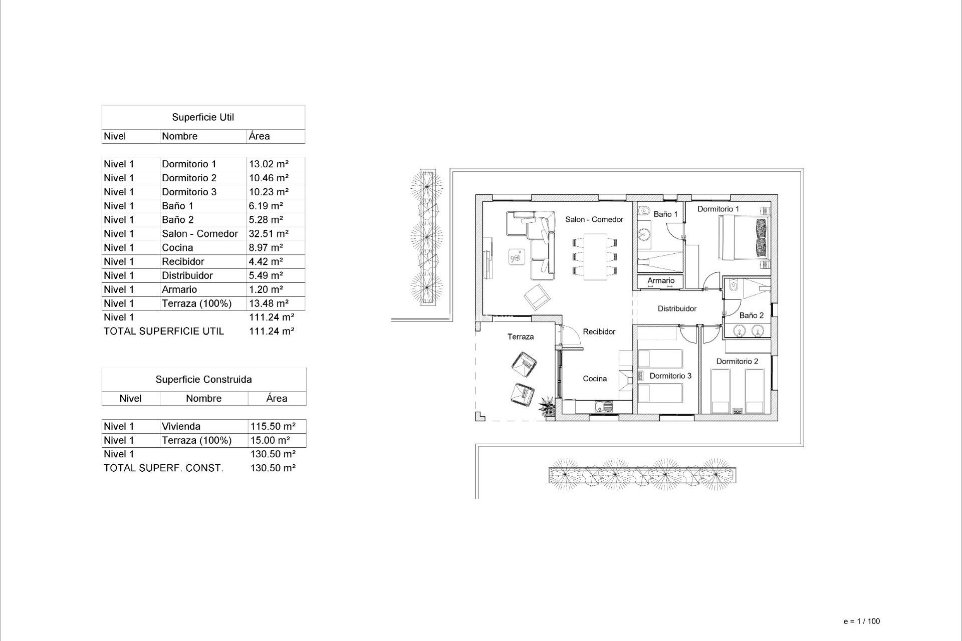
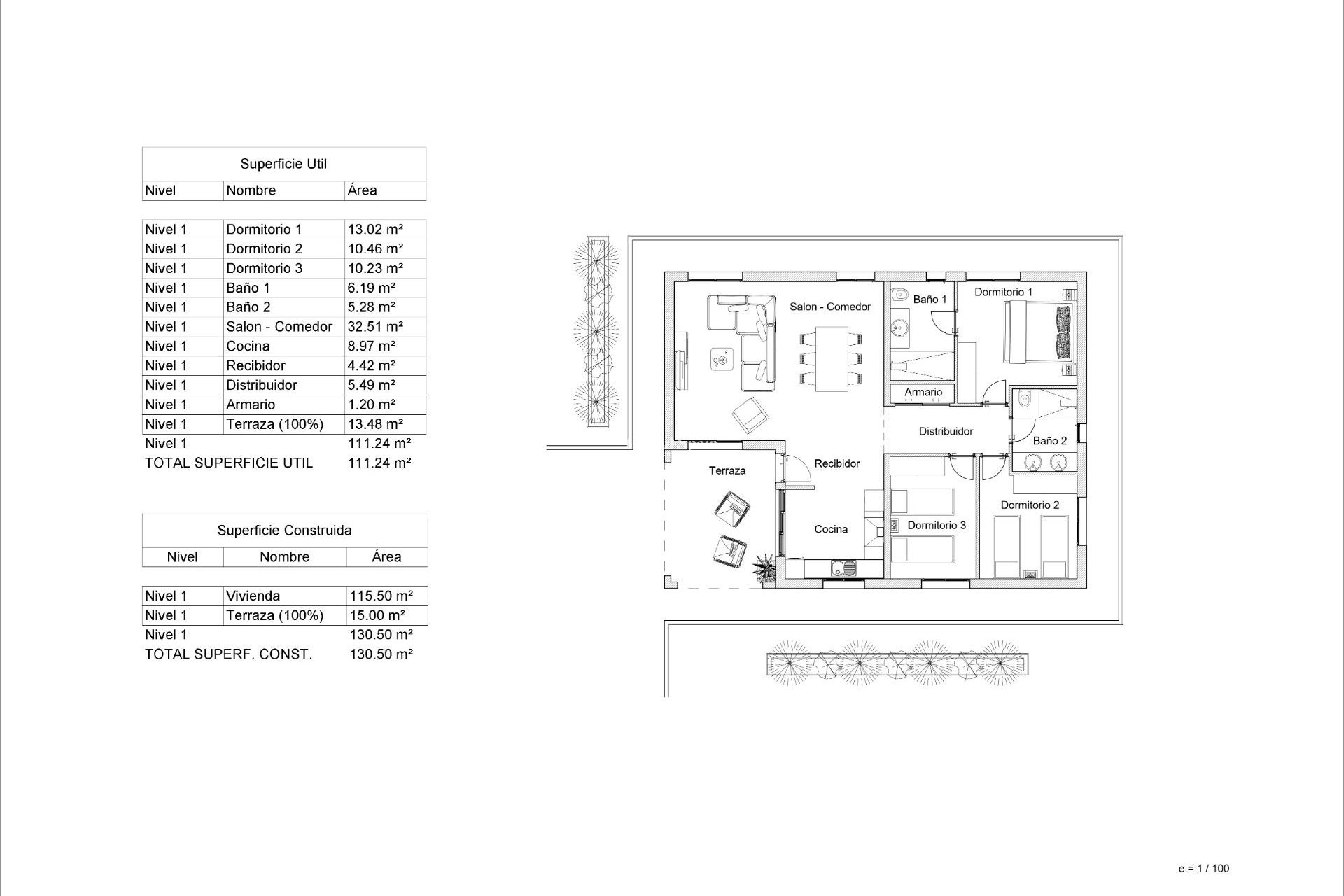
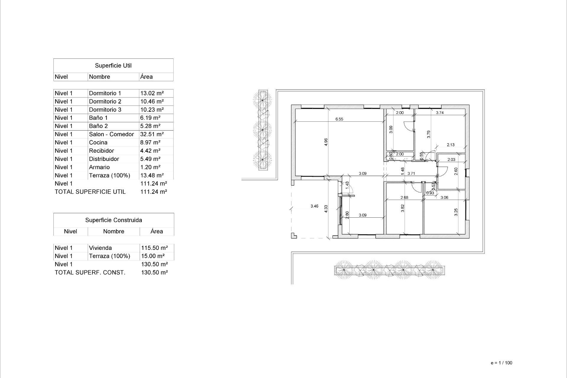
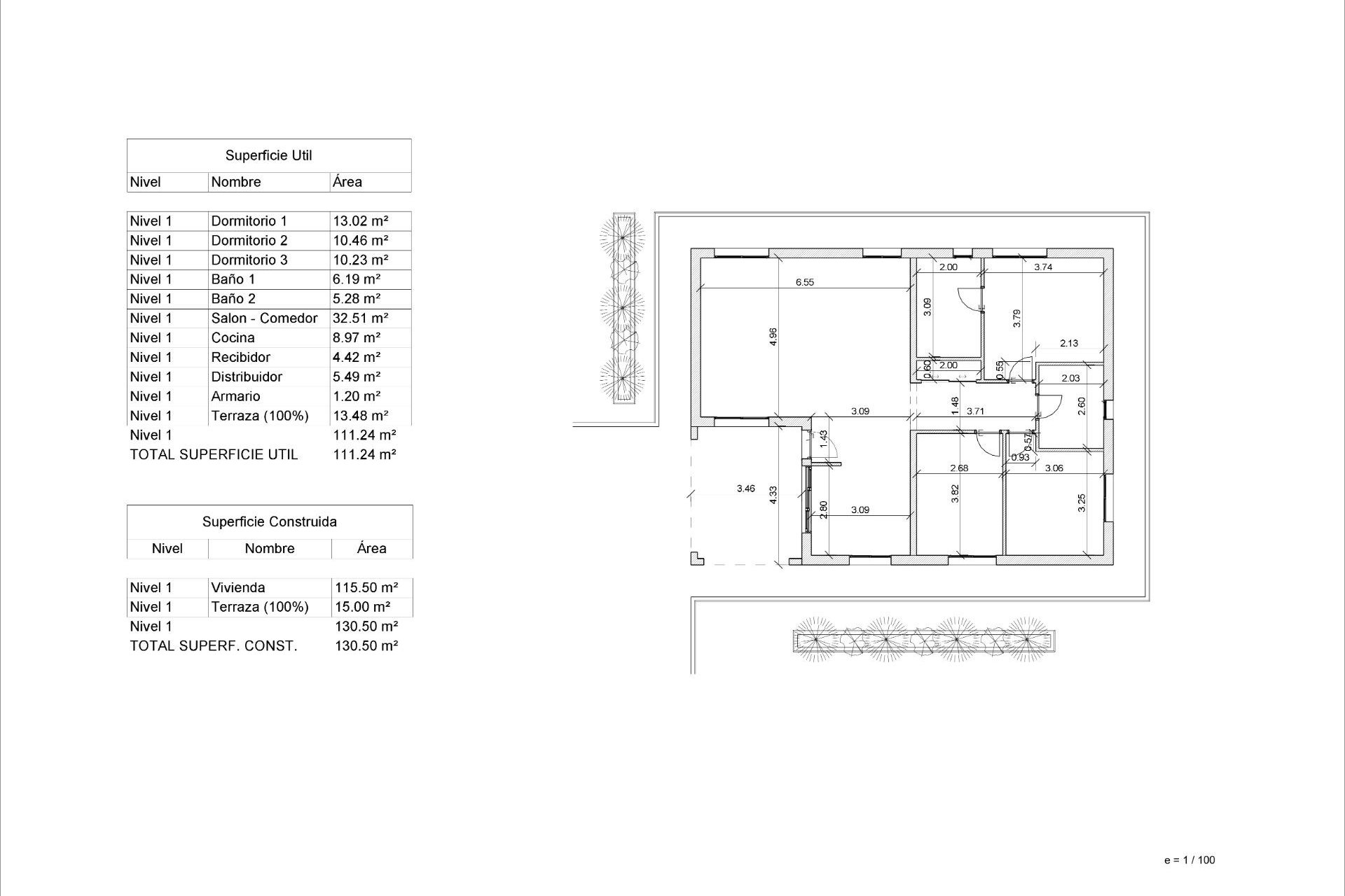
Neubauvillen mit verschiedenen Modellen zur Auswahl mit 2 oder 3 Schlafzimmern, 1 oder 2 Etagen und mit Platten- oder Rahmenkonstruktion: Je nach Modell und gewähltem Grundstück wird der genaue Preis berechnet.
Alle Villen werden auf rustikalen Grundstücken von mehr als 10.000 m² gebaut, von denen 2.500 m² eingezäunt werden.
Die Villen verfügen über eine offene Küche mit Wohnzimmer, Einbauschränke, einen privaten Pool, eine Veranda und einen Außenparkplatz.
Es stehen mehrere Grundstücke zur Auswahl. Für die Berechnung des Preises wurde ein Grundstück mit einem Preis von 73.000 Euro zugrunde gelegt (bei Wahl eines anderen Grundstücks wird die Differenz entsprechend dem Preis desselben zu zahlen oder zu vergüten).
Die Fertigstellung erfolgt im Selbstbau, die Übergabe erfolgt innerhalb von 12 Monaten nach Erteilung der Baugenehmigung.
Wenn Sie eine ruhige Umgebung suchen, in der Nähe von typisch spanischen Dörfern, fernab vom Massentourismus, umgeben von Bergen, mit einem sehr großen Grundstück und nur 30 Minuten vom Meer entfernt, dann ist dies Ihr Zuhause.
La Romana ist ein typisch spanisches Dorf mit allen Dienstleistungen für den täglichen Bedarf, umgeben von Bergen und mehreren Naturlandschaften in der Nähe, in denen Sie Wanderungen oder Mountainbike-Touren unternehmen können.
Das Dorf liegt 30 Minuten vom Flughafen Alicante entfernt.
425