Sanierte Wohnanlage in Lomas de Cabo Roig - Renovierte Wohnungen
Wohnungen in bester Lage
Entdecken Sie diese exklusive Gelegenheit, eine renovierte Wohnung in Lomas de Cabo Roig zu besitzen, einer begehrten Gegend an der Orihuela Costa. Diese ursprünglich im Jahr 2008 errichtete Wohnanlage wird derzeit renoviert und soll im Juni 2025 fertiggestellt werden. Ein Musterhaus steht zur Besichtigung zur Verfügung, so dass Sie sich von der Qualität der Ausstattung überzeugen können.
Immobilienoptionen für jeden Bedarf
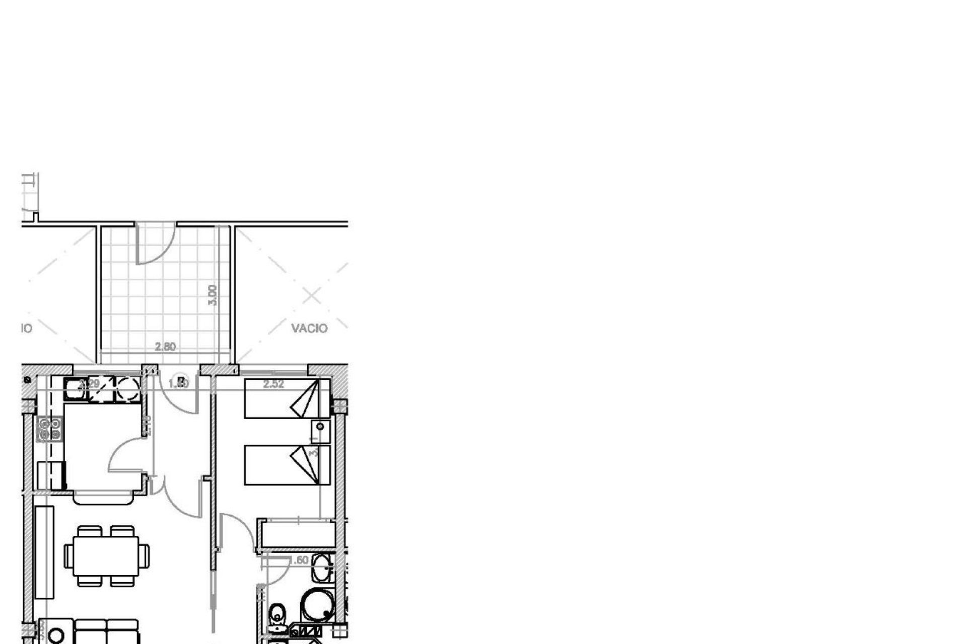
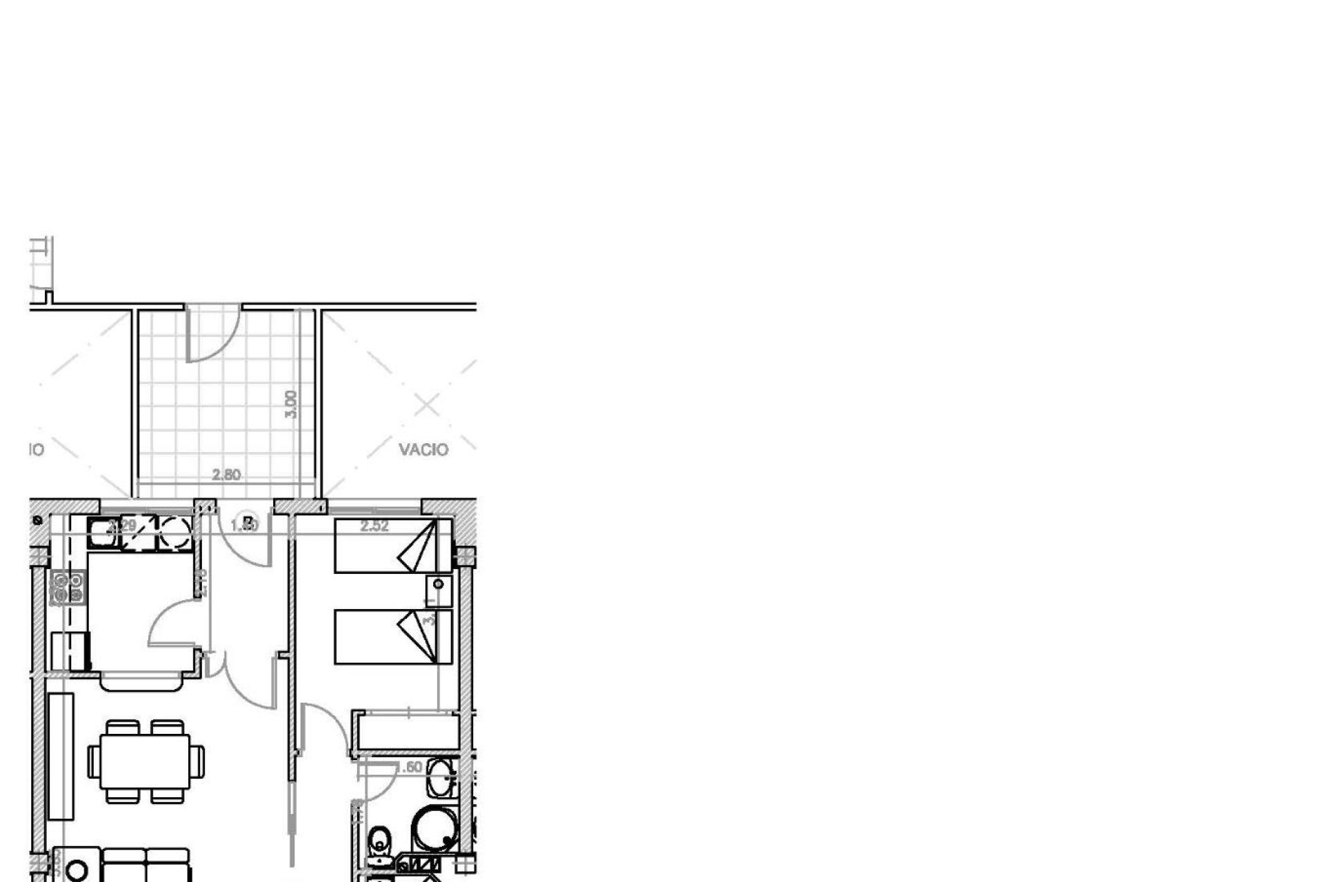
Das Projekt bietet 27 renovierte Wohnungen mit unterschiedlichen Grundrissen:
1- und 2-Schlafzimmer-Wohnungen, ideal für Ferienhäuser oder Investitionen.
Wohnungen im Erdgeschoss mit eigenem Garten, ideal für das Leben im Freien.
Wohnungen im mittleren Stockwerk mit großzügigen Terrassen, ideal, um das mediterrane Klima zu genießen.
Penthäuser mit privaten Sonnenterrassen, die einen freien Blick und maximale Privatsphäre bieten.
Jede Wohnung wird mit Duschabtrennungen in den Bädern und voll ausgestatteten Küchen mit Geräten geliefert, so dass die Käufer eine schlüsselfertige Lösung erhalten.
Exklusive Gemeinschaftseinrichtungen
Die Wohnanlage ist auf Komfort und Entspannung ausgelegt und bietet Folgendes:
Ein Gemeinschaftsschwimmbad, umgeben von einem schönen Landschaftsgarten.
Ein Aufzug für den einfachen Zugang zu allen Etagen.
Optionale Tiefgaragenstellplätze gegen Aufpreis.
Eine unschlagbare Lage in Orihuela Costa
Lomas de Cabo Roig ist eine prestigeträchtige Wohngegend, die nur 2 km von der Küste von Cabo Roig entfernt liegt, wo sich einige der schönsten Strände von Orihuela Costa befinden. Die Gegend ist verkehrstechnisch gut angebunden und bietet eine breite Palette an Dienstleistungen, darunter Geschäfte, Restaurants, Supermärkte und Einkaufszentren.
Entfernungen zu den wichtigsten Punkten von Interesse:
Strände von Cabo Roig und Campoamor - 5 Autominuten entfernt.
Einkaufszentrum Zenia Boulevard - 5 km.
Golfplatz Villamartín - 4 km.
Flughafen Alicante - 30 Minuten mit dem Auto.
Flughafen Murcia-Corvera - 1 Stunde mit dem Auto.
Eine kluge Investition an der Costa Blanca
Mit seiner ausgezeichneten Lage, den vollständig renovierten Wohnungen und der erstklassigen Ausstattung ist diese Anlage eine ideale Gelegenheit für Investitionen, Ferienaufenthalte oder einen dauerhaften Wohnsitz. Verpassen Sie nicht diese einmalige Chance, ein Haus in einer der begehrtesten Gegenden der Costa Blanca zu einem unschlagbaren Preis zu besitzen.
Kontaktieren Sie uns noch heute für weitere Informationen oder um einen Besichtigungstermin zu vereinbaren!
425