Neubau-Stadthäuser zum Verkauf in Cox - 44 moderne Häuser mit großartigen Annehmlichkeiten
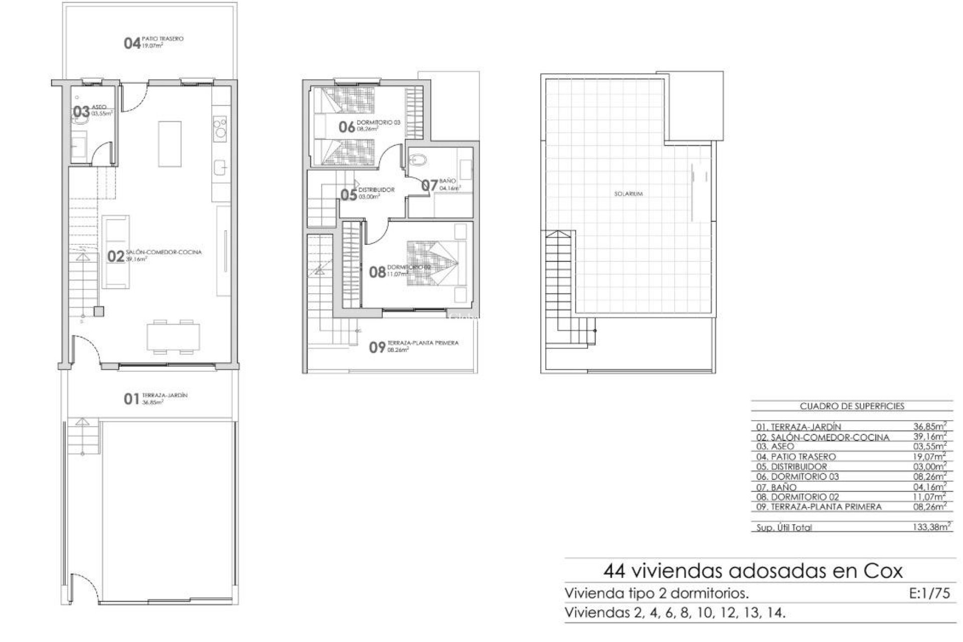
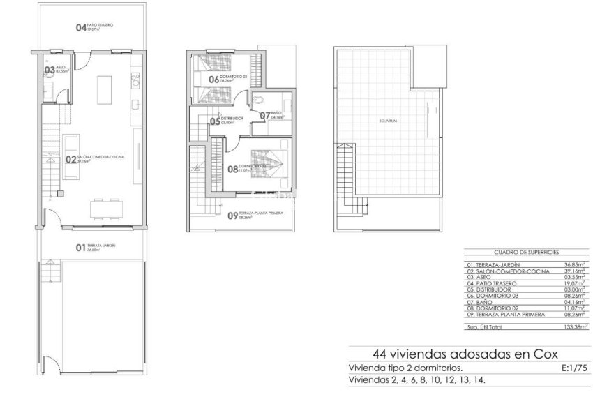
Entdecken Sie eine neue Wohnanlage mit 44 modernen Stadthäusern in Cox, Alicante. Diese Häuser sind in 2- und 3-Schlafzimmer-Grundrissen erhältlich und verfügen jeweils über ein privates Solarium, Terrassen, Innenhöfe und einen privaten Parkplatz. Die Wohnanlage bietet Zugang zu Gemeinschaftsbereichen, darunter ein Gemeinschaftsschwimmbad, das eine ideale Umgebung zum Entspannen schafft.
Erstklassige Lage mit hervorragender Verkehrsanbindung
Diese Wohnanlage liegt nur 40 km vom internationalen Flughafen Alicante entfernt, was die Anreise einfach und bequem macht. Cox ist gut an die großen Städte angebunden: Orihuela ist nur 8 km entfernt, Elche 20 km, Alicante 48 km und Murcia 25 km. Golfliebhaber werden die nahe gelegenen Golfplätze wie La Finca (12 km) und Vistabella (14 km) zu schätzen wissen.
Einfacher Zugang zu wichtigen Straßen
Cox verfügt über eine gute Anbindung an die Autobahn AP-7 und die Autovía del Mediterráneo (A-7) sowie an lokale Routen in die umliegenden Gebiete wie Granja de Rocamora und Callosa de Segura. Die Stadt und die umliegenden Gebiete haben über 35.000 Einwohner und bieten einen ruhigen und doch lebendigen Lebensstil.
Lokale Annehmlichkeiten und Attraktionen
Den Bewohnern steht ein breites Spektrum an lokalen Annehmlichkeiten zur Verfügung, darunter Geschäfte, Schulen, Sporteinrichtungen, medizinische Zentren und ein schneller Zugang zu den Stränden der Costa Blanca, wie Guardamar del Segura und Torrevieja.
Enthaltene Merkmale
Jedes Haus verfügt über einen angelegten Garten, LED-Beleuchtung, elektrische Rollläden, eine Vorinstallation für Solarzellen, Einbauschränke, eine Sicherheitstür, eine voll ausgestattete Küche mit Silestone-Arbeitsplatten und vieles mehr.
425