NEUES WOHNHAUS IN PLAYA FLAMENCA BAUEN!!!
Von einem etablierten Bauträger sind wir stolz darauf, diese gerade neu eröffnete Wohnanlage nur 500 m vom Meer entfernt am beliebten Playa Flamenca (Orihuela Costa) anbieten zu können.
Wohnanlage mit schönen Gemeinschaftspools, Whirlpools und schönen Gemeinschaftsgärten. Alle Dienstleistungen wie Supermärkte, Bars und Restaurants usw. sind in einer sehr zentralen Lage in Orihuela Costa zu Fuß erreichbar.
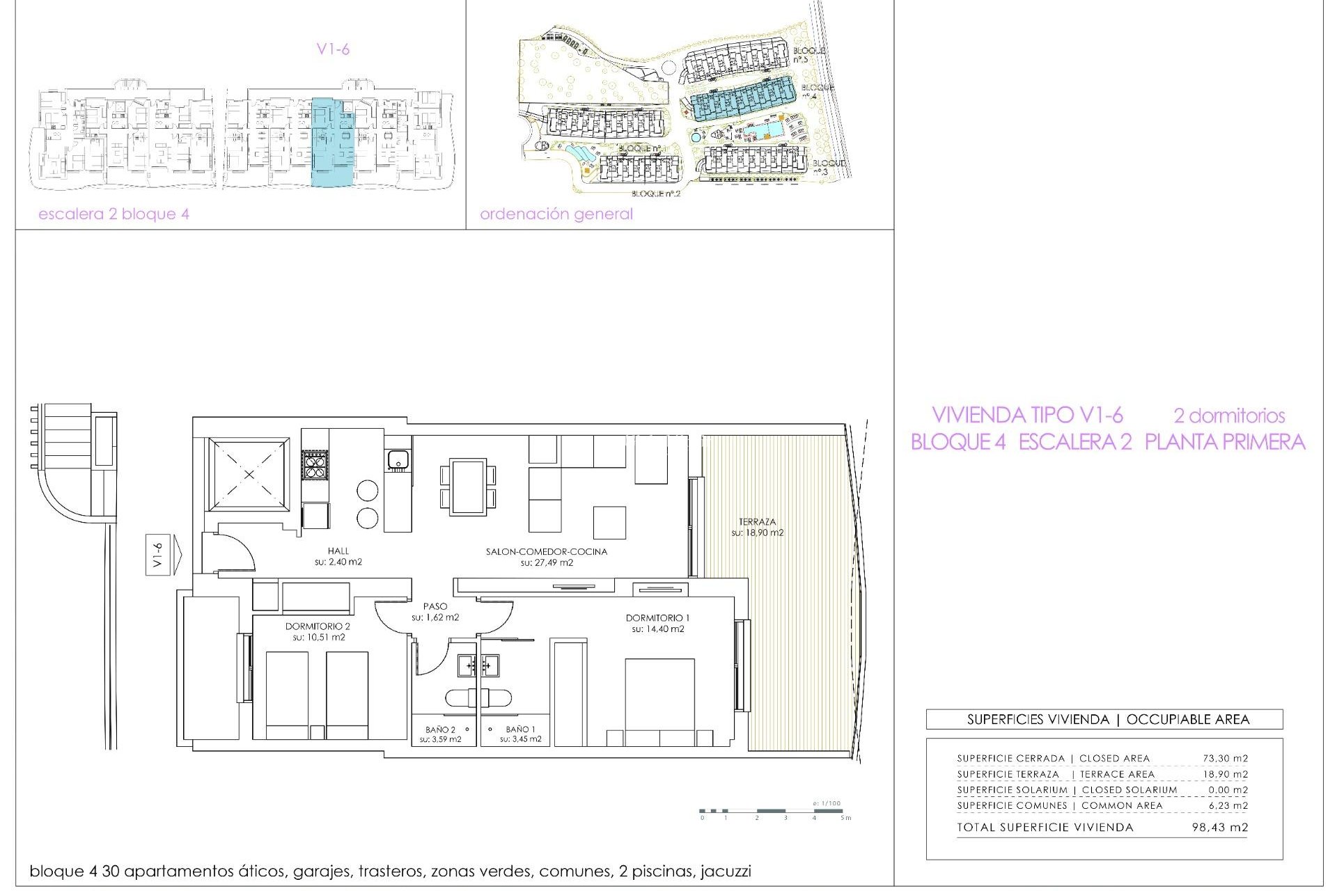
Große Auswahl an Typen: Apartments mit 2, 3 oder 4 Schlafzimmern. Niedrige Etagen mit privaten Gärten oder oberste Etagen mit privaten Solarien. Alle Häuser verfügen über einen Parkplatz und einen Abstellraum im Preis inbegriffen.
Das Einkaufszentrum Zenia Boulevard 1 km entfernt und mehrere Golfplätze wie Villamartin, Campoamor im Umkreis von 5 km von dieser Wohnanlage machen einen idealen Ort für Ihren Urlaub oder Ihr dauerhaftes Leben.
425